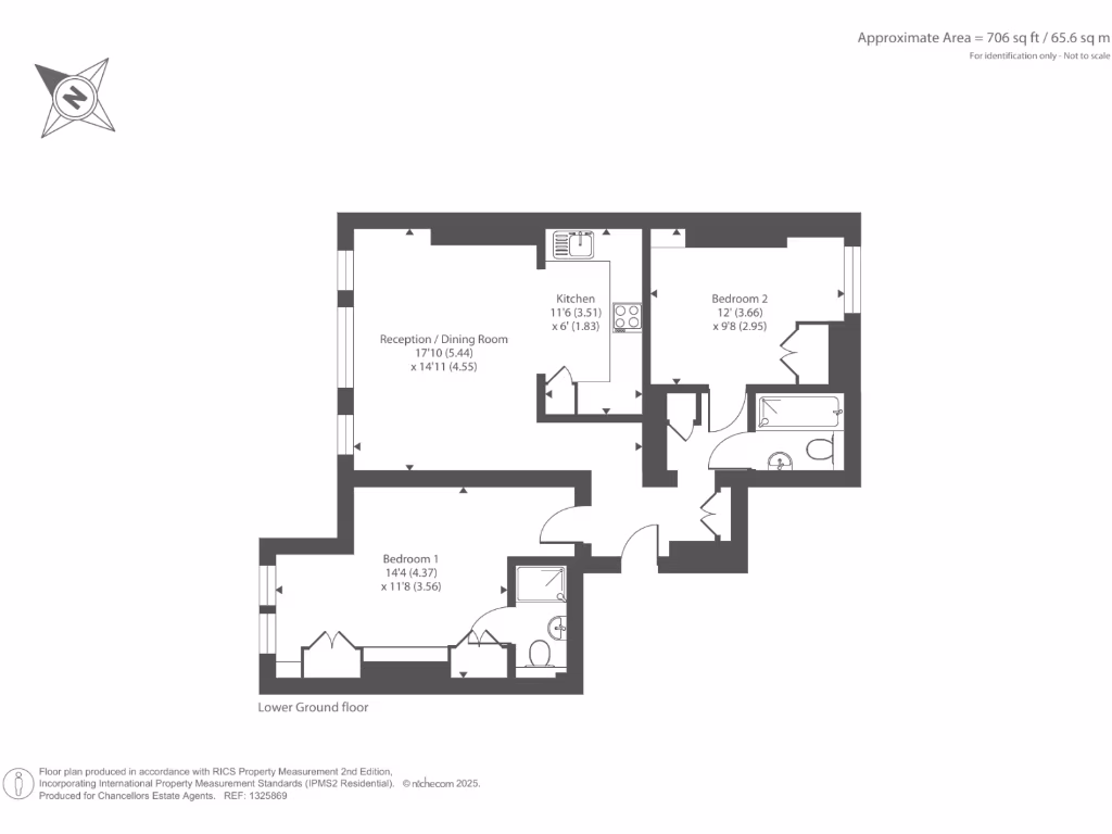
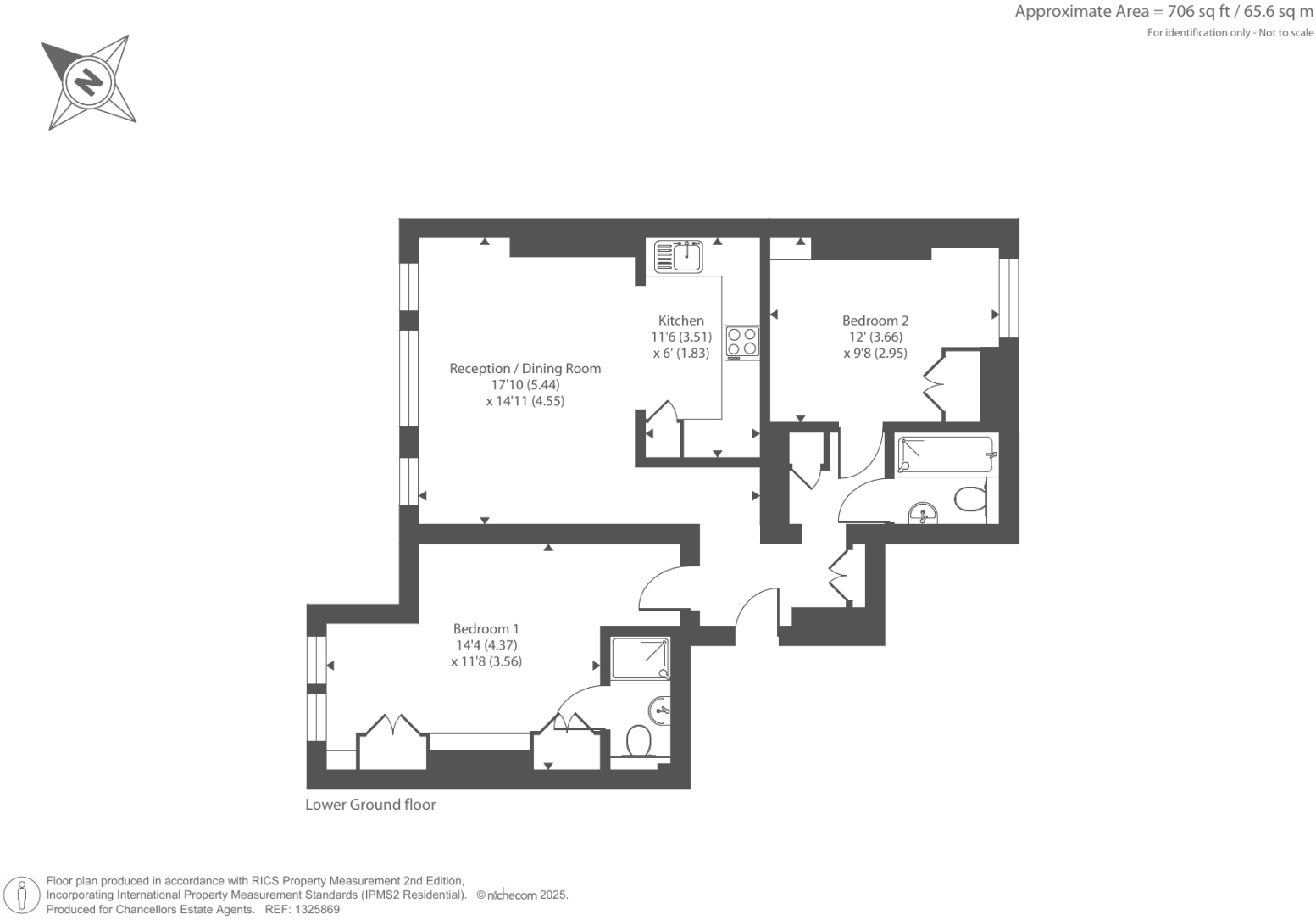
**Standout Features:**
- Leasehold term: 999 years from 1981 (958 years remaining)
- Stylish open plan reception room and kitchen
- Two well-sized bedrooms, one with en suite shower room
- Shared attractive communal garden
- Enviable location in highly sought-after Little Venice, facing Regents Canal
- Total area: 706 sq ft
**Property Summary:**
Discover a charming two-bedroom apartment in the heart of Little Venice, an affluent and cosmopolitan enclave. This well-presented flat boasts an open plan reception area that seamlessly blends style and functionality, perfect for modern living. The master bedroom includes an en suite shower room, complemented by an additional bathroom for guests. With access to an attractive communal garden, it's ideal for enjoying outdoor moments in a peaceful setting.
Although the property is comfortable and inviting, potential buyers should be aware of a service charge of £4,800 which may be above average in the area. The flat is in a historic Victorian building, providing character but requiring awareness regarding maintenance and insulation aspects.
Perfect for first-time buyers or investors keen on River Thames living, this property is a fantastic opportunity. With excellent mobile signal and fast broadband, it offers an ideal balance of comfort and convenience. Excellent schools and numerous amenities are just a stone's throw away, making this home a rare find in a prime location. Don’t miss your chance to secure a slice of this coveted community—properties here don’t stay on the market long!
2 bedroom apartment for sale in Maida Avenue, Little Venice, W2 — £750,000 • 2 bed • 1 bath • 739 ft²
2 bedroom apartment for sale in Bristol Gardens, Little Venice, W9 — £845,000 • 2 bed • 2 bath • 771 ft²
2 bedroom apartment for sale in Clifton Gardens, Little Venice, W9 — £1,550,000 • 2 bed • 2 bath • 905 ft²
2 bedroom apartment for sale in Maida Vale, Little Venice, W9 — £600,000 • 2 bed • 1 bath • 736 ft²
2 bedroom apartment for sale in Randolph Crescent, Maida Vale, London, W9 — £1,600,000 • 2 bed • 2 bath • 754 ft²
2 bedroom apartment for sale in Warrington Gardens, Little Venice, W9 — £725,000 • 2 bed • 2 bath • 716 ft²






















































































