Spacious family living with large garden and countryside views.
Four double bedrooms, principal bedroom with ensuite
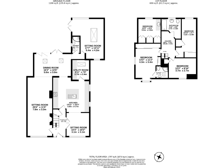
This extended four-bedroom detached house combines period character with contemporary family living across a versatile, well-proportioned layout. The heart of the home is a large open-plan kitchen and dining area with bi-fold doors to a landscaped rear garden, ideal for family meals and entertaining. Several reception rooms — including a sitting room with an open fireplace and a flexible rear reception that could be a home office or occasional fifth bedroom — give scope for varied household uses.
Upstairs there are four double bedrooms, the principal with an ensuite, plus a modern family bathroom. The property sits on a generous plot with a broad, private rear garden and driveway parking to the front. Far-reaching views across open countryside enhance the setting and the southerly aspect provides good natural light in the garden and patio areas.
Practical points to note: the house is freehold and on Council Tax Band F, so running costs will be above average. The property is awaiting an EPC rating and buyers should confirm energy efficiency and services. Local crime levels are reported as high for the area; buyers should consider security measures when viewing and budgeting.
Located in a village setting, the house is a short drive from Sawbridgeworth and Harlow for stations and amenities, with fast broadband and convenient road access via the nearby M11 Junction 7A. Schools in the wider area include several rated Good and one Outstanding secondary, making this a strong option for growing families seeking space and countryside proximity.
4 bedroom detached house for sale in Downfield Road, Hertford Heath, SG13 — £1,250,000 • 4 bed • 4 bath • 2868 ft²
5 bedroom detached house for sale in The Street, Sheering, Bishop's Stortford, CM22 7LY, CM22 — £900,000 • 5 bed • 3 bath • 1852 ft²
4 bedroom detached house for sale in Beech Drive, Sawbridgeworth, Hertfordshire, CM21 — £1,100,000 • 4 bed • 4 bath • 2700 ft²
5 bedroom detached house for sale in Wheelwrights Close, Bishop's Stortford, Hertfordshire, CM23 — £975,000 • 5 bed • 3 bath • 2200 ft²
4 bedroom detached house for sale in Falconers Park, Sawbridgeworth, CM21 — £750,000 • 4 bed • 1 bath • 1466 ft²
5 bedroom detached house for sale in Hastingwood Road, Hastingwood, CM17 — £1,100,000 • 5 bed • 4 bath • 3228 ft²










































































































