Large private-plot house with annexe and extensive parking in a sought-after road..
Approx 2,700 sq ft of versatile family accommodation
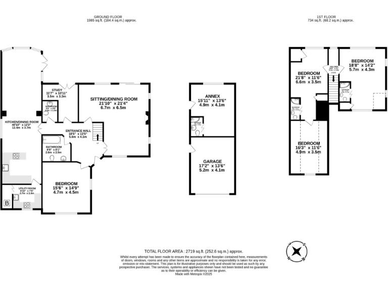
Set on a beautifully landscaped half-acre plot on a sought-after private road, this substantial detached house offers about 2,700 sq ft of flexible family living. The home’s open-plan kitchen/living/dining hub and a further large reception room create comfortable everyday spaces and excellent entertaining flow that open onto a private, mature rear garden.
Accommodation includes four double bedrooms, three main bathrooms and a separate self-contained annexe with shower room — ideal for guests, home working or multi-generational living. Practical advantages include a double garage, large summerhouse/outbuilding and a sweeping driveway with parking for up to six cars.
The property is well positioned for family life, a short distance from Pishiobury Park, good primary and secondary schools and the mainline station with services to London and Cambridge. Note: Council Tax is Band F (expensive) and the EPC is currently TBC. The house appears well maintained externally but offers clear scope for cosmetic modernisation and potential extension subject to planning.
Buyers should also be aware of slower broadband speeds and average mobile signal in the area. Overall this is a rare, roomy family home in a prestigious Sawbridgeworth location, suited to buyers seeking space, privacy and annexe potential.
3 bedroom detached house for sale in Brook Lane, Sawbridgeworth, CM21 — £855,000 • 3 bed • 2 bath • 1905 ft²
4 bedroom detached house for sale in Rowney Gardens, Sawbridgeworth, CM21 — £890,000 • 4 bed • 2 bath • 1826 ft²
4 bedroom detached house for sale in East Park, Sawbridgeworth, CM21 — £775,000 • 4 bed • 1 bath • 1591 ft²
5 bedroom detached house for sale in Perry Green, Much Hadham, Hertfordshire, SG10 — £1,500,000 • 5 bed • 4 bath • 3000 ft²
5 bedroom detached house for sale in Brookfields, Sawbridgeworth, CM21 0EJ, CM21 — £1,000,000 • 5 bed • 3 bath • 2180 ft²
4 bedroom semi-detached house for sale in Sun Street, Sawbridgeworth, Essex, CM21 — £600,000 • 4 bed • 2 bath • 1285 ft²






































































































