Chain-free three-bedroom home with private garden and garage in Meath Green.
Chain free freehold three-bedroom semi-detached house
Garage plus driveway parking for two cars, good plot size
Private, well-kept rear garden with mature planting
Conservatory providing extra living space or home office
Scope to extend or reconfigure (STPP) to increase floor area
Cosmetically dated kitchen, bathroom and decor needing modernisation
Single family bathroom only; one shower, toilet and basin
Built 1967–75; double glazing and gas central heating installed
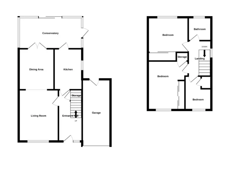
Set on a quiet cul-de-sac in popular Meath Green, this freehold three-bedroom semi-detached house offers straightforward family living and scope to extend (STPP). The property is chain free and includes a garage, driveway for two cars and a private, well-kept rear garden with mature planting that provides year-round colour and privacy.
Inside, accommodation is practical and light: a living room leading to a dining area, a conservatory currently used as a second sitting room, and a kitchen with good storage and surface space. The first floor houses three bedrooms (two doubles) and a family bathroom with a walk-in shower. The house totals about 850 sq ft and benefits from double glazing and gas central heating.
The home is largely sound but cosmetically dated in places and will benefit from updating to kitchens, bathrooms and finishes to increase comfort and value. There is scope to reconfigure or extend subject to planning (STPP) for buyers seeking to add space or create an open-plan kitchen/diner. Practical positives include very low local crime, fast broadband and excellent mobile signal.
This property suits families or first-time buyers wanting a manageable garden, parking and room to personalise in a comfortable suburban setting close to well-rated primary and secondary schools. Council tax is moderate and there is no local flood risk.
3 bedroom detached house for sale in Hutchins Way, Horley, Surrey, RH6 — £500,000 • 3 bed • 2 bath • 1194 ft²
3 bedroom detached house for sale in Horley, RH6 , RH6 — £450,000 • 3 bed • 1 bath • 905 ft²
4 bedroom detached house for sale in Willow Brean, Horley, Surrey, RH6 — £600,000 • 4 bed • 1 bath • 1323 ft²
5 bedroom detached house for sale in Wesley Close, Horley, Surrey, RH6 — £700,000 • 5 bed • 2 bath • 1885 ft²
4 bedroom detached house for sale in Darenth Way, Horley, Surrey, RH6 — £525,000 • 4 bed • 1 bath • 1001 ft²
3 bedroom terraced house for sale in Kingsley Road, Horley, RH6 — £400,000 • 3 bed • 1 bath • 904 ft²






























































