Ready-to-build, consented bungalow with garages and low upfront levy costs.
- Full planning permission for a 1287 sqft detached bungalow and double garage
- No Community Infrastructure Levy or phosphate mitigation payable
- Private driveway location within short level walk of town centre
- Energy-efficient options: air source heat pump and underfloor heating
- Generous rear garden with sunny aspect and scope for terrace
- Ample driveway parking and detached double garage included in consent
- Tenure unknown; purchasers must verify with local authorities
- Services nearby but buyers should confirm connections and enquiries
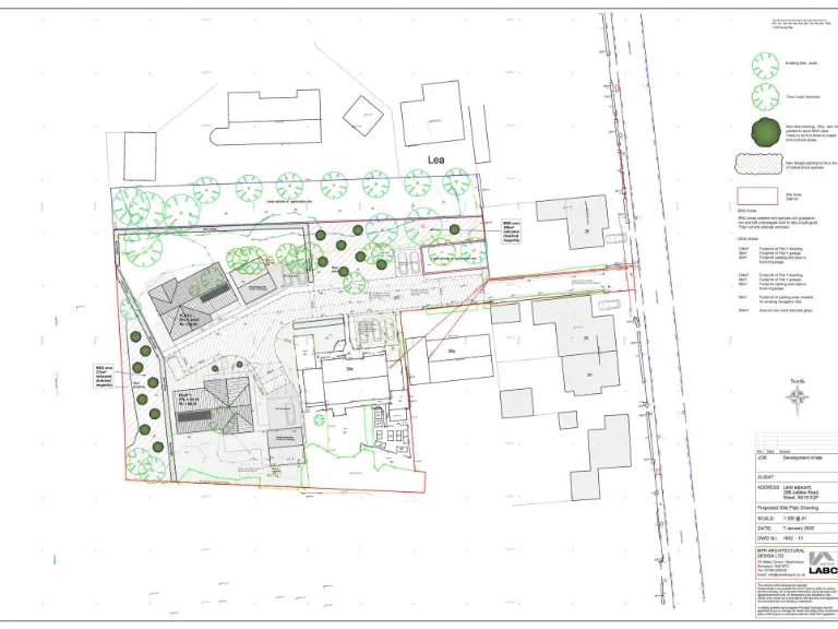
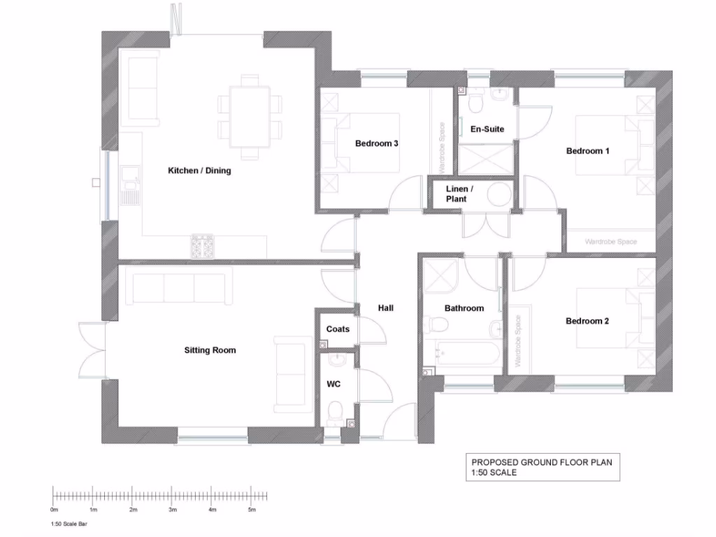
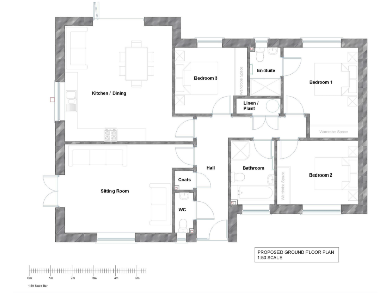
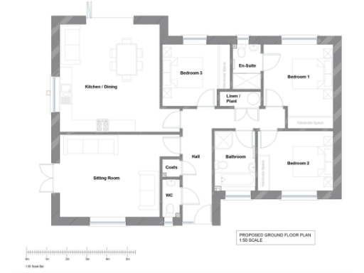
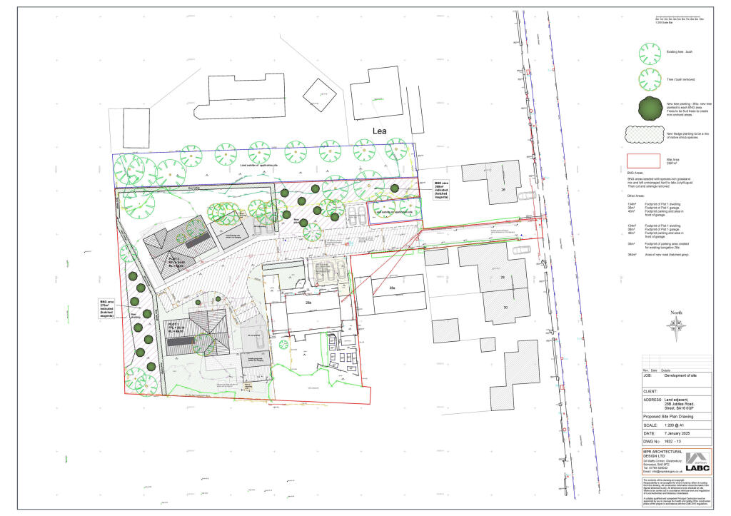
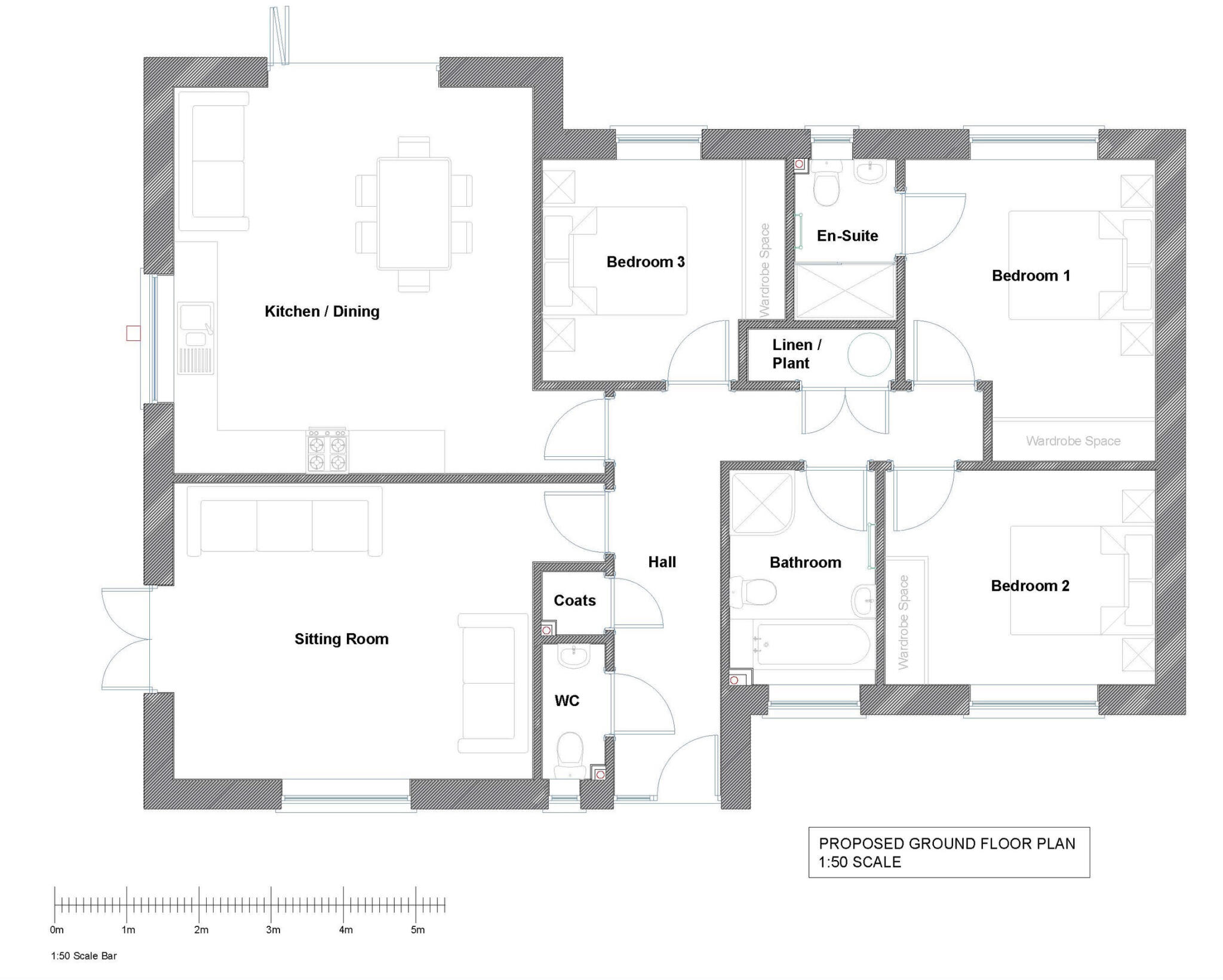
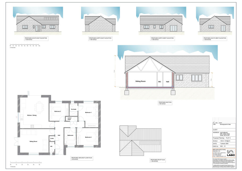
This is an oven-ready building plot with full planning permission for a substantial single-storey detached bungalow (1287 sqft / 119.6 m2) and detached double garage (Planning Ref: 2025/0078/FUL/02). The consented scheme removes typical upfront burdens: no Community Infrastructure Levy liability and phosphate mitigation is already settled. That makes this a rare, lower-cost entry into a bespoke new-build in a prime town-centre setting.
Set at the end of a private driveway off Jubilee Road, the plot sits within a short, level walk of Street town centre amenities and local schools. The approved home is designed for comfortable single-storey living with direct garden access from principal rooms, a sunny rear aspect, generous driveway parking and a detached double garage—features well suited to downsizers seeking accessible, low-maintenance living.
The specification allows for contemporary, energy-efficient systems (air source heat pump and underfloor heating options) or connection to mains gas. Buyers can proceed with their own contractor or consider recommended, prequalified construction partners. Practical matters to note: tenure is currently unknown and purchasers should confirm services, connections and any remaining statutory checks with relevant authorities before exchange.
Overall this consented plot offers a straightforward route to a high-spec, single-storey home in a desirable, peaceful location with excellent local facilities close by. It is particularly suited to buyers prioritising single-level living, energy efficiency and minimal pre-construction costs.
Land for sale in Somerton Road, Street, BA16 — £105,000 • 3 bed • 2 bath
Land for sale in Lot, DEVELOPMENT FOR SALE, Grange Avenue, Street BA16 9PD, BA16 — £95,000 • 1 bed • 1 bath • 2178 ft²
Plot for sale in Lot 1 at Summerleaze, Marshalls Elm, Street, BA16 — £400,000 • 1 bed • 1 bath
Plot for sale in Lot 2 at Summerleaze, Marshalls Elm, Street, BA16 — £350,000 • 1 bed • 1 bath
5 bedroom detached bungalow for sale in Orchard Mews, West End, Street, BA16 — £630,000 • 5 bed • 3 bath • 1663 ft²
Land for sale in Ivythorn Lane, Nr. Street, Somerset, BA16 — £225,000 • 1 bed • 1 bath


































































