Energy-efficient new build with private top-floor main bedroom and driveway parking.
- New-build three-bedroom home with modern finish
- Solar panels and EV charging pod reduce running costs
- Open-plan kitchen, dining and family area with French doors
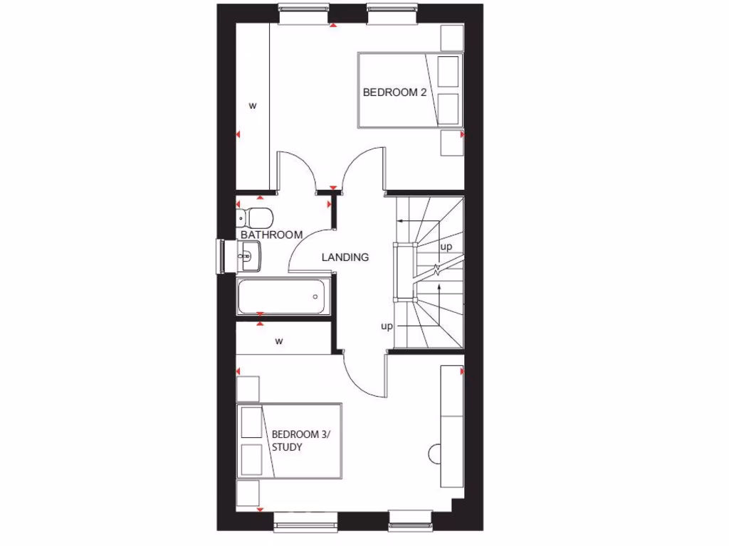
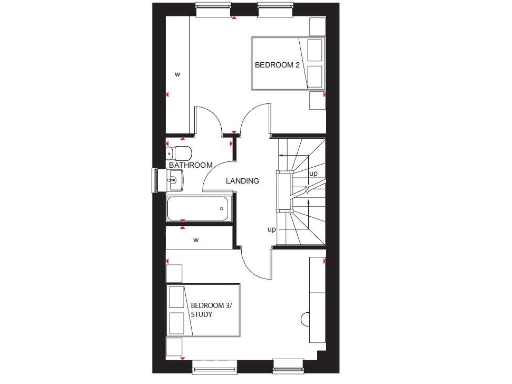
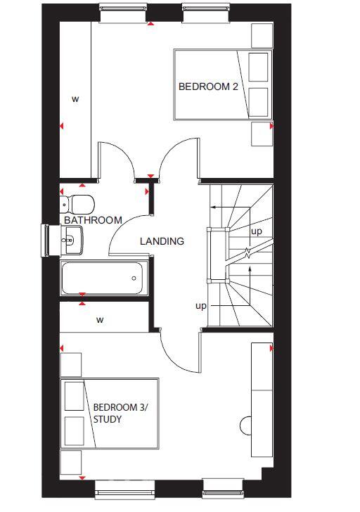
- Top-floor main bedroom with dressing area and en suite
- Driveway parking for two cars; small rear garden
- Approximately 1,136 sq ft overall; average internal sizes
- Tenure not specified—buyer should verify
- Located in a cosmopolitan, student-influenced neighbourhood
This contemporary three-bedroom home at Darwin Green is a modern, energy-efficient newcomer designed over three floors. The ground floor offers an open-plan kitchen, dining and family area with French doors to a small, low-maintenance garden. Solar panels and an EV charging pod reduce running costs, while driveway parking for two cars is a practical bonus.
Two double bedrooms and the family bathroom occupy the first floor. The entire top floor is dedicated to an expansive main bedroom with a dressing area and an en suite, creating a private retreat and good separation between living and sleeping spaces. The internal layout and room sizes suit a family wanting flexible living and a clear primary bedroom.
This is a new-build property of about 1,136 sq ft on a small plot in a cosmopolitan, student-influenced neighbourhood within a very affluent area. Local amenities are strong, broadband and mobile signal are excellent, and there are highly rated schools nearby, including an Outstanding primary.
Notable practical points: tenure is not specified and should be confirmed. The plot and garden are modest, and the area’s mixed character (student neighbourhoods) may bring periods of increased activity. Overall it presents low-maintenance, modern living with energy-saving features and good family-focused layout.
3 bedroom end of terrace house for sale in Darwin Green,
Shrewsbury Road,
CB3 0GX, CB3 — £597,995 • 3 bed • 1 bath • 1136 ft²
3 bedroom terraced house for sale in Darwin Green,
Shrewsbury Road,
CB3 0GX, CB3 — £584,995 • 3 bed • 1 bath • 1136 ft²
3 bedroom detached house for sale in Darwin Green,
Shrewsbury Road,
CB3 0GX, CB3 — £599,995 • 3 bed • 1 bath • 761 ft²
3 bedroom semi-detached house for sale in Darwin Green,
Shrewsbury Road,
CB3 0GX, CB3 — £573,995 • 3 bed • 1 bath • 870 ft²
4 bedroom semi-detached house for sale in Darwin Green,
Shrewsbury Road,
CB3 0GX, CB3 — £722,995 • 4 bed • 1 bath • 1345 ft²
3 bedroom house for sale in Darwin Green, Cambridge, Cambridgeshire, CB3 — £584,995 • 3 bed • 1 bath • 1157 ft²


























































