Bright new-build home with sustainability features and practical family layout.
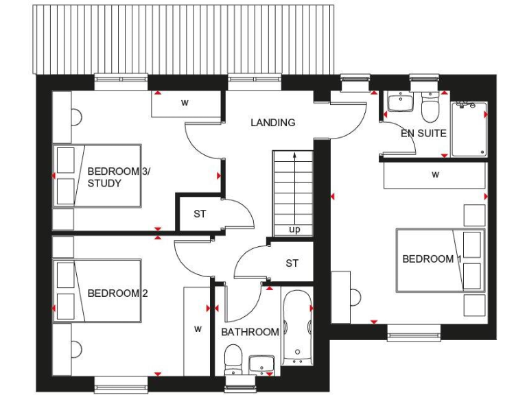
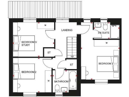
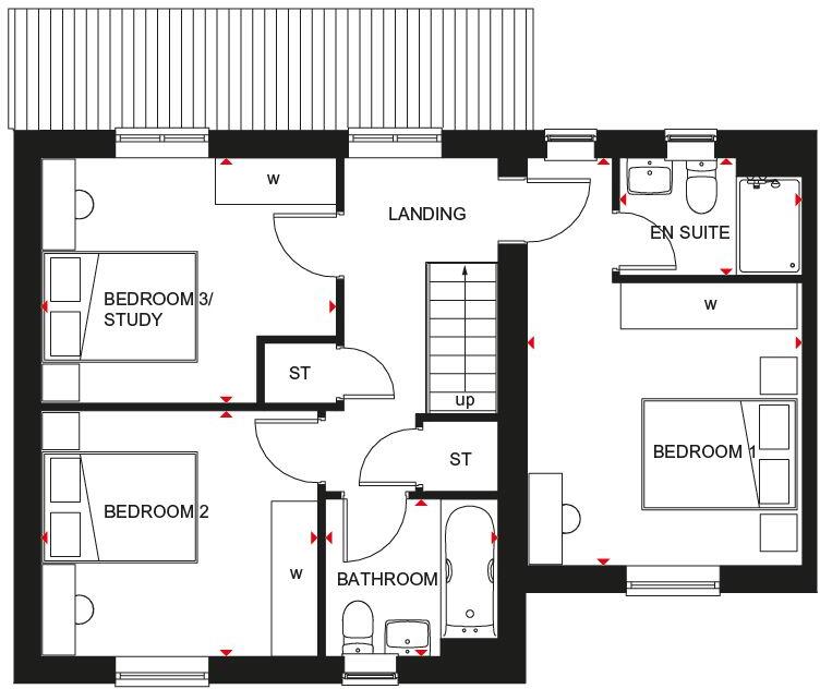
Three double bedrooms, principal with en suite and dressing area
This three-bedroom semi-detached new build on Darwin Green offers a bright, modern layout aimed at family life. An open-plan kitchen/diner with upgraded appliances leads to a south‑west facing garden, while the lounge’s box-bay window brings extra daylight. Practical extras include fitted flooring throughout, bicycle storage, and a driveway for two cars with a carport.
Sustainability and future running-cost savings are genuine strengths: fitted solar panels and an EV charging point are included. The principal bedroom features an en suite and dressing area, with two further double bedrooms and a family bathroom upstairs — sensible accommodation for parents and children or for flexible home-working arrangements.
Be aware of a few material points: the plot is modest in size, so outdoor space is small compared with larger suburban gardens. There is a single family bathroom plus an en suite; households wanting more than one full family bathroom should note this. Tenure is not specified, which is a key legal detail buyers will want confirmed early in the process.
Located within the masterplanned Darwin Green scheme, the home benefits from low local crime, excellent broadband and strong active-travel connections into Cambridge. The immediate neighbourhood mixes student-oriented amenities and family-focused facilities, making it well suited to growing families seeking convenient access to schools and city amenities.
3 bedroom detached house for sale in Darwin Green,
Shrewsbury Road,
CB3 0GX, CB3 — £599,995 • 3 bed • 1 bath • 761 ft²
3 bedroom end of terrace house for sale in Darwin Green,
Shrewsbury Road,
CB3 0GX, CB3 — £597,995 • 3 bed • 1 bath • 1136 ft²
3 bedroom terraced house for sale in Darwin Green,
Shrewsbury Road,
CB3 0GX, CB3 — £584,995 • 3 bed • 1 bath • 1136 ft²
4 bedroom semi-detached house for sale in Darwin Green,
Shrewsbury Road,
CB3 0GX, CB3 — £644,995 • 4 bed • 1 bath • 1158 ft²
3 bedroom semi-detached house for sale in Darwin Green,
Shrewsbury Road,
CB3 0GX, CB3 — £624,995 • 3 bed • 1 bath • 983 ft²
4 bedroom detached house for sale in Darwin Green,
Shrewsbury Road,
CB3 0GX, CB3 — £629,995 • 4 bed • 1 bath • 979 ft²






































