Stylishly renovated single-level home with large garden, garage and home office.
South-facing large landscaped garden with countryside views
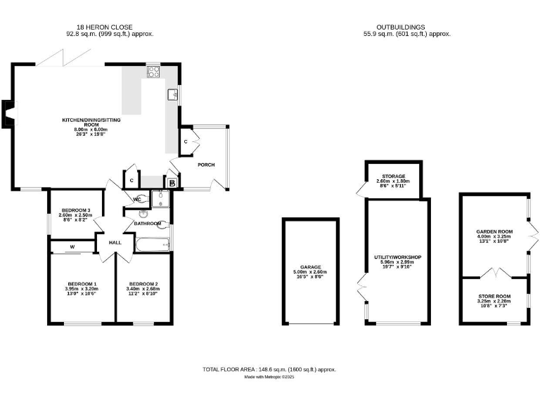
Peaceful single-level living in a beautifully presented three-bedroom detached bungalow, ideal for downsizers seeking comfort and low-maintenance space. The recently refurbished interior opens into a bright open-plan kitchen/living/sitting room with Karndean flooring and bi-fold doors that frame a sunny south-facing garden and countryside views.
The plot is a standout: very large landscaped gardens, a paved patio for al fresco dining, a powered garden room/home office with adjoining storage, and a detached garage plus multiple driveway parking spaces — useful for visitors, a trailer or boat. Practical outbuildings include a useful utility/workshop with additional store room.
This property is tucked away in a quiet no-through road close to Sway village centre, shops, pub and mainline rail. It sits on the southern edge of the New Forest National Park, offering rural charm yet quick access to Lymington and local schools rated Good–Outstanding.
Important practical points: the home has been newly renovated but provides one family bathroom plus a separate cloakroom rather than two full bathrooms. Council tax is above average. The accommodation is a sensible average size (about 999 sq ft) on a very large plot — excellent for outdoor enjoyment but requiring routine garden maintenance.
3 bedroom bungalow for sale in Arnewood Bridge Road, Sway, Lymington, Hampshire, SO41 — £895,000 • 3 bed • 2 bath • 1739 ft²
3 bedroom detached bungalow for sale in Pitmore Lane, Lymington, SO41 — £825,000 • 3 bed • 2 bath • 1588 ft²
3 bedroom detached house for sale in Pauls Lane, Sway, Hampshire, SO41 — £775,000 • 3 bed • 2 bath • 1519 ft²
3 bedroom detached house for sale in Bond Close, Sway, Lymington, SO41 — £680,000 • 3 bed • 1 bath • 1354 ft²
2 bedroom bungalow for sale in Badgers Close, Sway, Lymington, Hampshire, SO41 — £635,000 • 2 bed • 2 bath • 1020 ft²
3 bedroom bungalow for sale in Hawthorn Drive, Sway, Lymington, Hampshire, SO41 — £569,950 • 3 bed • 1 bath • 1265 ft²














































































































































