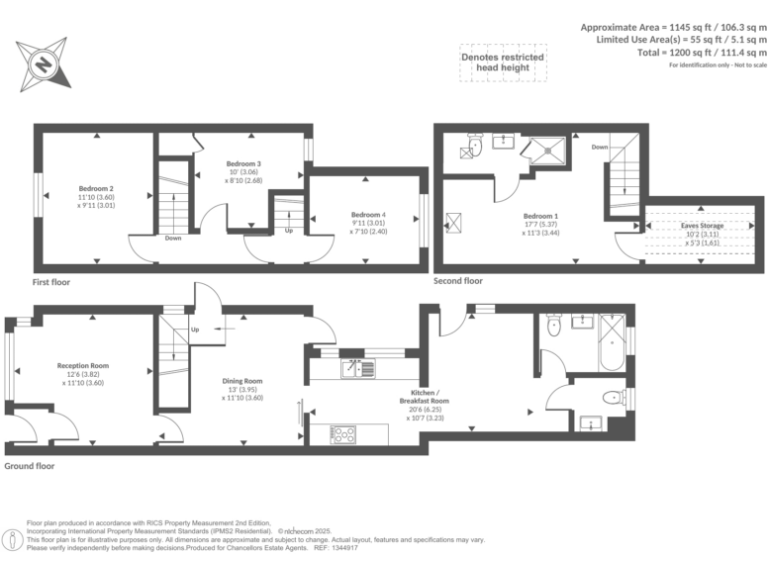
Period family home with loft ensuite, garden and parking near Slough stations..
Three bedrooms plus loft ensuite (usable as fourth bedroom)
A spacious semi-detached 1930s home offering flexible family accommodation a short distance from Slough town centre and transport links. The house is arranged over three floors and includes a loft room with an ensuite, providing scope to use the property as three bedrooms plus a private master or a four-bedroom layout depending on needs. Two reception rooms, a bright breakfast room and a rear garden with a brick outbuilding give practical family living and home-working options.
Practical benefits include off-street parking for two cars, mains gas central heating and double glazing already fitted. Nearby schools include several rated Good and an Outstanding grammar school, while local amenities and fast broadband make the location convenient for commuters and families.
The property does need some updating: the solid brick walls are likely uninsulated, glazing is older (pre-2002) and the living room shows signs of potential damp which should be investigated. Crime levels in the area are above average. These factors make the house well suited to buyers prepared to carry out targeted refurbishment to increase energy efficiency and resale value.
Overall, this is a versatile, period-family home with immediate practical benefits and clear potential for improvement — a good match for family buyers or owner-occupiers seeking extra space near Slough transport links.
5 bedroom semi-detached house for sale in Diamond Road, SLOUGH, SL1 — £475,000 • 5 bed • 2 bath • 1158 ft²
4 bedroom detached house for sale in Stoke Road, Slough SL2 — £750,000 • 4 bed • 4 bath • 1414 ft²
4 bedroom semi-detached house for sale in Bradley Road, Slough, SL1 — £450,000 • 4 bed • 4 bath • 980 ft²
4 bedroom semi-detached house for sale in Slough, Berkshire, SL2 — £550,000 • 4 bed • 2 bath • 1707 ft²
4 bedroom semi-detached house for sale in Whitby Road, SLOUGH, SL1 — £500,000 • 4 bed • 2 bath • 789 ft²
4 bedroom detached house for sale in Slough, SL1, SL1 — £800,000 • 4 bed • 2 bath • 1575 ft²


















































































