Spacious Victorian family home near transport and top-rated schools..
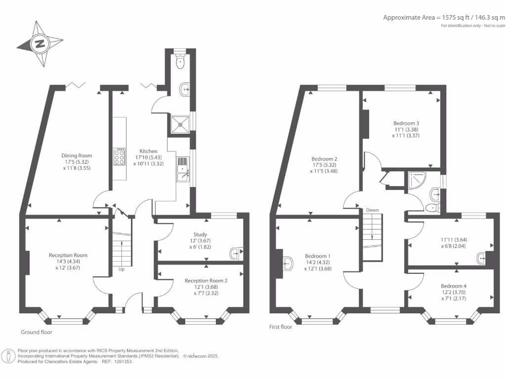
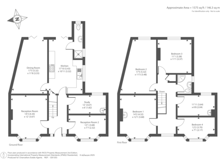
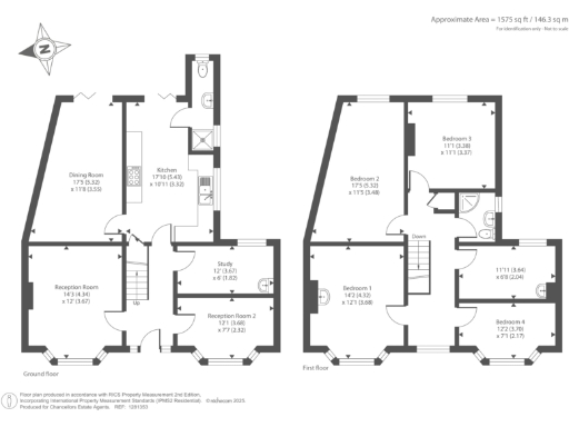
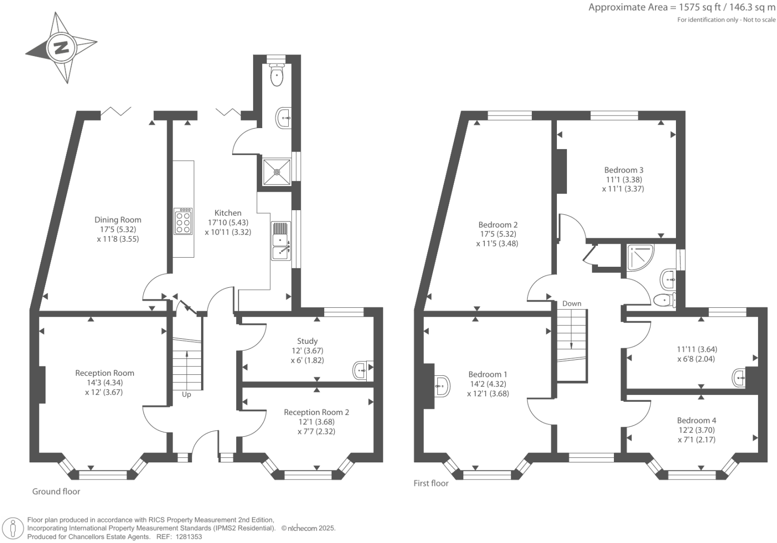
Four double bedrooms and two bathrooms, generous family accommodation
Three reception rooms — flexible space for dining, office or play
Decent-sized rear garden, suitable for children and outdoor dining
Presented in immaculate condition; ready to move into
Built c.1900–1929 with solid brick walls; likely no wall insulation
High local crime and very deprived area — factor safety considerations
Council tax above average — budget for higher running costs
Excellent transport links, shops nearby, several Outstanding-rated schools
This spacious four-bedroom home offers generous family living in a central Slough location. The property has three reception rooms, a rear extension and a decent-sized garden, arranged over approximately 1,575 sq ft, and is presented in immaculate condition — ready for immediate occupation.
The house suits families who need flexible living space: separate reception rooms for dining, study or play, two bathrooms and four well-proportioned bedrooms. Nearby transport links, shops and a mix of local schools — including several rated Outstanding — add practical convenience for daily life and commuting.
Buyers should note clear area and property facts: the local neighbourhood has very high deprivation and high crime levels, and council tax is above average. The house was constructed c.1900–1929 with solid brick walls and likely no wall insulation, so thermal performance may be poorer than modern builds and further insulation work could be needed.
Overall this is a roomy, characterful Victorian property with immediate liveability and long-term potential. It will especially suit families seeking space and proximity to schools and transport, but buyers should factor in area safety statistics and potential energy-improvement works.
4 bedroom detached house for sale in Spring Lane, Cippenham, Berkshire, SL1 — £700,000 • 4 bed • 2 bath • 1247 ft²
4 bedroom detached house for sale in Stoke Road, Slough SL2 — £750,000 • 4 bed • 4 bath • 1414 ft²
4 bedroom semi-detached house for sale in Diamond Road, Slough, SL1 — £450,000 • 4 bed • 3 bath • 1044 ft²
4 bedroom semi-detached house for sale in Slough, SL1, SL1 — £700,000 • 4 bed • 3 bath • 1739 ft²
4 bedroom semi-detached house for sale in Kendal Drive, Slough, SL2 — £575,000 • 4 bed • 2 bath • 972 ft²
4 bedroom semi-detached house for sale in Elliman Avenue, Slough, SL2 — £540,000 • 4 bed • 2 bath • 1228 ft²


































































































