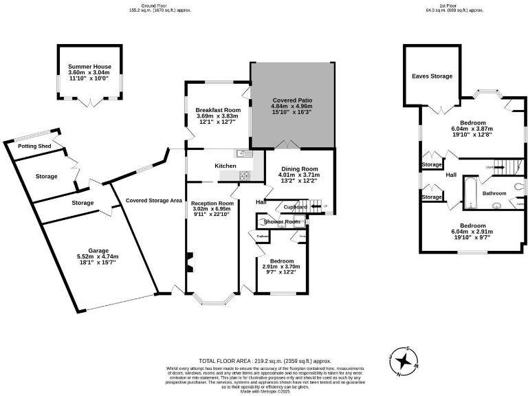
Large garden and summerhouse with garage and workshop potential for family living.
Over 2,300 sq ft of accommodation across multiple levels
Set back in a secluded, leafy plot on Church Road, this distinctive chalet-style bungalow offers over 2,300 sq ft of flexible living and a strong cottage character. The reception room with an open brick fireplace and separate dining and kitchen/breakfast rooms create a series of comfortable, well-proportioned living spaces that open onto a bright 16 x 15 ft garden room — ideal for al fresco dining and family gatherings.
The substantial, mature garden is the property’s standout feature, with a summerhouse, covered storage areas and planted borders that provide privacy and entertaining space. A double garage plus attached storage rooms offer good parking and practical workshop potential for hobbies or DIY projects. Three double bedrooms and ample built-in storage make the house well suited to a family wanting generous ground-floor accommodation with additional upstairs rooms.
Practical details to note: the house was built in the late 1960s/early 1970s and has double glazing installed after 2002, mains gas central heating and a boiler with radiators. The EPC is D and the cavity walls are assumed to be uninsulated, so energy upgrading could improve running costs. Council tax is above average for the area.
This property will particularly appeal to buyers seeking a private, characterful home with a large garden and scope to modernise and personalise. Viewing is recommended to appreciate the scale of the plot, the reception space and the workshop/garage potential.
4 bedroom detached bungalow for sale in The Drive, Ewell Court, KT19 — £775,000 • 4 bed • 1 bath • 1524 ft²
3 bedroom detached bungalow for sale in Meadow Walk, The Orchard, Ewell, KT17 — £750,000 • 3 bed • 1 bath • 1546 ft²
5 bedroom detached bungalow for sale in South Mead, Ewell, KT19 — £795,000 • 5 bed • 3 bath • 1701 ft²
3 bedroom detached bungalow for sale in Ruxley Close, West Ewell, Epsom, KT19 — £650,000 • 3 bed • 1 bath • 814 ft²
4 bedroom detached bungalow for sale in Manor Drive, Ewell, KT19 — £1,000,000 • 4 bed • 2 bath • 2700 ft²
2 bedroom detached bungalow for sale in Preston Drive, Epsom, KT19 — £650,000 • 2 bed • 1 bath • 1334 ft²






























































































































