Compact two-bedroom home with garage and garden, great for first-time buyers.
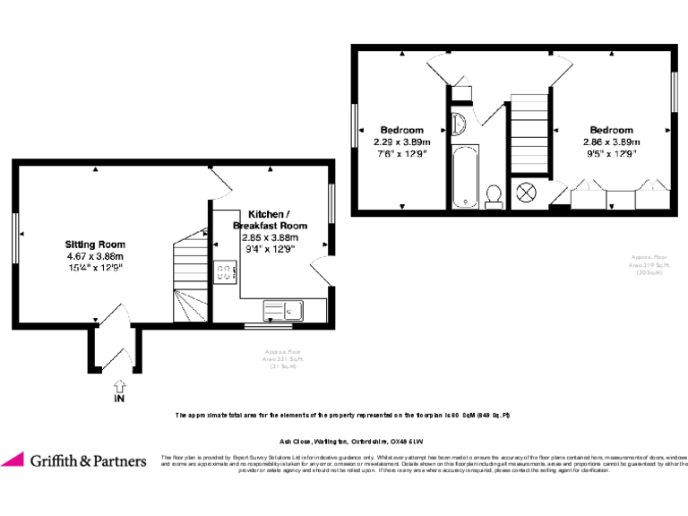
2 double bedrooms and one bathroom in a compact 635 sq ft layout
South-west facing enclosed garden with good afternoon/evening light
Corner plot offering scope to extend subject to planning permission
Single garage, plus off-street parking for at least one car
Quiet cul-de-sac location with easy access to Watlington amenities
Discrepancy on heating type—confirm gas vs electric storage heating
Small plot size; modest outdoor space and limited expansion footprint
Freehold tenure; council tax Band C (affordable)
Set on a corner plot in a quiet cul-de-sac of Watlington, this two-bedroom semi-detached home offers a practical, compact layout and scope to add value. The sitting room and kitchen/breakfast room provide sensible everyday living space, while the south-west facing rear garden delivers good afternoon and evening light. A single garage and off-street parking add convenience in this small-town location close to local amenities and highly rated schools.
The property presents clear opportunities to improve and extend subject to planning permission; the current footprint and wrap-around plot make this realistic for anyone wanting to create more space. The accommodation is presented in generally tidy condition but buyers should allow for modernisation in places to reflect personal taste and to maximise resale value. Services and installations have not been tested, so buyers should verify working order and specification.
A notable point for investigation: the listing mentions a gas-fired boiler and gas central heating in the description, but other data records electric storage heating as the main system. Prospective purchasers should confirm the actual heating fuel and system when viewing. The house is freehold, in a very affluent area with fast broadband and excellent mobile signal — appealing for first-time buyers or purchasers seeking a straightforward investment with improvement potential.
2 bedroom terraced house for sale in Ash Close, OX49 — £340,000 • 2 bed • 1 bath • 646 ft²
4 bedroom semi-detached house for sale in Spring Lane, Watlington, OX49 — £539,000 • 4 bed • 1 bath • 1367 ft²
4 bedroom semi-detached house for sale in Beech Close, Watlington, OX49 — £475,000 • 4 bed • 2 bath • 1121 ft²
3 bedroom semi-detached house for sale in Spring Lane, Watlington, OX49 — £400,000 • 3 bed • 1 bath • 1109 ft²
3 bedroom bungalow for sale in Brookside, Watlington, OX49 — £380,000 • 3 bed • 1 bath • 750 ft²
2 bedroom cottage for sale in Tyne Cottage, Watlington, OX49 — £549,995 • 2 bed • 1 bath • 797 ft²










































