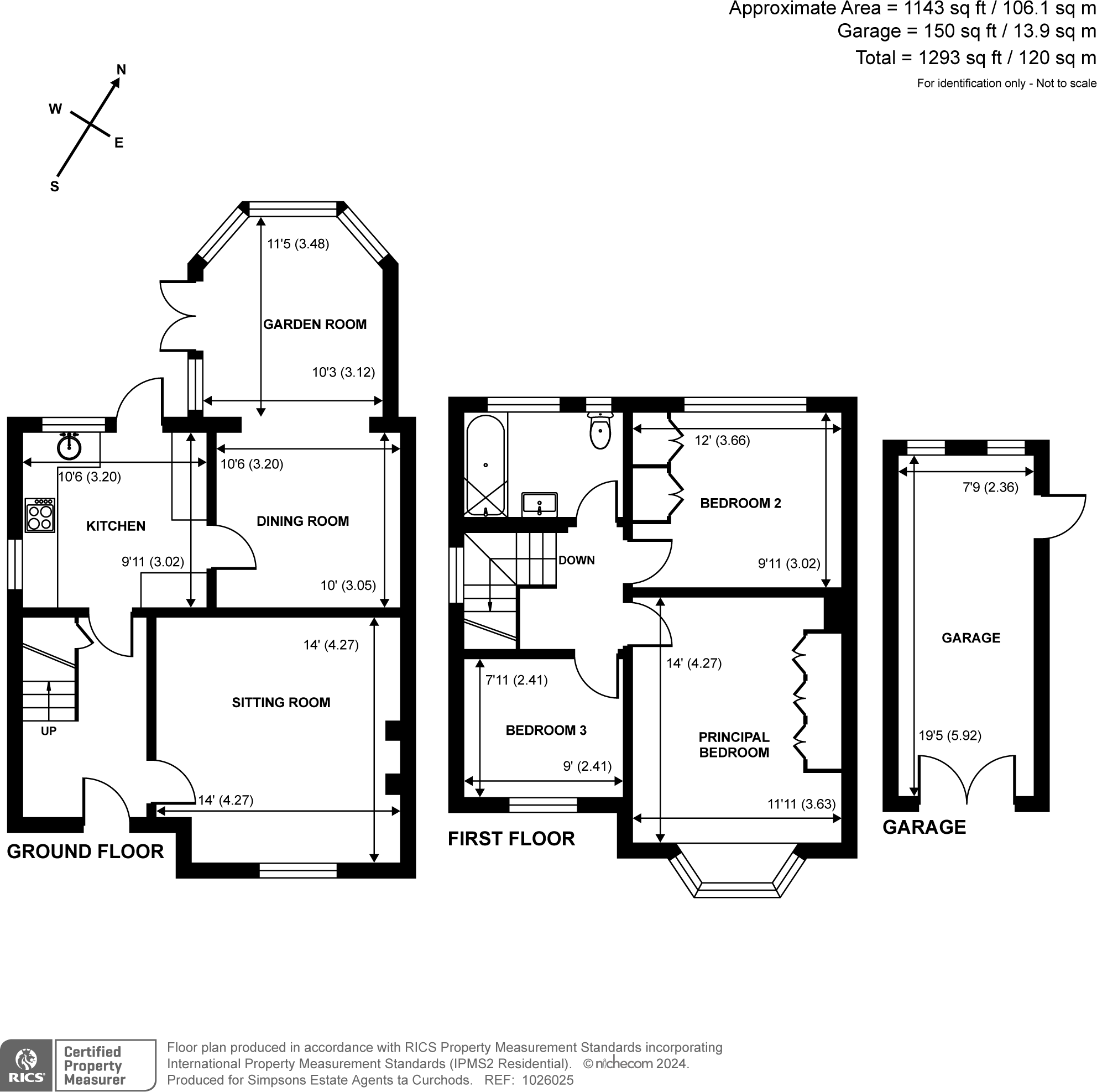
Beautifully presented 1940s family home with west garden, garage and extension potential.
3 double bedrooms in traditional 1940s semi-detached layout
Scope to extend (subject to planning permission) for extra living space
Private, mature west-facing garden — good evening sun
Detached garage used mainly as storage/workshop (may need modification)
Driveway parking for several cars; convenient for commuters
Single family bathroom — may need adding/enlarging for some buyers
Solid brick walls as built; no assumed cavity insulation
Council tax above average for the area
This attractive 1940s semi-detached home offers a comfortable, naturally bright interior across well-proportioned rooms — an appealing choice for families seeking space close to Cobham and Stoke D’Abernon station. The main sitting room features a wood-burner stove and bay window that add character and warmth, while double glazing (installed post-2002) helps with energy efficiency.
Set on a decent plot with a private, mature west-facing garden, the house benefits from evening sunshine and scope to extend (subject to planning permission) for buyers wanting extra living space. Off-street driveway parking for several cars and a detached garage arranged primarily as storage/workshop provide useful practical space, though the garage may not suit regular vehicle parking without modification.
Built in solid brick, the property retains period charm but assumes no wall insulation as originally constructed — a consideration if improving thermal performance is a priority. There is one family bathroom serving three bedrooms; buyers wanting a larger or additional bathroom can explore the extension potential. Council tax sits above average for the area.
Location is a key strength: excellent local state and independent schools, fast broadband, and a short walk to rail links make this a strong family-focused commuter option in a very affluent neighbourhood. Overall, the house is beautifully presented and ready to move into, with clear potential to personalise and extend.
3 bedroom semi-detached house for sale in Northfield Road, Cobham, Surrey, KT11 — £550,000 • 3 bed • 2 bath • 1159 ft²
3 bedroom semi-detached house for sale in Lockhart Road, Cobham, Surrey, KT11 — £565,000 • 3 bed • 1 bath • 1130 ft²
3 bedroom semi-detached house for sale in Canada Road, Cobham, Surrey, KT11 — £750,000 • 3 bed • 1 bath • 1494 ft²
3 bedroom detached house for sale in Station Road, Stoke D'Abernon, Cobham, KT11 — £995,000 • 3 bed • 3 bath • 1569 ft²
3 bedroom detached house for sale in Knowle Park, Cobham, KT11 — £1,050,000 • 3 bed • 1 bath • 1226 ft²
4 bedroom semi-detached house for sale in D'Abernon Drive, Stoke D'Abernon, Cobham, KT11 — £995,000 • 4 bed • 2 bath • 1550 ft²


























































