Spacious suburban home close to station, ready to personalise and occupy.
3 bedrooms and 3 bathrooms offering flexible family accommodation
Short walk to Cobham train station — excellent commuter location
Generous living and dining rooms with natural light and fireplace
Private rear garden and driveway for multiple vehicles
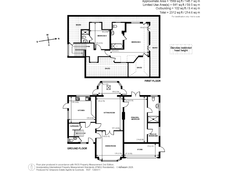
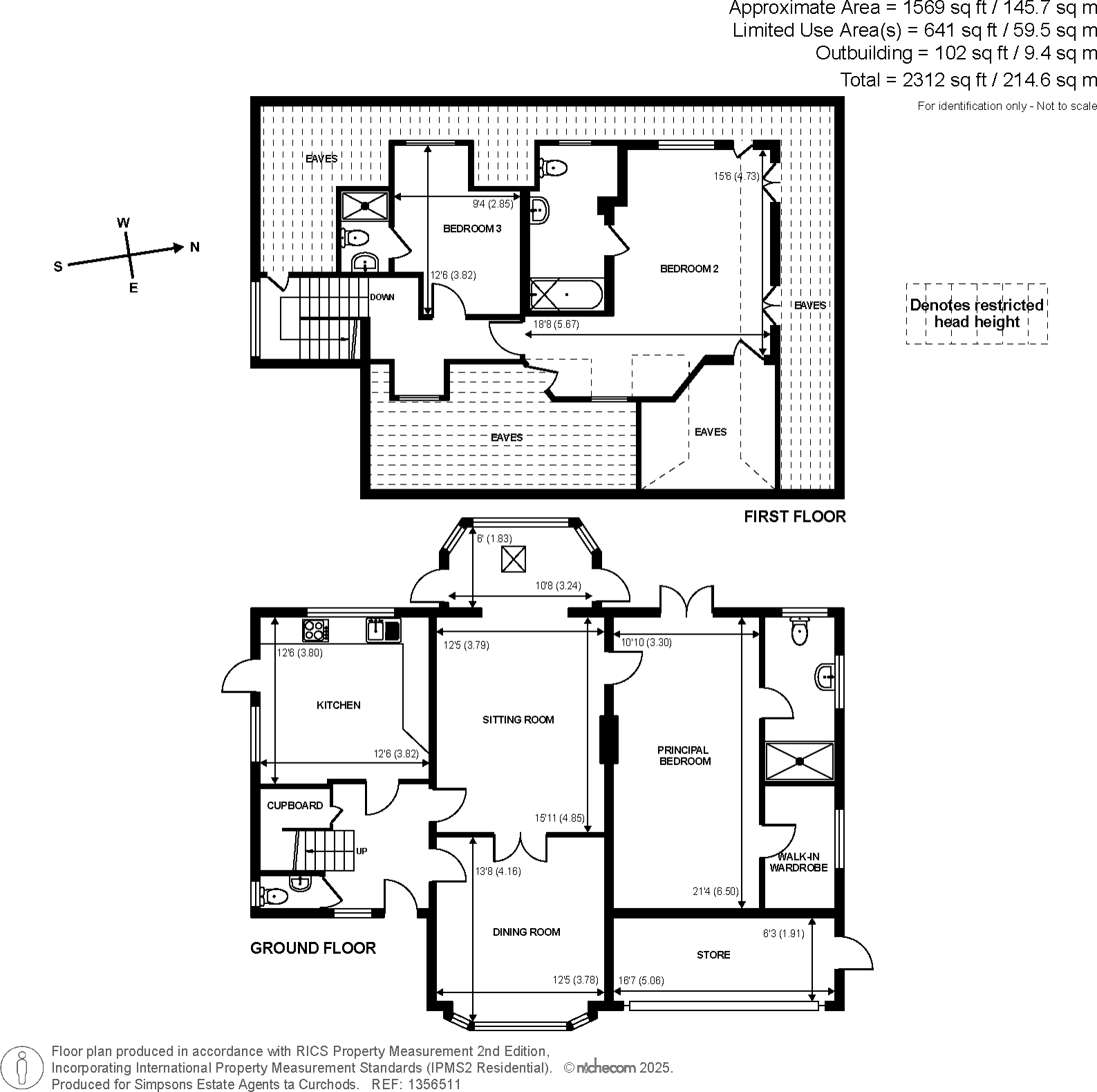
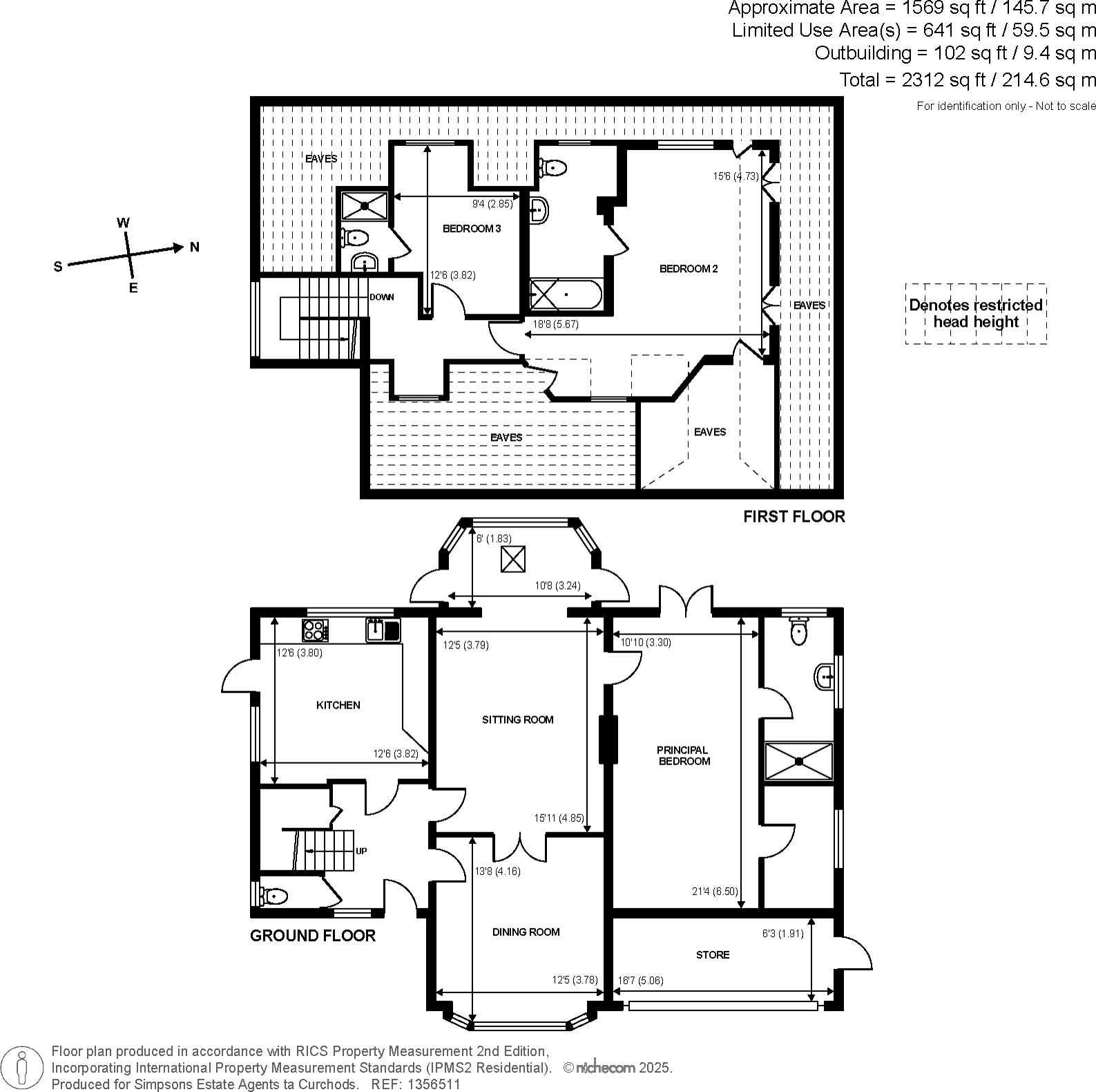
Large footprint (~1,569 sq ft) with useful eaves storage
House dates from 1950s–60s; cavity walls assumed uninsulated
Areas of restricted head height in loft/eaves reduce usable space
Medium flood risk and relatively expensive council tax
This chalet-style detached house offers flexible family living in a highly convenient location just a short walk from Cobham/Station Road rail services. The ground floor includes a large living room, dining room, fitted kitchen and a double bedroom with en-suite, while two further bedrooms and a bathroom occupy the first floor with useful eaves storage.
Outside there is a private, prettily planted rear garden and a paved driveway with space for multiple cars. The house is presented in good order and benefits from double glazing, mains gas central heating and a generous overall footprint (approximately 1,569 sqft), making it ready to occupy with scope for small updates to reflect contemporary tastes.
Practical points to note: the property dates from the 1950s–1960s and cavity walls are assumed to have no added insulation, so further thermal upgrades could be considered. There are areas of restricted head height in the eaves which limit fully usable floor area. Flood risk is assessed as medium and council tax banding is on the high side.
With no onward chain and freehold tenure, this home should appeal to growing families or downsizers seeking good access to transport links and local schools, plus the opportunity to add value through modest modernisation.
3 bedroom bungalow for sale in Freelands Road, Cobham, KT11 — £795,000 • 3 bed • 2 bath • 1407 ft²
3 bedroom semi-detached house for sale in Canada Road, Cobham, Surrey, KT11 — £750,000 • 3 bed • 1 bath • 1494 ft²
3 bedroom detached house for sale in Heath Ridge Green, Cobham, Surrey, KT11 — £1,095,000 • 3 bed • 2 bath • 1858 ft²
3 bedroom detached house for sale in Hogshill Lane, Cobham, KT11 — £1,195,000 • 3 bed • 2 bath • 1700 ft²
3 bedroom detached house for sale in Fairmile Lane, Cobham, KT11 — £1,400,000 • 3 bed • 3 bath • 2081 ft²
3 bedroom bungalow for sale in Birch Grove, Cobham, Surrey, KT11 — £925,000 • 3 bed • 2 bath • 1800 ft²














































































