S81 8TH - 6 bed spacious six bedroom home in Hawson Way, S81 8TH

View on Property Piper

6 bedroom detached house for sale in Hawson Way, Gateford, Worksop, S81

Summary - 14 HAWSON WAY GATEFORD WORKSOP S81 8TH

6 bed 2 bath Detached

Extensive family accommodation with woodland edge position and double garage.
Chain-free freehold sale, straightforward completion potential
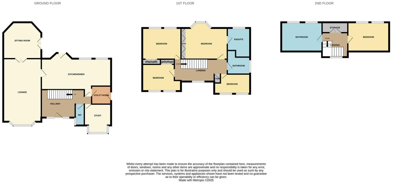
This substantial six-bedroom detached home sits at the edge of a sought-after Gateford estate, fronting woodland for added privacy. Extended and well presented, the layout spans three storeys and includes two reception rooms, an extended study, and a dining kitchen fitted with high-gloss units and granite surfaces. The property benefits from gas central heating and uPVC double glazing installed after 2002.

Bedrooms are arranged across the first and second floors, with four double bedrooms on the first floor including a principal with fitted wardrobes and an ensuite. Two further bedrooms occupy the loft/second-floor level, providing flexible family or guest accommodation. Outside, a generous, non-overlooked rear garden complements a double-width driveway and double garage, ideal for larger households.

Practical considerations include freehold tenure and a chain-free sale, making completion straightforward. Note the council tax band is above average for the area and local recorded crime levels are above average; these are factual local factors for buyers to weigh. No flood risk is indicated.

A viewing is highly recommended to appreciate the room proportions, fixtures and fittings. The property suits a growing family seeking space, parking and a quiet position within comfortable suburbia, while offering scope for personal updating if desired.

Property Details

Brochure Descriptions

Image Descriptions

Floorplan Description

Rooms

Textual Property Features

Target Audience

AI Tags

Detected Visual Features

EPC Details

Nearby Schools

Nearest Bars And Restaurants

,,,,}

Nearest General Shops

,,}

Nearest Grocery shops

,,}

Nearest Supermarkets

,,}

Nearest Religious buildings

,,}

Nearest Medical buildings

,,,}

Nearest Airports

}

Nearest Leisure Facilities

,,,,}

Nearest Tourist attractions

,,}

Nearest Train stations

,,,,}

Nearest Bus stations and stops

,,,,}

Nearest Hotels

,,}

Tags

Local Market Stats

Similar Properties

Meta

High Res Images

Compatible Images

Low res Images

Thumbnails

Raw Images

High Res Floorplan Images

Compatible Floorplan Images

Low res Floorplan Images

FloorplanImages Thumbnail

Raw Floorplan Images