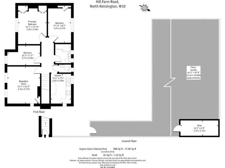
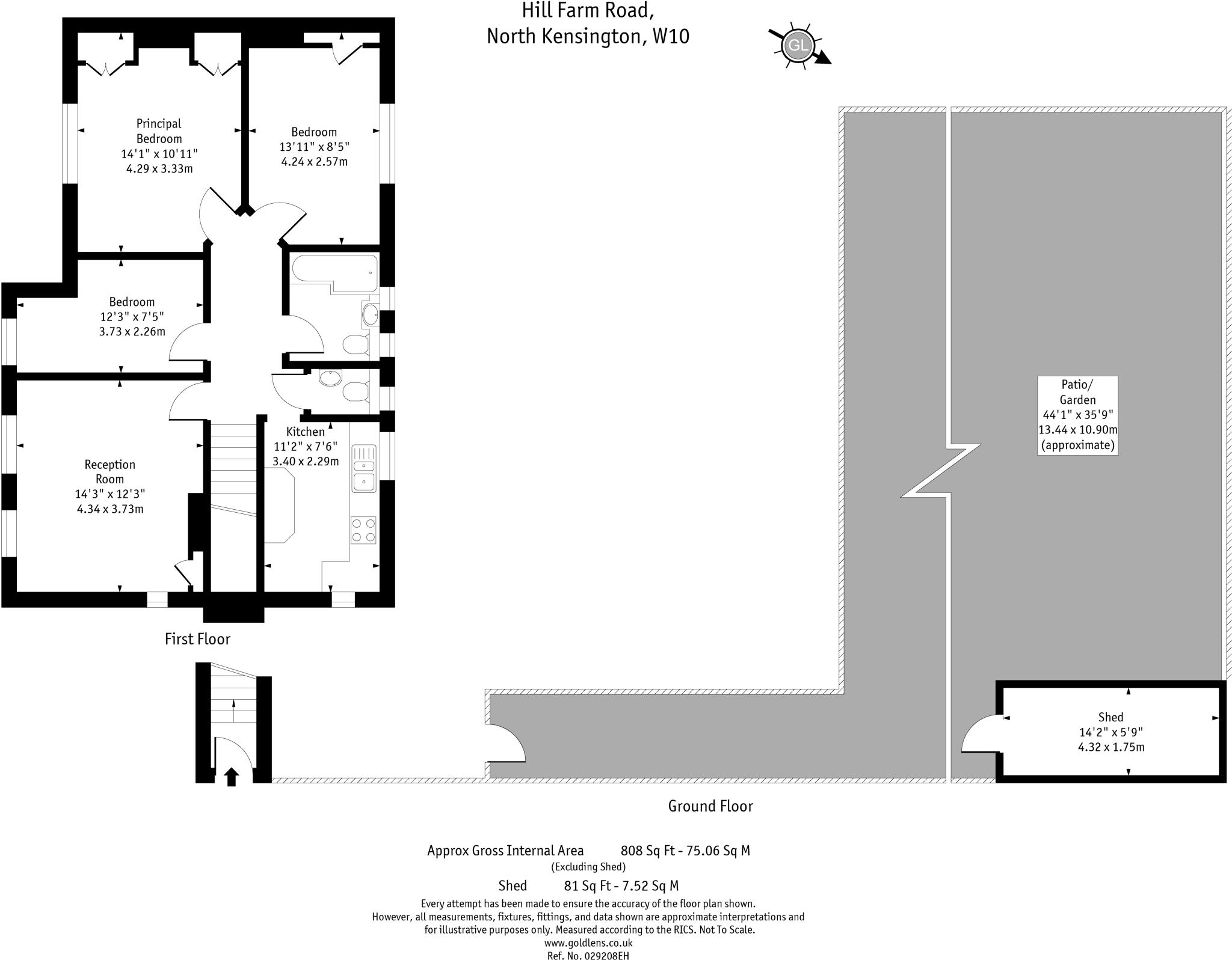
Spacious three-bedroom flat with long lease and rare private outdoor space.
South-facing reception room with strong natural light
Large private rear garden approx. 13.1 x 10.3 m
Private entrance and demised loft storage
Long lease (989 years) and share of freehold
Compact internal footprint: 808 sq ft for three bedrooms
Single family bathroom only; one WC
Solid-brick construction likely without cavity insulation
Local area: high crime rate and signs of deprivation
Set on a quiet North Kensington street, this three-bedroom first-floor flat offers a rare private entrance and a very large rear garden — a standout feature for central London homes. The apartment extends to about 808 sq ft, with a bright south-facing reception, separate kitchen, contemporary family bathroom and demised loft storage. The long lease (989 years) and share of freehold provide secure ownership.
The accommodation is presented in good order with period character in the sash windows and modern finishes in the kitchen and bathroom. A substantial garden (approx. 13.1 x 10.3m) provides genuine outdoor space for family life, entertaining and storage, including a detached shed. Excellent local amenities include Golborne Road, Portobello Market and transport connections to Ladbroke Grove, Latimer Road and White City.
Practical considerations: the property is compact for three bedrooms and has a single bathroom, so it suits families who prioritise outside space over larger internal rooms, or buyers planning modest reconfiguration. The building dates from the 1930s with solid-brick walls likely lacking cavity insulation — further thermal or energy improvements are possible and might be considered.
Location benefits are balanced by local context: the area records higher crime levels and broader measures of deprivation, so buyers should check local data and safety measures. Service charge is modest at £900 (below average) and council tax is moderate. This is a well-located, characterful home offering an unusually large private garden and long-term ownership security.
3 bedroom apartment for sale in Hill Farm Road, London, W10 — £800,000 • 3 bed • 1 bath • 842 ft²
3 bedroom apartment for sale in Hill Farm Road, London, W10 — £700,000 • 3 bed • 1 bath • 852 ft²
3 bedroom flat for sale in Oakworth Road, London, W10 — £1,100,000 • 3 bed • 1 bath • 1056 ft²
3 bedroom flat for sale in Barlby Road, London, W10 — £650,000 • 3 bed • 1 bath • 751 ft²
3 bedroom maisonette for sale in Russel Road, Kensington, W14 — £925,000 • 3 bed • 2 bath • 1092 ft²
3 bedroom apartment for sale in Cambridge Gardens, W10 — £995,000 • 3 bed • 2 bath • 973 ft²














































