Newly renovated family living close to shops and fast rail links.
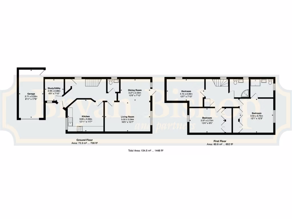
Chain-free freehold three-bedroom end-terrace, 1,448 sq ft
Set within a small, select development in Welwyn village, this larger-than-average three-bedroom end-terrace offers ready-to-use family accommodation across two floors. Recently renovated throughout, the house benefits from contemporary finishes, a well-equipped kitchen with quartz worktops, a principal bedroom with ensuite, and a flexible study/utility space for home working.
Practical features include an integral garage with power and EV charging, two driveway spaces, double glazing, gas central heating and fast broadband — all helpful for modern family life and commuting. The rear garden is enclosed, child- and pet-friendly, with a full-width patio and terraced lawn offering outdoor dining and play space.
Notable positives are the chain-free freehold status, 1,448 sq ft internal area, proximity to Welwyn village amenities, and quick rail links into central London. Buyers should be aware the plot is relatively small and frontage limited; council tax is described as expensive. Overall, the property presents straightforward move-in condition with scope to personalise landscaping or extend patio areas if desired.
3 bedroom semi-detached house for sale in Becket Gardens, Welwyn, AL6 — £525,000 • 3 bed • 1 bath • 862 ft²
3 bedroom house for sale in Church Street, Welwyn, AL6 — £775,000 • 3 bed • 1 bath • 1600 ft²
3 bedroom semi-detached house for sale in Butterwick Way, Welwyn, AL6 — £750,000 • 3 bed • 2 bath • 1337 ft²
3 bedroom end of terrace house for sale in Welwyn Hall Gardens, Welwyn, AL6 — £630,000 • 3 bed • 2 bath • 1212 ft²
4 bedroom detached house for sale in Wendover Drive, Welwyn, AL6 — £1,095,000 • 4 bed • 2 bath • 1972 ft²
3 bedroom end of terrace house for sale in Welwyn By Pass Road, Welwyn, AL6 — £450,000 • 3 bed • 2 bath • 1172 ft²














































































