Three-bedroom home close to village amenities and two parking spaces.
Three bedrooms including top-floor principal with en-suite
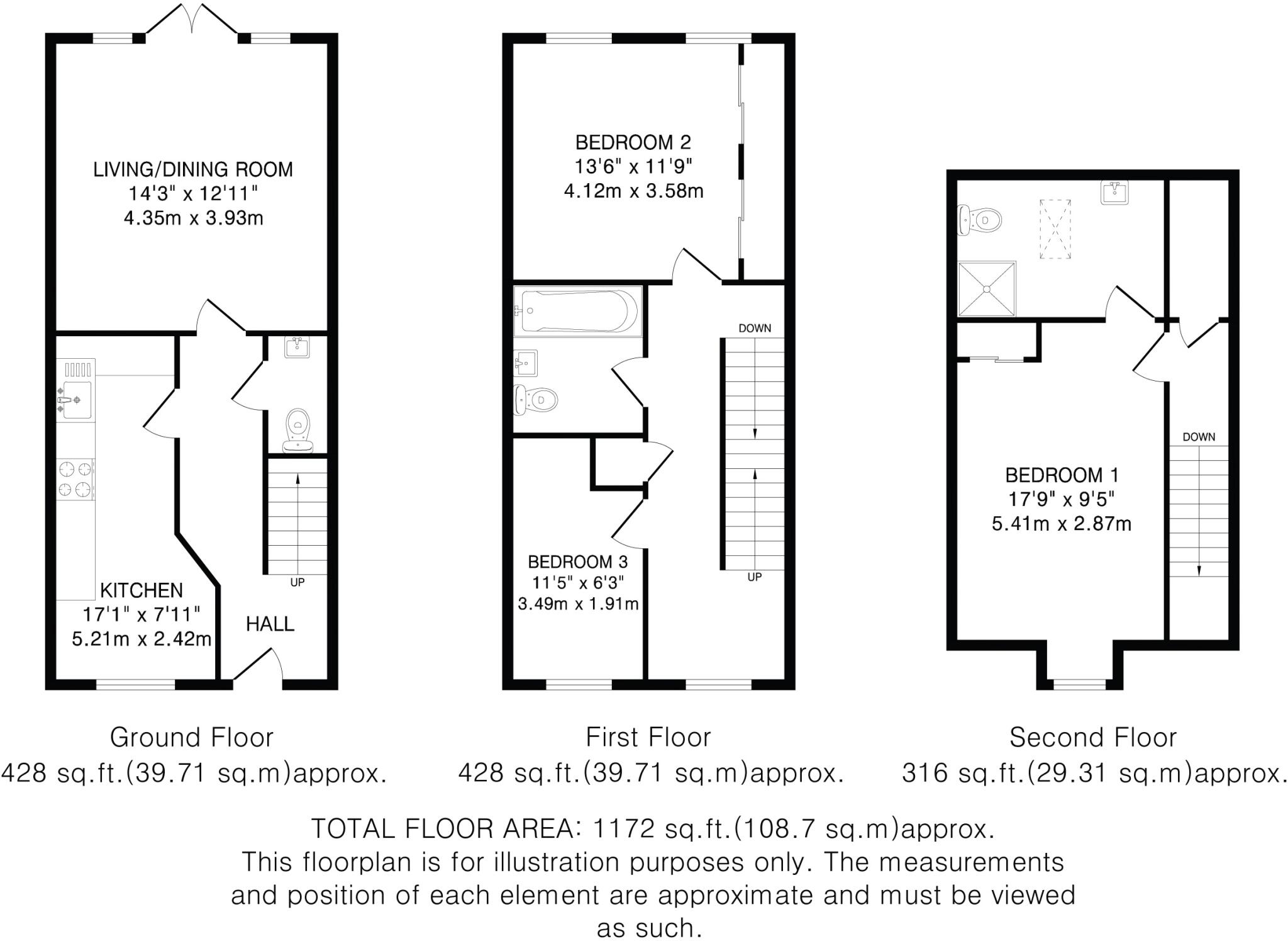
Set on the edge of Welwyn village, this modern three-bedroom end-of-terrace home balances contemporary living with convenient local amenities. The top-floor principal bedroom enjoys built-in wardrobes and an en-suite, while two further bedrooms and a family bathroom sit on the middle floor, offering flexible family accommodation.
Ground-floor living includes a bright living/dining room with French doors to a west-facing, low-maintenance garden and a kitchen/breakfast room. Outside, a gated rear access leads to two allocated parking spaces — a practical benefit for commuters or families with two cars.
Built between 2007–2011, the house benefits from double glazing, mains gas central heating and cavity wall insulation. The property is freehold with a modest monthly Trinity maintenance charge and a below-average annual service charge, but buyers should note the council tax is above average and the plot is relatively small.
This home will suit families seeking easy access to highly regarded local primary and secondary schools, village shops and transport links into Welwyn Garden City. It presents a turnkey option with scope for personalising finishes rather than major structural works.
3 bedroom terraced house for sale in Welwyn Hall Gardens, Welwyn, AL6 — £630,000 • 3 bed • 2 bath • 1145 ft²
3 bedroom end of terrace house for sale in Welwyn Hall Gardens, Welwyn, AL6 — £645,000 • 3 bed • 2 bath • 1212 ft²
3 bedroom end of terrace house for sale in Claves Crescent, Welwyn Garden City, Hertfordshire, AL7 1WN, AL7 — £525,000 • 3 bed • 2 bath • 944 ft²
3 bedroom semi-detached house for sale in Butterwick Way, Welwyn, AL6 — £750,000 • 3 bed • 2 bath • 1337 ft²
3 bedroom end of terrace house for sale in Lemsford Lane, Welwyn Garden City, Herts, AL8 — £650,000 • 3 bed • 2 bath • 1224 ft²
4 bedroom end of terrace house for sale in Birkin Court, Welwyn Garden City, Hertfordshire, AL7 — £550,000 • 4 bed • 2 bath • 1259 ft²


















































