**Standout Features:**
- Spacious 2-bedroom, 2-bathroom New York loft-style apartment 
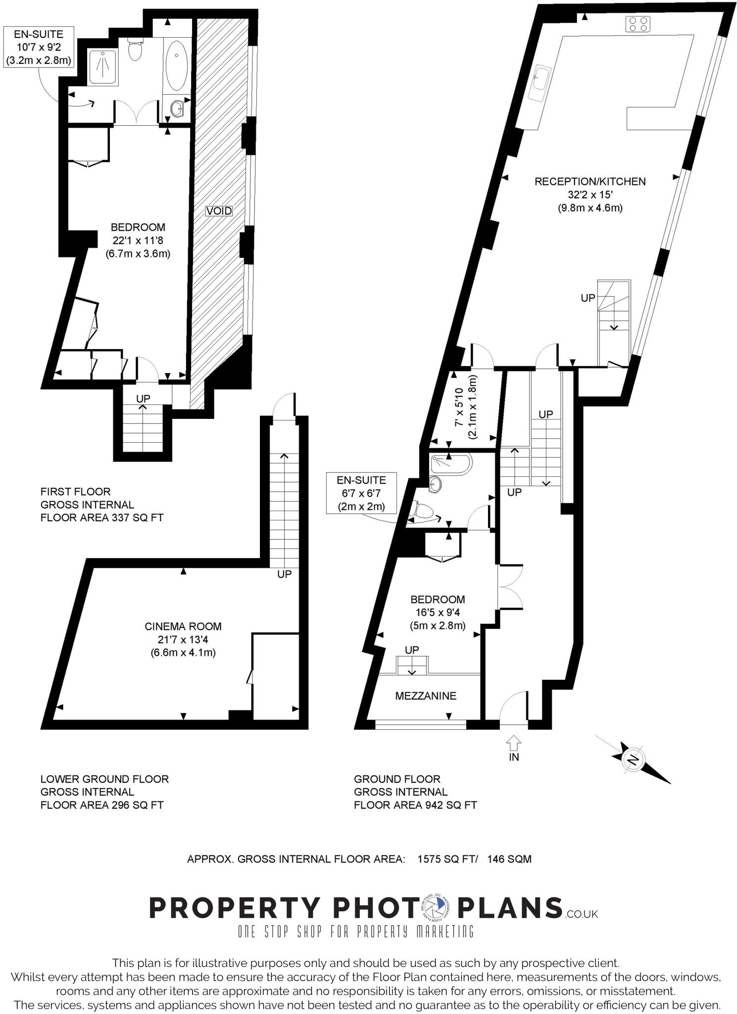
- Expansive 1,575 sq ft floor area with double-height ceilings 
- Contemporary open-plan living and kitchen space 
- Versatile cinema/office room 
- Share of Freehold and chain-free sale 
- Prime location in the Kennington Triangle near parks and cultural attractions 
- Excellent transport links to central London 
**Notable Concerns:**
- No visible external views 
- Average council tax and service charges 
- Solid brick walls with assumed no insulation 
Discover urban living at its finest in this remarkable two-bedroom, two-bathroom apartment on Loughborough Street, Kennington. Spanning an impressive 1,575 sq ft, this former "Handbag Factory" warehouse conversion seamlessly merges original industrial charm with modern design. The loft-style interior features soaring double-height ceilings and expansive windows, flooding the space with natural light and creating a warm and inviting atmosphere. An open-plan reception and kitchen are perfect for both relaxation and entertaining, complemented by a unique cinema room that offers flexible use as an office.
Situated in the heart of the vibrant Kennington Triangle, you’ll enjoy immediate access to Vauxhall Gardens, as well as numerous cafés and restaurants, placing you at the center of city life. Cultural gems like the Tate Modern and National Theatre are just a stone's throw away. 
Ideal for families and professionals alike, this well-placed apartment offers an exclusive, comfortable living space and the potential for future personalization. However, bear in mind the additional costs of council tax and service charges, alongside the potential for a lack of external views. Don’t miss this blend of contemporary living and urban convenience—properties like this don’t last long in such a desirable area!
 2 bedroom flat for sale in Loughborough Street, Kennington, London, SE11 — £725,000 • 2 bed • 2 bath • 1565 ft²
 2 bedroom flat for sale in Loughborough Street, Kennington, London, SE11 — £725,000 • 2 bed • 2 bath • 1565 ft² 1 bedroom flat for sale in The Lycee, Kennington, SE11 — £875,000 • 1 bed • 1 bath • 1300 ft²
 1 bedroom flat for sale in The Lycee, Kennington, SE11 — £875,000 • 1 bed • 1 bath • 1300 ft² 2 bedroom flat for sale in Tabard Centre, Bermondsey, SE1 — £1,250,000 • 2 bed • 2 bath • 1713 ft²
 2 bedroom flat for sale in Tabard Centre, Bermondsey, SE1 — £1,250,000 • 2 bed • 2 bath • 1713 ft² 2 bedroom apartment for sale in Waterloo Road, London SE1 — £975,000 • 2 bed • 2 bath • 1216 ft²
 2 bedroom apartment for sale in Waterloo Road, London SE1 — £975,000 • 2 bed • 2 bath • 1216 ft² 2 bedroom apartment for sale in Green Walk, London, SE1 — £899,950 • 2 bed • 2 bath • 1408 ft²
 2 bedroom apartment for sale in Green Walk, London, SE1 — £899,950 • 2 bed • 2 bath • 1408 ft² 2 bedroom apartment for sale in Dolland Street, London, SE11 — £600,000 • 2 bed • 1 bath • 757 ft²
 2 bedroom apartment for sale in Dolland Street, London, SE11 — £600,000 • 2 bed • 1 bath • 757 ft²














































