Roomy family home near schools and transport links, ideal for practical buyers.
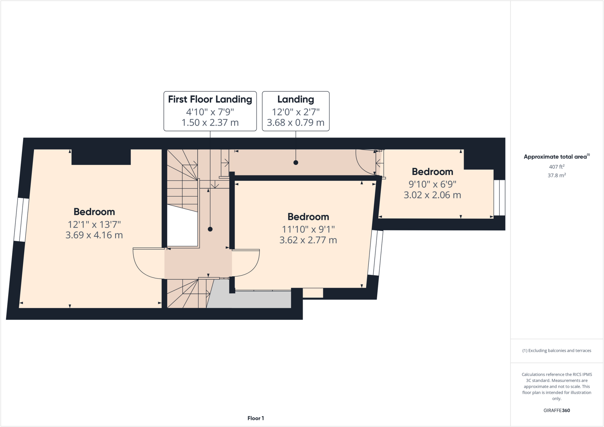
Four double bedrooms including extended second-floor bedroom with Velux windows
Deceptively spacious living layout across three floors, circa 1001 sqft
Low-maintenance rear garden with side access and mainly paved patio
Freehold tenure; council tax Band A (very cheap)
Single family bathroom only; may be limiting for larger households
EPC Rating D — potential to improve energy efficiency and costs
On-street parking only; no off-street or garage
Located in a very deprived area with higher local crime levels
This four-bedroom Victorian mid-terrace offers deceptively spacious family accommodation across three floors with generous bedroom sizes and practical living space. The second-floor extended bedroom with Velux windows and eaves storage adds flexibility for a growing household or home office.
Practical benefits include a low-maintenance rear garden with side access, freehold tenure, and easy access to local shops, schools and major roads linking to Derby city centre, Derby Royal Hospital and Rolls-Royce Sinfin. On-street parking and fast broadband/mobile signal support everyday needs.
Notable drawbacks are factual: the property has a single family bathroom, an EPC rating of D, and sits in a very deprived area with higher local crime levels. The plot is small and some buyers may want to update energy performance or modernise fixtures and finishes.
For families or first-time buyers seeking roomy accommodation at a modest price point, this home provides strong bedroom space and commuting convenience. Viewings are recommended to appreciate the internal scale and layout.
4 bedroom terraced house for sale in Nottingham Road, Chaddesden, Derby, DE21 — £205,000 • 4 bed • 1 bath • 760 ft²
4 bedroom terraced house for sale in Olivier Street, DERBY, Derbyshire, DE23 — £210,000 • 4 bed • 2 bath • 1095 ft²
2 bedroom terraced house for sale in Ward Street, Derby, DE22 — £140,000 • 2 bed • 1 bath • 684 ft²
4 bedroom terraced house for sale in St. Chads Road, Derby, DE23 — £169,950 • 4 bed • 1 bath • 1049 ft²
4 bedroom terraced house for sale in Etwall Street, Derby, DE22 — £220,000 • 4 bed • 2 bath • 1206 ft²
5 bedroom end of terrace house for sale in Dairyhouse Road, Derby, Derbyshire, DE23 — £275,000 • 5 bed • 2 bath • 1551 ft²






















































