Bright one-bedroom home with garage and long lease close to transport.
Short walk to cliff-top promenade and local shops
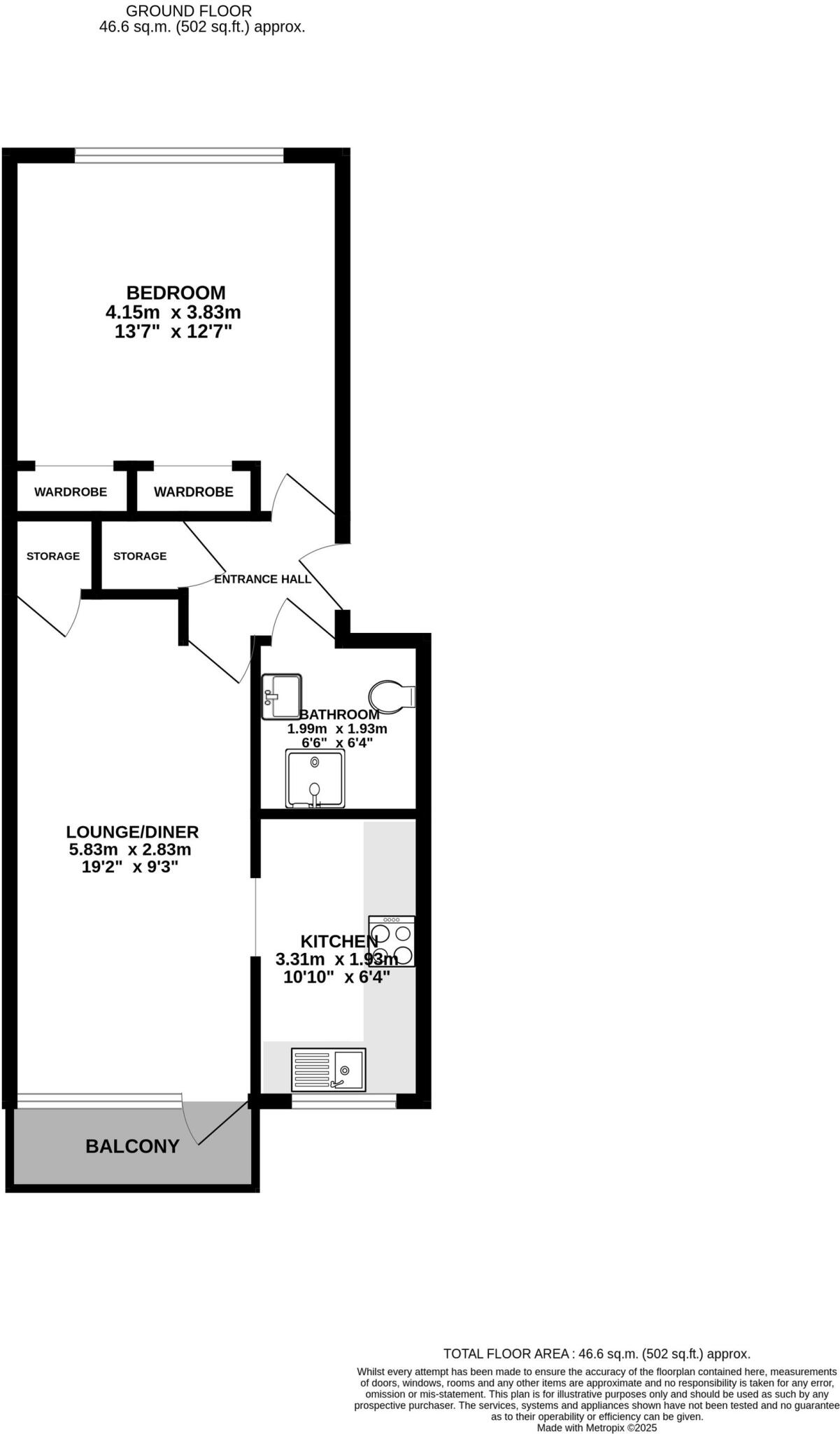
This one-bedroom ground-floor apartment sits a short walk from the cliff-top promenade, local shops and regular bus links, making daily journeys straightforward. The lounge opens onto a small balcony for fresh air, while a double bedroom with built-in wardrobes keeps storage tidy. The fitted kitchen has contemporary high-gloss units and the shower room is a simple white suite — comfortable and move-in ready for many buyers.
Practical extras include a private garage and a long lease with a share of freehold, providing security of tenure and off-street parking — a notable perk in this area. Council tax costs are very low, and mobile signal is excellent, helpful for remote working or keeping connected.
Be realistic about improvements: the building dates from the late 1960s/early 1970s and the EPC rating is E, so heating and insulation upgrades may be needed to improve efficiency and reduce bills. Communal outdoor space is small and shared, and the property is of average size, best suited to a single person or couple rather than a family.
Overall this flat represents an affordable entry point to the Peacehaven market with genuine conveniences and long lease security. It will particularly appeal to first-time buyers or downsizers who value location, parking and straightforward living, and who are happy to invest modestly in energy improvements over time.
1 bedroom flat for sale in Fairfield, Sutton Avenue, Peacehaven, BN10 7NL, BN10 — £175,000 • 1 bed • 1 bath • 439 ft²
1 bedroom flat for sale in Fairfield, Sutton Avenue, Peacehaven, BN10 7NL, BN10 — £195,000 • 1 bed • 1 bath • 452 ft²
1 bedroom apartment for sale in South Coast Road, Peacehaven, BN10 — £160,000 • 1 bed • 1 bath • 360 ft²
2 bedroom flat for sale in Malines Court, 302 South Coast Road, Peacehaven, BN10 7PL, BN10 — £230,000 • 2 bed • 1 bath • 657 ft²
2 bedroom flat for sale in Lake Drive, Peacehaven, BN10 7QD, BN10 — £180,000 • 2 bed • 1 bath • 461 ft²
1 bedroom ground floor flat for sale in Robin Lane, Peacehaven, East Sussex, BN10 — £175,000 • 1 bed • 1 bath • 463 ft²










































