Move straight in to a turnkey property with detached garage and garden.
No onward chain — ready to move into
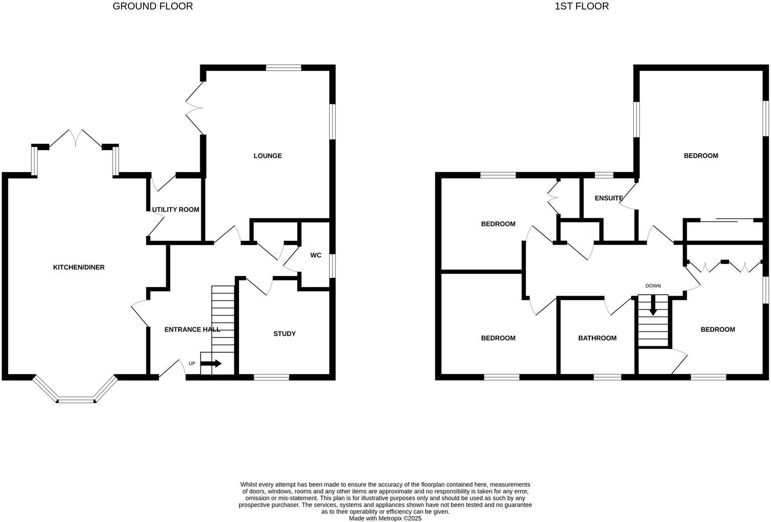
Bright, modern and ready to occupy, this four-bedroom detached house (circa 2019) sits on an average-sized plot in Cringleford. The open-plan kitchen/dining area with glazed bay and the triple-aspect lounge create generous family living and easy entertaining flow. A separate utility, study and en suite to the principal bedroom add everyday convenience and flexibility for home working or family life.
Practical features include driveway parking, a detached single garage, enclosed rear garden with patio, and good connectivity with fast broadband and excellent mobile signal. The property is freehold, mains gas heated with a modern boiler and is offered with no onward chain — genuinely turnkey for a growing household.
Notable considerations: the home falls in Council Tax Band F (expensive) and local crime levels are recorded as high. The immediate area is described as an ageing rural neighbourhood/communal retirement classification, which may affect local demographic mix and long-term resale appeal for some buyers. Overall, the house requires no major works and presents strong family-focused accommodation in an affluent area with good local amenities and schools.
4 bedroom detached house for sale in Woolhouse Way, Cringleford, NR4 — £475,000 • 4 bed • 2 bath • 1711 ft²
4 bedroom detached house for sale in Haldane Drive, Cringleford, NR4 — £500,000 • 4 bed • 2 bath • 1626 ft²
5 bedroom detached house for sale in Haldane Drive, Cringleford, NR4 — £500,000 • 5 bed • 2 bath • 1834 ft²
4 bedroom detached house for sale in Davies Drive, Cringleford, NR4 — £475,000 • 4 bed • 2 bath • 1540 ft²
4 bedroom detached house for sale in Woolhouse Way, Cringleford NR4 — £625,000 • 4 bed • 3 bath • 1766 ft²
4 bedroom detached house for sale in Kingfisher Close, Cringleford, NORWICH, NR4 — £450,000 • 4 bed • 3 bath • 1063 ft²


















































































































