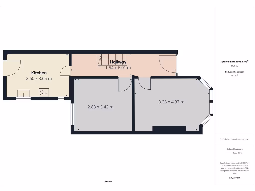
Large kitchen and practical layout steps from schools and local amenities.
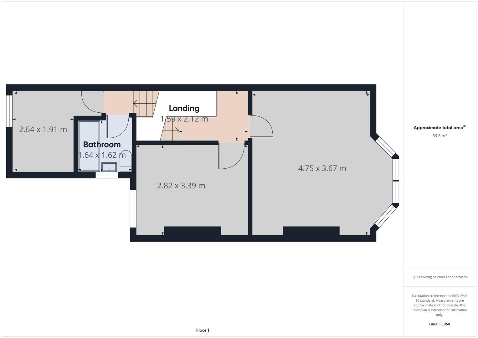
Three bedrooms with two reception rooms for flexible family space
Set on Edinburgh Road in Wallasey, this period three-bedroom bay-fronted home offers a practical family layout and flexible living space. Two reception rooms and a large kitchen create an inviting footprint for everyday family life and entertaining. The property is freehold with gas central heating, double glazing and an average internal size of about 870 sq ft.
The house is presented with older decorative finishes and shows general wear to carpets and flooring; modest refurbishment will modernise living areas and improve energy performance (EPC TBC). External space is limited to a small rear yard rather than a garden, so outdoor living or extension potential is constrained by the compact plot.
Location supports family life: several Good-rated primary and secondary schools are nearby, local amenities and public transport are within easy reach, and broadband and mobile signals are strong. The area sits in a mid-market demand band—suitable for a growing family or a buy-to-let investor prepared to update the property.
Buyers should note the single family bathroom and the basic condition; anticipate cosmetic and possibly efficiency improvements to bring the home up to contemporary standards. Council tax is very cheap, tenure is freehold, and there is no identified flood risk.
3 bedroom end of terrace house for sale in Edinburgh Road, Wallasey, CH45 4LR, CH45 — £154,000 • 3 bed • 1 bath
3 bedroom semi-detached house for sale in Edith Road, Wallasey, CH44 — £130,000 • 3 bed • 1 bath • 811 ft²
3 bedroom terraced house for sale in Alverstone Road, Wallasey, CH44 — £155,000 • 3 bed • 1 bath • 1926 ft²
3 bedroom terraced house for sale in Longview Avenue, Wallasey, CH45 — £149,950 • 3 bed • 1 bath • 947 ft²
4 bedroom terraced house for sale in Leasowe Road, Wallasey, CH45 — £260,000 • 4 bed • 1 bath • 1175 ft²
3 bedroom terraced house for sale in Lichfield Street, Wallasey, CH45 — £219,950 • 3 bed • 1 bath • 757 ft²














































































