SE9 6LX - 4 bed edwardian semi detached in Eltham, SE9 6LX

View on Property Piper

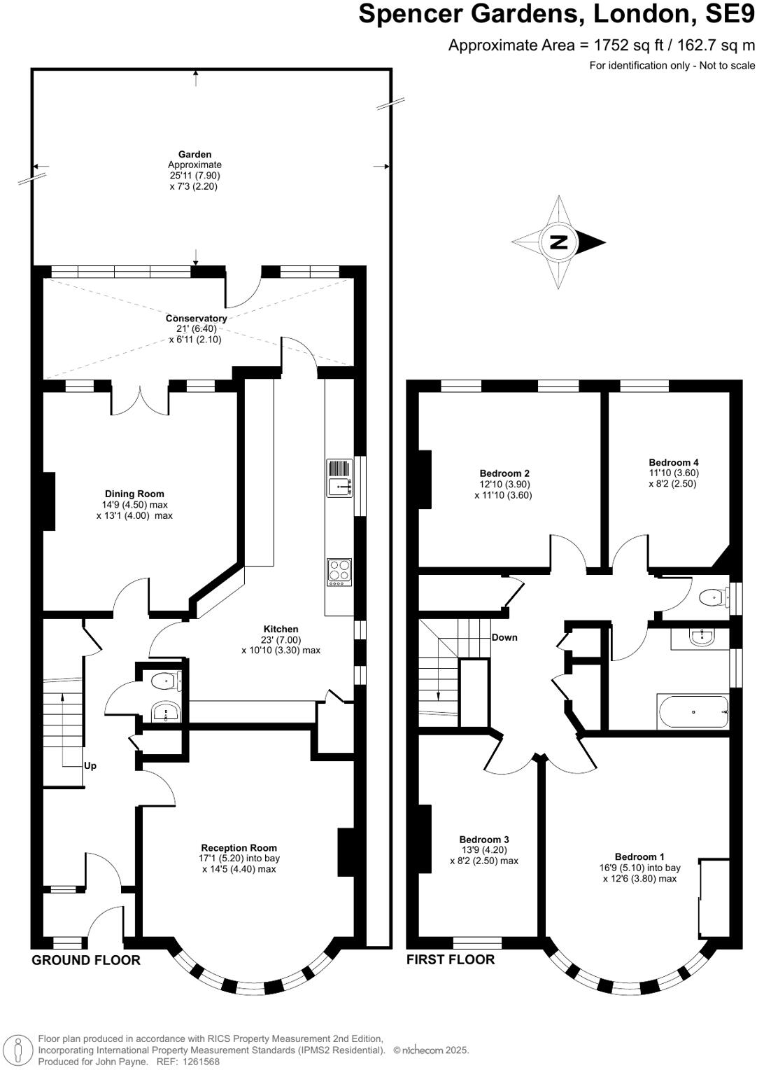
4 bedroom semi-detached house for sale in Spencer Gardens, London, SE9

Summary - Spencer Gardens, London, SE9 SE9 6LX

4 bed 1 bath Semi-Detached

Spacious family home minutes from Eltham station with extension potential.
Four double bedrooms across c.1750 sqft of living space
This substantial four-bedroom Edwardian semi-detached house offers generous living across approximately 1,750 sqft, with high ceilings and period bay windows that give immediate character and space. The home includes two large reception rooms, a reconfigured kitchen, conservatory and a west-facing garden with decking and lawn — great for family outdoor time and afternoon sun.

Practical benefits include rare off-street parking for two cars, side access to the garden, central heating and double glazing. The property sits 0.2 miles from Eltham station with fast direct services into central London, and a wide choice of well-regarded primary and secondary schools within easy reach — a clear convenience for commuting families.

There is scope to enlarge the home further with a potential ground-floor rear or loft extension, subject to the necessary planning permissions. This creates genuine opportunity to add value but will require planning applications and building work.

Be aware of a few material points: the property is in a solid-brick Edwardian build with assumed lack of cavity wall insulation, the official EPC rating is not provided, and council tax is described as expensive. Internally there is one main family bathroom plus a separate WC, which may be limiting for larger households. These factors should be considered alongside the home’s renovation and insulation needs.

Property Details

Brochure Descriptions

Image Descriptions

Floorplan Description

Rooms

Textual Property Features

Target Audience

AI Tags

Detected Visual Features

EPC Details

Nearby Schools

Nearest Bars And Restaurants

,,,,}

Nearest General Shops

,,}

Nearest Grocery shops

,,}

Nearest Supermarkets

,,}

Nearest Religious buildings

,,}

Nearest Medical buildings

,,,}

Nearest Airports

,,}

Nearest Leisure Facilities

,,,,}

Nearest Tourist attractions

,,}

Nearest Train stations

,,,,}

Nearest Bus stations and stops

,,,,}

Nearest Hotels

,,}

Tags

Local Market Stats

AirBnB Data

Similar Properties

Meta

High Res Images

Compatible Images

Low res Images

Thumbnails

Raw Images

High Res Floorplan Images

Compatible Floorplan Images

Low res Floorplan Images

FloorplanImages Thumbnail

Raw Floorplan Images