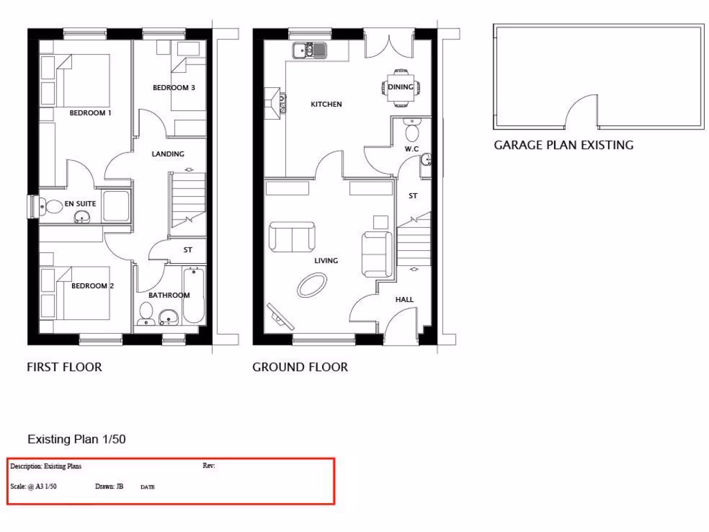
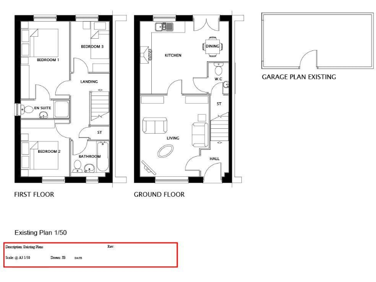
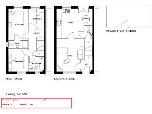
Three-bedroom family home with enclosed garden and garage.
Open countryside views to the rear
Set on a sought-after village street in Great Ouseburn, this neatly presented semi-detached home combines contemporary styling with a peaceful rural outlook. The living spaces are bright and well-proportioned, with an inviting sitting room and an open-plan dining kitchen designed for everyday family life and informal entertaining.
Upstairs the master bedroom includes a smart ensuite, while a second double bedroom and a third room — currently used as a dressing room with fitted storage — provide flexible accommodation. The family bathroom is contemporary and functional. At 872 sq ft the house is an average-sized family home and will suit buyers seeking manageable, well-laid-out space rather than a large footprint.
Outside there is an enclosed garden and terrace that face open countryside, which is a strong lifestyle draw. Parking is practical with a single garage and a paved driveway with space for additional cars. The village offers essential amenities, a good primary school and easy commuter links to larger towns.
Please note the property is heated by an oil-fired boiler and has a moderate council tax band (D). Buyers seeking a larger home or alternative heating fuel should factor these points into their decision. Overall this is a comfortable, contemporary village home with attractive views and low flood risk.
3 bedroom semi-detached house for sale in Great Ouseburn, YO26 9SW, YO26 — £375,000 • 3 bed • 2 bath • 913 ft²
3 bedroom town house for sale in Main Street, Little Ouseburn, YO26 — £269,950 • 3 bed • 2 bath • 594 ft²
3 bedroom cottage for sale in Main Street, Great Ouseburn, YO26 — £375,000 • 3 bed • 1 bath • 1033 ft²
3 bedroom terraced house for sale in Branton Lane, Great Ouseburn, York, North Yorkshire, YO26 — £435,000 • 3 bed • 3 bath • 1404 ft²
5 bedroom detached house for sale in Main Street, Great Ouseburn, York, YO26 — £1,595,000 • 5 bed • 4 bath • 4797 ft²
2 bedroom terraced house for sale in Oak Road, Cowthorpe, Wetherby, LS22 5EY, LS22 — £299,950 • 2 bed • 1 bath • 882 ft²


























































































