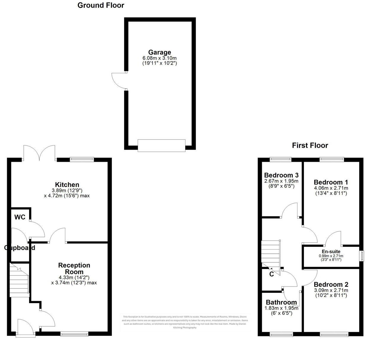
**Standout Features:**
- Charming semi-detached family home
- 3 bedrooms and 2 modern bathrooms
- Contemporary finish with spacious living areas
- Landscaped garden with unobstructed rural views
- Off-street parking and detached garage
- Prime location in affluent North Yorkshire village of Great Ouseburn
- Close to local amenities and transport links
- Chain-free sale potential
Discover tranquility in this charming semi-detached family home nestled in the highly sought-after village of Great Ouseburn. With three generous bedrooms—including one with an en-suite—and two modern bathrooms, this property is ideal for families seeking both space and comfort. It features a bright entrance hall leading to a spacious reception area and a contemporary kitchen equipped with integrated appliances, making it perfect for entertaining.
The lovingly landscaped garden boasts unobstructed rural views, offering a picturesque backdrop for outdoor activities. Situated close to local amenities and vibrant market towns, you’ll enjoy both peaceful village life and convenient access to shopping and dining. Additionally, great schools and commute options to Harrogate, York, and beyond add to the property’s appeal.
While it presents a fabulous living space, potential buyers should note the need for routine maintenance reflective of an average-sized home. The already high EPC rating ensures energy efficiency, making it a desirable investment with future renovation potential. Don’t miss out on this rare opportunity to own a well-appointed home in a prime location; schedule your viewing today!
3 bedroom semi-detached house for sale in Field View, Great Ouseburn, York, YO26 — £385,000 • 3 bed • 2 bath
3 bedroom cottage for sale in Main Street, Great Ouseburn, YO26 — £375,000 • 3 bed • 1 bath • 1033 ft²
3 bedroom semi-detached house for sale in Branton Lane, Great Ouseburn, York, North Yorkshire, YO26 — £350,000 • 3 bed • 1 bath • 970 ft²
5 bedroom end of terrace house for sale in Main Street, Great Ouseburn, YO26 — £495,000 • 5 bed • 3 bath • 1500 ft²
3 bedroom town house for sale in Main Street, Little Ouseburn, YO26 — £269,950 • 3 bed • 2 bath • 594 ft²
4 bedroom detached house for sale in Main Street, Great Ouseburn, YO26 — £720,000 • 4 bed • 2 bath • 1977 ft²














































































