LL34 6UD - 3 bed the beech three bedroom in Dwygyfylchi, LL34 6UD

View on Property Piper

3 bedroom detached house for sale in The Beech Y Bluen Goch, Dwygyfylchi, LL34

Summary - Dinorwic Road, Penmaenmawr, LL34 6PT LL34 6UD

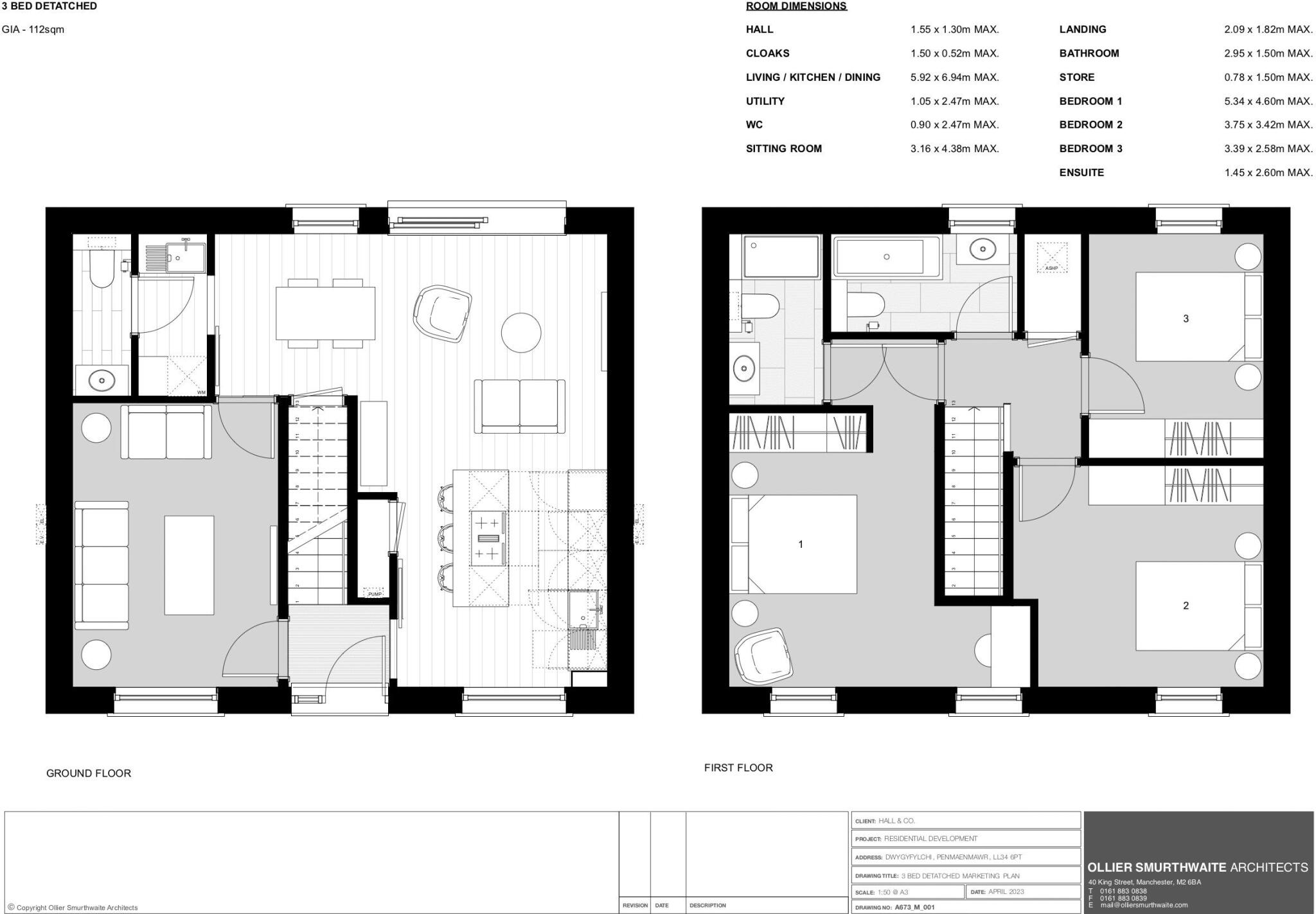
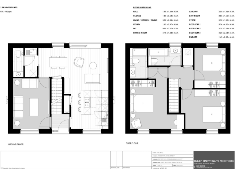
3 bed 2 bath Detached

Contemporary detached family home in a small parkland development near the coast..
- Detached three-bedroom, two-bathroom home on a decent private plot
- High-specification finish with integrated kitchen appliances
- EPC rating B or above; EV charging point included
- Open-plan kitchen/diner plus separate second reception room
- Mains gas boiler and radiators; double glazing throughout
- No flood risk; excellent mobile signal and fast broadband
- Local area recorded as very deprived — consider local services
- Conflicting build data; confirm new-build warranty and construction date
A contemporary three-bedroom detached home finished to a high specification within a small, exclusive collection of 24 properties. The Beech delivers light-filled living with an open-plan ground floor, separate utility/WC and flexible second reception room—ideal for family life or a home office.

Upstairs provides three well-proportioned bedrooms, the principal with en-suite, and a family bathroom with modern fittings. Energy-efficient features include an EPC rating of B or above, integrated kitchen appliances, LED downlights in wet areas and an EV charging point. Mains gas boiler and radiators provide conventional, familiar heating.

Set in a parkland/meadow-style setting on the edge of Dwygyfylchi, the development offers good mobile and fast broadband reception, low local crime and no flood risk. Note the local area is recorded as very deprived, and although the house is described as a new build, data also notes an older construction era on site—buyers should confirm build and warranty details. Viewings available by appointment.

Property Details

Image Descriptions

Floorplan Description

Rooms

Textual Property Features

Target Audience

AI Tags

Detected Visual Features

EPC Details

Nearest Bars And Restaurants

,,,,}

Nearest General Shops

,,}

Nearest Grocery shops

,,}

Nearest Supermarkets

,,}

Nearest Religious buildings

,,}

Nearest Medical buildings

,,,}

Nearest Leisure Facilities

,,,,}

Nearest Tourist attractions

,,}

Nearest Train stations

,,,,}

Nearest Bus stations and stops

,,,,}

Nearest Hotels

,,}

Tags

Local Market Stats

AirBnB Data

Similar Properties

Meta

High Res Images

Compatible Images

Low res Images

Thumbnails

Raw Images

High Res Floorplan Images

Compatible Floorplan Images

Low res Floorplan Images

FloorplanImages Thumbnail

Raw Floorplan Images