CH49 1SW - 3 bedroom semidetached house for sale in Caulfield Drive, G…

View on Property Piper

3 bedroom semi-detached house for sale in Caulfield Drive, Greasby, Wirral, Merseyside, CH49

Summary - 65 CAULFIELD DRIVE GREASBY WIRRAL CH49 1SW

3 bed 2 bath Semi-Detached

Spacious 3-bed with large garden and extension potential in sought-after Greasby.
Large, private rear garden backing onto sports fields
Set on a generous plot in Greasby, this three-bedroom semi-detached home offers a roomy living layout and genuine scope to personalise. The property backs onto sports fields, giving a private outlook from the large rear garden and a strong sense of space for family life and outdoor entertaining.

Internally there are two bathrooms and well-proportioned rooms across approximately 1,314 sq ft, plus a substantial driveway for off-street parking. The house dates from the 1930s–40s, has double glazing installed after 2002, and gas central heating via a boiler and radiators — practical basics already in place.

The main attraction is the extension potential: side extension to create annexe accommodation, a fourth bedroom or larger ground-floor living space. This makes the house appealing to growing families or buyers seeking a renovation project with clear value-add potential.

Important note: the property needs renovation — cosmetic and likely some updating — so budget and time should be allowed for works. Despite this, the site, size and location in a very affluent area with fast broadband and low crime make it a rare opportunity for buyers wanting space, schools nearby and long-term upside.

Property Details

Brochure Descriptions

Image Descriptions

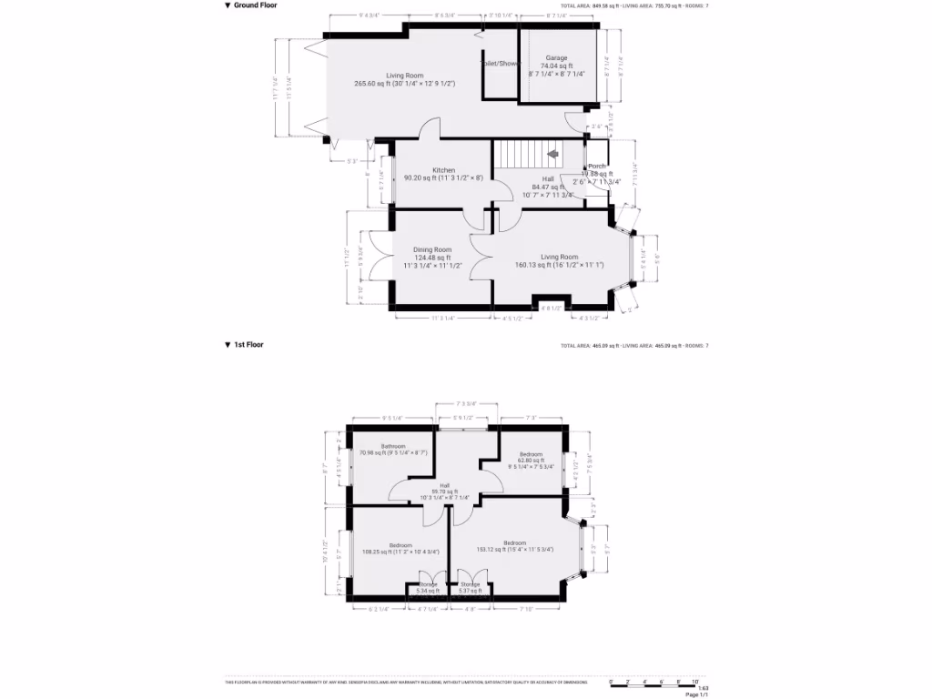
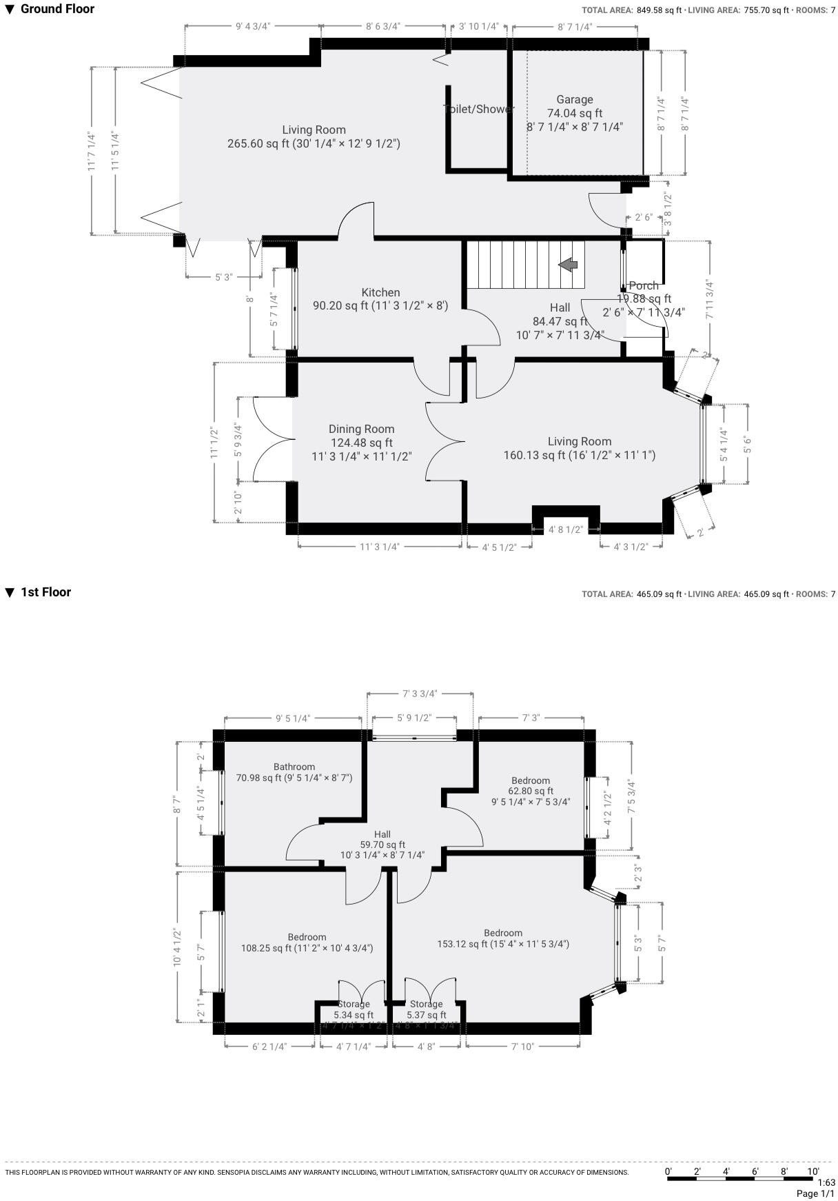
Floorplan Description

Rooms

Textual Property Features

Target Audience

AI Tags

Detected Visual Features

EPC Details

Nearby Schools

Nearest Bars And Restaurants

,,,,}

Nearest General Shops

,,}

Nearest Grocery shops

,,}

Nearest Supermarkets

,,}

Nearest Religious buildings

,,}

Nearest Medical buildings

,,,}

Nearest Airports

}

Nearest Leisure Facilities

,,,,}

Nearest Tourist attractions

,,}

Nearest Train stations

,,,,}

Nearest Bus stations and stops

,,,,}

Nearest Hotels

,,}

Tags

Local Market Stats

Similar Properties

Meta

High Res Images

Compatible Images

Low res Images

Thumbnails

Raw Images

High Res Floorplan Images

Compatible Floorplan Images

Low res Floorplan Images

FloorplanImages Thumbnail

Raw Floorplan Images