**Standout Features:**
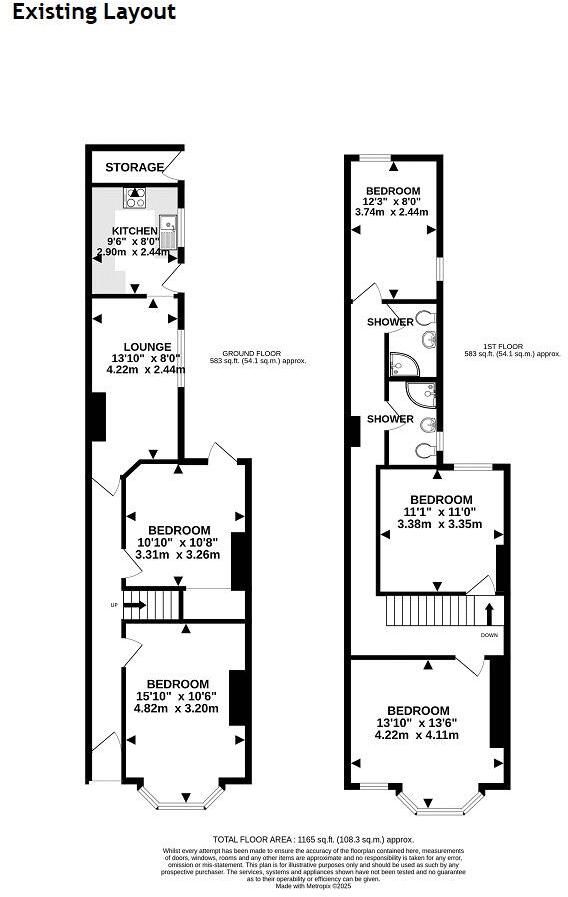
- **5 Double Bedrooms**: Ideal for student accommodation or a large family.
- **2 Shower Rooms**: Functional setup for multiple occupants.
- **Gross Income**: £21,840, offering a gross yield of 9.7% per annum.
- **Prime Location**: Sought-after West End area, close to the University of Lincoln and city centre.
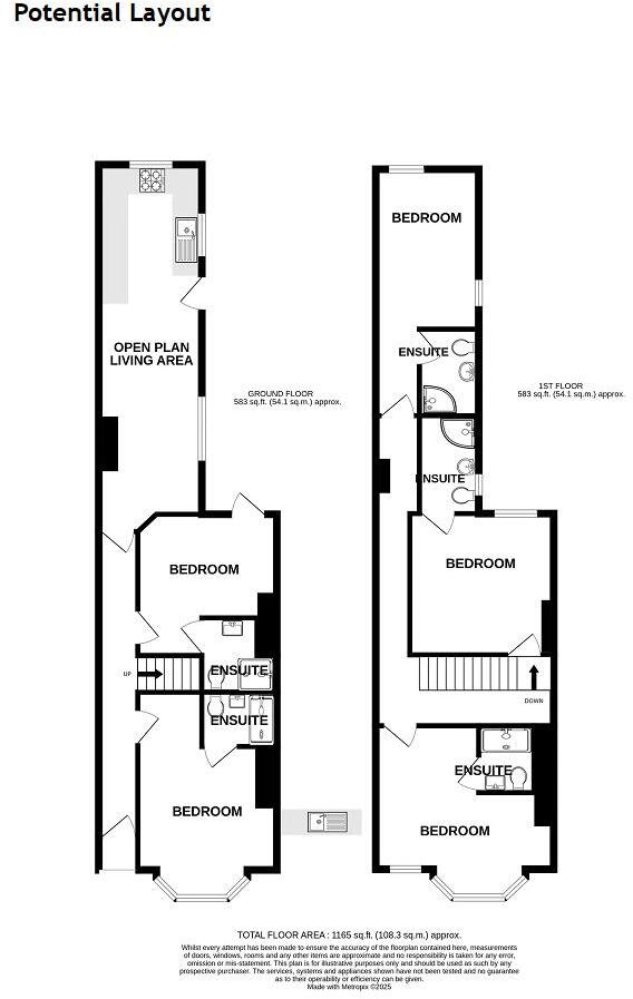
- **Renovation Potential**: Opportunity to remodel and increase revenue.
- **Garden with Brick Built Outbuilding**: Space for outdoor activities or storage.
- **Low Crime Area**: Offers security and peace of mind.
**Summary:**  
Discover this classic Victorian-style terraced house, perfectly positioned in Lincoln's vibrant student hub. The property boasts five spacious double bedrooms and two shower rooms, catering to both student living and family needs. With a current gross income of £21,840 and a solid yield of 9.7%, this house of multiple occupancy presents an excellent investment opportunity. 
The charming exterior features bay windows and a traditional brick facade, while inside, the communal living areas are functional and well-lit. Additionally, the enclosed garden provides a low-maintenance outdoor space. With easy access to local amenities, such as schools, pubs, and cafes, this property is not only a sound investment but also a comfortable residence. While some modernization may be desired, the potential for revenue growth and customization is substantial. Don’t miss your chance to invest in a property that combines historical charm with modern-day living in an enviable location. Act fast – opportunities like this are rare!
 6 bedroom terraced house for sale in West Parade , LN1 — £343,000 • 6 bed • 6 bath • 1604 ft²
 6 bedroom terraced house for sale in West Parade , LN1 — £343,000 • 6 bed • 6 bath • 1604 ft² 5 bedroom house of multiple occupation for sale in 9 Hereward Street, Lincoln, Lincolnshire, LN1 — £260,000 • 5 bed • 1 bath • 1119 ft²
 5 bedroom house of multiple occupation for sale in 9 Hereward Street, Lincoln, Lincolnshire, LN1 — £260,000 • 5 bed • 1 bath • 1119 ft² 3 bedroom terraced house for sale in West Parade, Lincoln, LN1 — £175,000 • 3 bed • 1 bath • 900 ft²
 3 bedroom terraced house for sale in West Parade, Lincoln, LN1 — £175,000 • 3 bed • 1 bath • 900 ft² 6 bedroom semi-detached house for sale in West Parade, Lincoln, Lincolnshire, LN1 — £325,000 • 6 bed • 2 bath • 1268 ft²
 6 bedroom semi-detached house for sale in West Parade, Lincoln, Lincolnshire, LN1 — £325,000 • 6 bed • 2 bath • 1268 ft² 6 bedroom terraced house for sale in Hereward Street, Uphill, Lincoln, LN1 — £290,000 • 6 bed • 3 bath • 1202 ft²
 6 bedroom terraced house for sale in Hereward Street, Uphill, Lincoln, LN1 — £290,000 • 6 bed • 3 bath • 1202 ft² 3 bedroom terraced house for sale in Whitehall Terrace, Lincoln, LN1 — £220,000 • 3 bed • 1 bath • 874 ft²
 3 bedroom terraced house for sale in Whitehall Terrace, Lincoln, LN1 — £220,000 • 3 bed • 1 bath • 874 ft²






































