LN1 1JX - 3 bed west parade terrace in West Parade, LN1 1JX

View on Property Piper

3 bedroom terraced house for sale in West Parade, Lincoln, LN1

Summary - 62, West Parade,LINCOLN,LN1 1JX LN1 1JX

3 bed 1 bath Terraced

Turnkey student-income near university and city amenities.
HMO let until 26 July 2025 — tenancy continues on sale
Gross rental income £17,940 pa; approx. 10.25% gross yield
City centre position near university, shops and transport
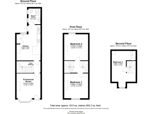
Three lettable bedrooms across three storeys; compact room sizes
Communal living room, modern kitchen and shower room
Low-maintenance rear garden — small, limited outdoor space
EPC rating D — energy improvements could reduce bills
Sold freehold; council tax band A (very low)
Positioned in Lincoln’s city centre, this three-bedroom Victorian terrace is configured and licensed as a House in Multiple Occupation (HMO) and is let until 26 July 2025. The current tenancy produces £354 per week (including bills) — approximately £17,940 pa — giving a gross yield around 10.25% at the asking price. Its proximity to the university, shops and transport links secures strong tenant demand, particularly from students and young professionals.

The house retains period character externally — bay and dormer windows, brick frontage and a slate roof — while offering practical, modern interiors: a communal room, a well-equipped kitchen, and a fully tiled shower room. Bedrooms are compact but functional, spread over three storeys, and the property benefits from double glazing, gas radiators and an EPC rating of D. Externally there’s a low-maintenance rear garden with gravel and a patio.

Important considerations for buyers: the property is sold with sitting tenants under an HMO-style arrangement, so vacant possession will not be immediate. The layout and compact room sizes suit student or sharer occupation rather than family use. EPC D means some scope for energy upgrades to improve running costs and long-term attractiveness to tenants.

This is a straightforward, income-generating opportunity in a cosmopolitan student neighbourhood. It will suit an investor seeking immediate rental income and low-management external space; buyers wanting to occupy themselves or families seeking larger rooms should note the current configuration and tenancy status.

Property Details

Brochure Descriptions

Image Descriptions

Floorplan Description

Rooms

Textual Property Features

Target Audience

AI Tags

Detected Visual Features

Nearby Schools

Nearest Bars And Restaurants

,,,,}

Nearest General Shops

,,}

Nearest Grocery shops

,,}

Nearest Supermarkets

,,}

Nearest Religious buildings

,,}

Nearest Medical buildings

,,,}

Nearest Leisure Facilities

,,,,}

Nearest Tourist attractions

,,}

Nearest Train stations

,,,,}

Nearest Bus stations and stops

,,,,}

Nearest Hotels

,,}

Tags

Local Market Stats

AirBnB Data

Similar Properties

Meta

High Res Images

Compatible Images

Low res Images

Thumbnails

Raw Images

High Res Floorplan Images

Compatible Floorplan Images

Low res Floorplan Images

FloorplanImages Thumbnail

Raw Floorplan Images