Three double bedrooms, large reception and generous garden on a sought-after tree-lined road..
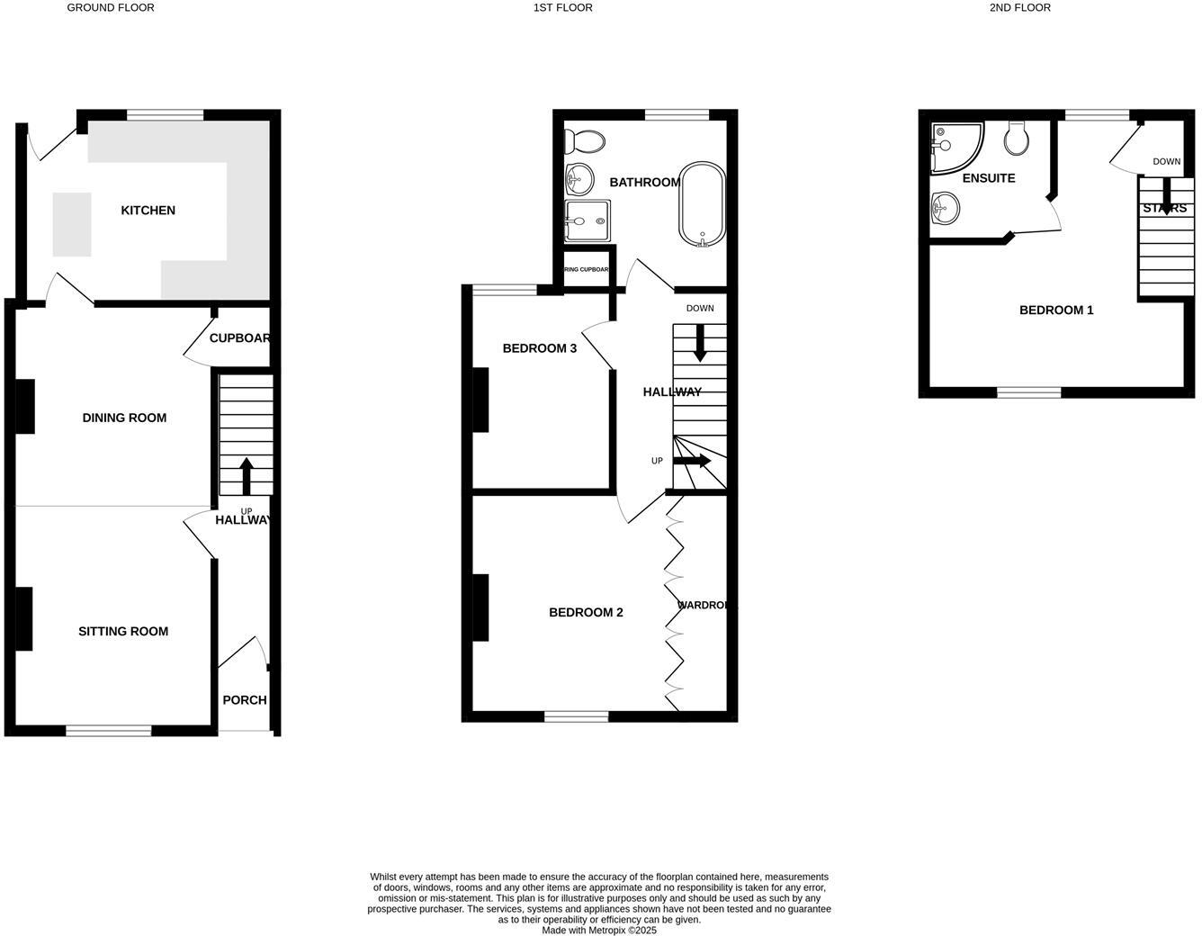
Three double bedrooms with principal en-suite
Large 7.6m double reception with bay window and log burner
Recently fully renovated — high decorative standard throughout
Generous rear garden with patio, lawn and substantial shed
On-street residents' parking; no private driveway
Built c.1900–1929; cavity walls assumed uninsulated
Many sash-style windows double glazed pre-2002
Gas central heating with modern boiler; low flood risk
A sympathetically updated Victorian mid-terrace, 58 St Marks Road blends period character with modern fixtures across three floors. The extended layout includes a huge 7.6m double reception, a well-appointed shaker-style kitchen/diner and a principal bedroom with en-suite — all recently refurbished to a high standard. Double-glazed sash-style windows, a log burner and extensive built-in storage accent the property's original features.
The rear garden is larger than many city terraces, neatly landscaped with a paved patio, lawn and substantial shed. On-street residents' parking is plentiful but there is no private driveway. The house is gas‑heated with a modern boiler and benefits from good mobile and broadband connectivity, making it suitable for remote working and family life.
Important practical notes: the property dates from c.1900–1929 and has cavity walls assumed to be without added insulation; some windows were double glazed before 2002. Those factors may affect future energy upgrades. Overall, the recent full refurbishment means limited immediate cosmetic work is required, making the home ready to occupy or let with strong rental appeal in this affluent, low-crime area close to schools and city-centre amenities.
This is a solid choice for families seeking period character with contemporary conveniences, or investors after a well-presented terrace with good tenant demand potential.
3 bedroom end of terrace house for sale in St. Marks Road, Salisbury, Wiltshire, SP1 — £499,950 • 3 bed • 1 bath • 1094 ft²
3 bedroom end of terrace house for sale in St. Marks Road, Salisbury, SP1 — £470,000 • 3 bed • 2 bath • 1594 ft²
3 bedroom end of terrace house for sale in St. Marks Road, Salisbury, Wiltshire, SP1 — £449,950 • 3 bed • 1 bath • 1101 ft²
3 bedroom terraced house for sale in St. Marks Road, Salisbury, SP1 — £295,000 • 3 bed • 1 bath • 924 ft²
3 bedroom town house for sale in Harnham Road, Salisbury, SP2 — £385,000 • 3 bed • 1 bath • 894 ft²
3 bedroom town house for sale in St. Marks Road, Salisbury, SP1 — £360,000 • 3 bed • 1 bath • 1142 ft²


























































