Spacious three-bedroom period house with garden and fast broadband.
Victorian end-terrace with period bay windows and high ceilings
Open-plan kitchen/diner plus garden room leading to rear garden
Three double bedrooms across two upper floors; principal bedroom large
Lower-ground floor provides additional living/utility space
Ultrafast broadband (up to 1800 Mbps) and excellent EE mobile signal
Residents’ and off-street parking within city ring road
EPC Band D; cavity walls assumed uninsulated — thermal upgrades advised
Single family bathroom only; potential for modernisation
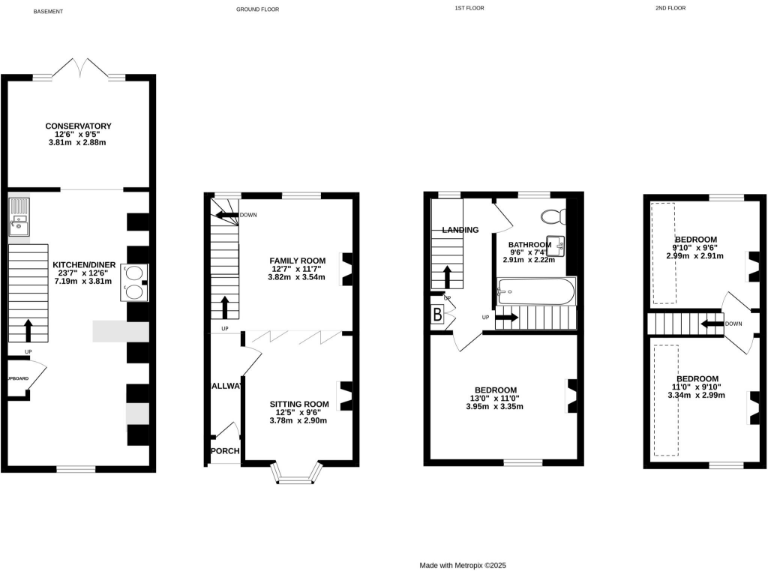
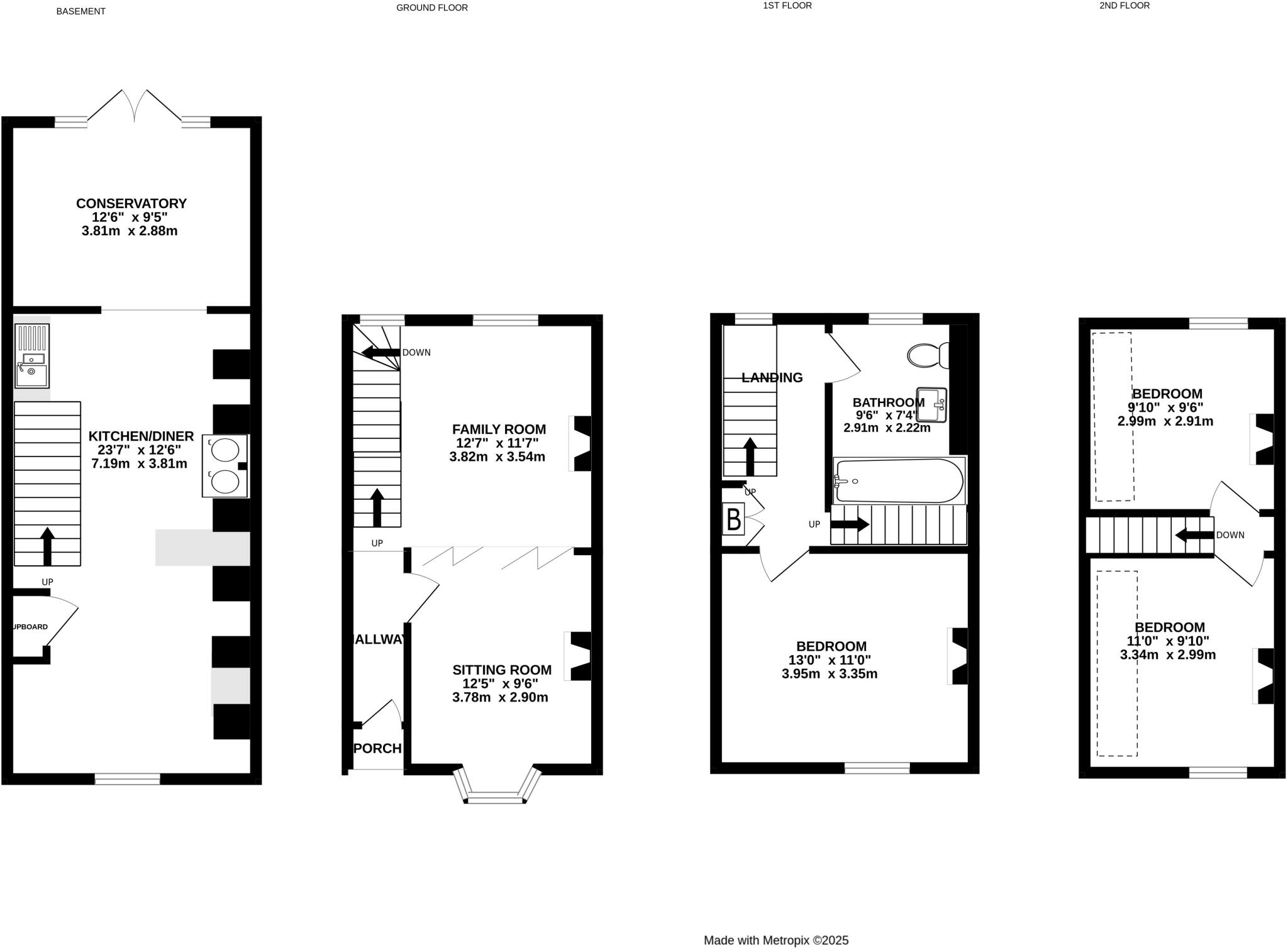
Set over four floors, this well-presented Victorian end-terrace blends period character with contemporary living. High ceilings, sash bay windows and decorative brickwork give the house strong kerb appeal, while an open-plan kitchen/diner and conservatory create a bright family hub that opens directly to a decent rear garden. The property benefits from gas central heating, double glazing and ultrafast broadband — practical strengths for modern family life or home working.
Accommodation includes a generous principal bedroom, two further double bedrooms on the top floor, a family bathroom and versatile living spaces on the ground floor. The lower-ground floor contains the large kitchen/dining area with a garden room, adding flexible space for dining, play or study. Residents’ parking and off-street parking provide straightforward parking options inside the city ring road.
Buyers should note some practical points: the house dates from c.1900–1929 and cavity walls are present with assumed no added insulation, so thermal upgrades could improve comfort and running costs. The property currently has a single family bathroom and sits at EPC band D. Mobile coverage is excellent with EE but may be limited with some other providers inside; there is no flood risk.
This home will suit families seeking a leafy, central city location near Wyndham Park and strong local schools, or purchasers wanting a period house with room to personalise. The layout and decent plot size offer scope for targeted improvements (insulation, energy-efficiency upgrades) that would enhance long-term value and comfort.
4 bedroom town house for sale in St. Marks Road, Salisbury, SP1 — £835,000 • 4 bed • 2 bath • 2000 ft²
3 bedroom town house for sale in St. Marks Road, Salisbury, SP1 — £425,000 • 3 bed • 2 bath • 1090 ft²
3 bedroom end of terrace house for sale in St. Marks Road, Salisbury, Wiltshire, SP1 — £449,950 • 3 bed • 1 bath • 1101 ft²
3 bedroom terraced house for sale in St. Marks Road, Salisbury, SP1 — £295,000 • 3 bed • 1 bath • 924 ft²
3 bedroom terraced house for sale in Harnham Road, Salisbury, SP2 — £390,000 • 3 bed • 1 bath • 1248 ft²
3 bedroom terraced house for sale in Campbell Road, Salisbury, SP1 — £385,000 • 3 bed • 1 bath






























































