CH65 6SR - 3 bed corner plot threebed in Ellesmere Port And Neston, CH…

View on Property Piper

3 bedroom semi-detached house for sale in Kinnerley Road, Whitby, CH65

Summary - 23 Kinnerley Road,Whitby,ELLESMERE PORT,CH65 6SR CH65 6SR

3 bed 1 bath Semi-Detached

Traditional 1930s semi with garage, driveway and garden — ideal for families or first-time buyers..
Corner plot with front, side and rear garden
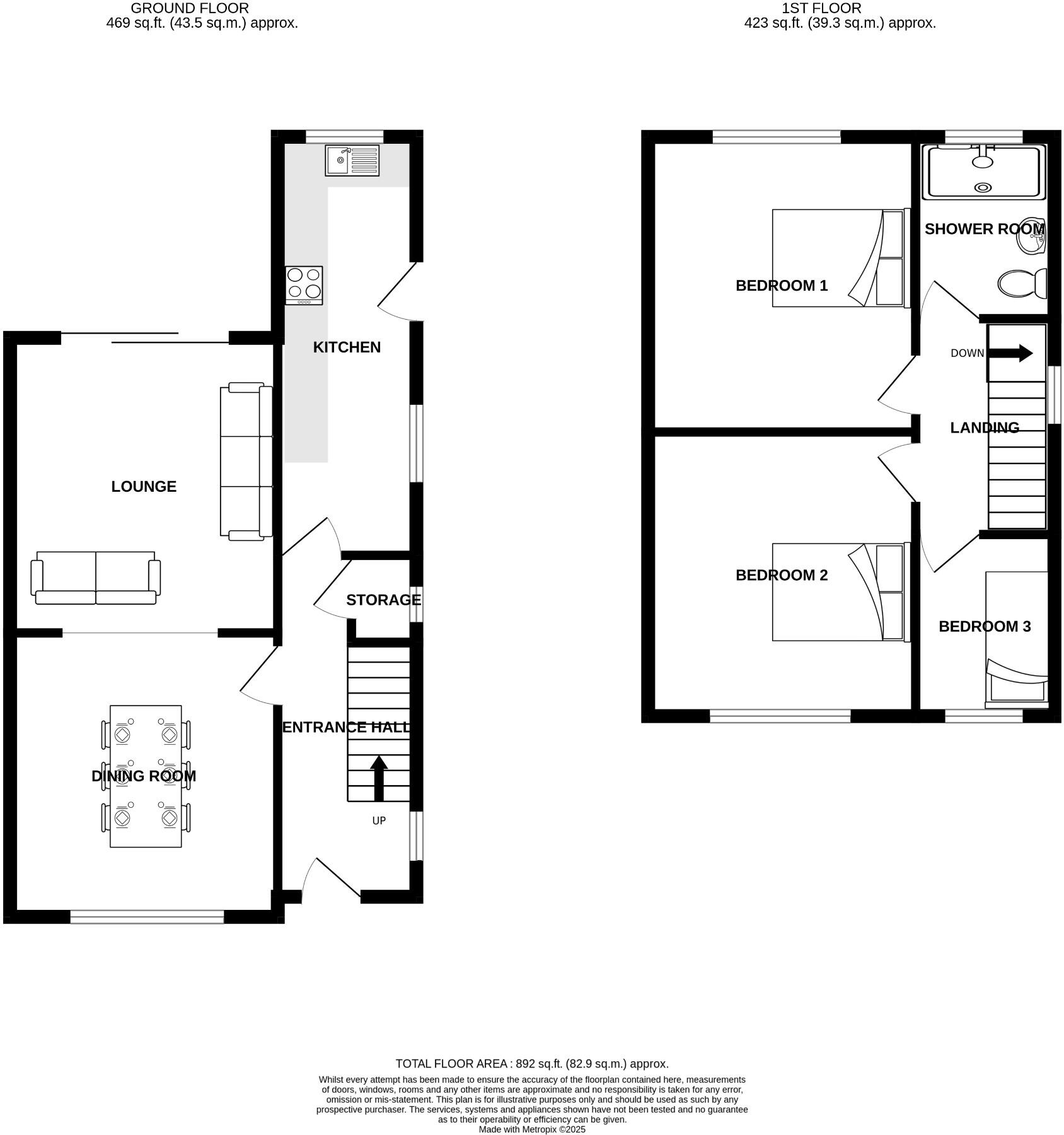
Set on a corner plot in a quiet Whitby cul-de-sac, this traditional 1930s semi-detached home offers practical family living across two storeys. The layout includes reception lounge and dining room, a long contemporary kitchen, three bedrooms and a modern shower room — a straightforward home for growing households or first-time buyers wanting space and garden area.

Stand-out features include a detached garage and driveway, generous corner gardens (front, side and rear) and UPVC double glazing throughout for lower running costs. Rooms are a comfortable average size; the kitchen is notably long and useful for family dining or flexible storage. Broadband and mobile coverage are strong, and local schools rated Good or Outstanding sit close by.

Practical notes: the property has a single shower room, and the third bedroom is small — better suited as a nursery, home office or study. The listing states gas, electrical and central heating items have not been tested; buyers should arrange their own checks before commitment. Overall, this freehold house presents good potential to improve value with minor updating and landscaping to the garden and garage.

Property Details

Image Descriptions

Floorplan Description

Rooms

Textual Property Features

Target Audience

AI Tags

Detected Visual Features

Nearby Schools

Nearest Bars And Restaurants

,,,,}

Nearest General Shops

,,}

Nearest Grocery shops

,,}

Nearest Supermarkets

,,}

Nearest Religious buildings

,,}

Nearest Medical buildings

,,,}

Nearest Airports

}

Nearest Leisure Facilities

,,,,}

Nearest Tourist attractions

,,}

Nearest Train stations

,,,,}

Nearest Bus stations and stops

,,,,}

Nearest Hotels

,,}

Tags

Local Market Stats

Similar Properties

Meta

High Res Images

Compatible Images

Low res Images

Thumbnails

Raw Images

High Res Floorplan Images

Compatible Floorplan Images

Low res Floorplan Images

FloorplanImages Thumbnail

Raw Floorplan Images