Modern family home with parking, garden and no onward chain — ready to adapt to your needs.
Four good-sized bedrooms across three floors, including large top-floor room
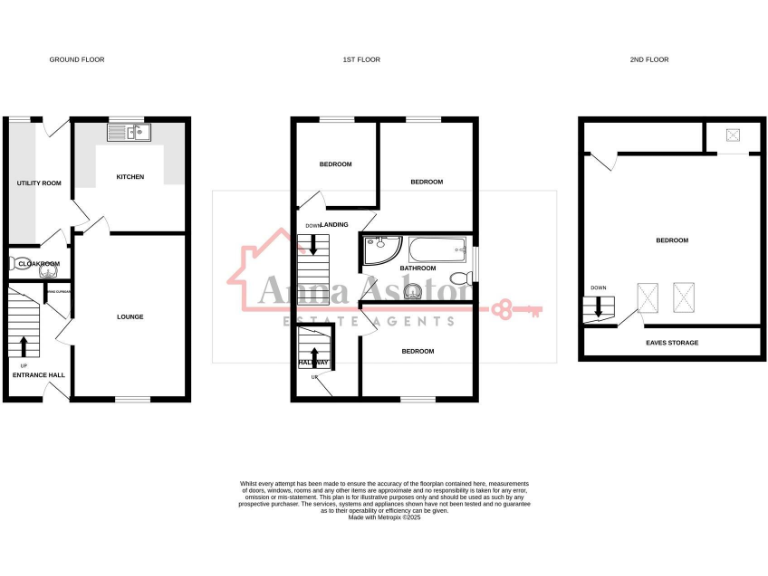
Set on a quiet side road in Cwmgors, this modern four-bedroom semi-detached house is arranged over three floors and ready for family living. The ground floor layout includes a comfortable lounge, sizeable kitchen, utility room and cloakroom; a large top-floor bedroom adds flexible space for a playroom, master suite or home office.
Practical features include gas central heating, recent uPVC double glazing, an EPC rating of C78 and a side driveway with parking for two cars. The enclosed rear garden has patio, decking, lawn and an external outbuilding with power and light — useful for hobbies or storage.
Notable considerations: there is a single family bathroom to serve four bedrooms and the wider area is recorded as very deprived, which may affect resale appeal. No onward chain and affordable council tax (Band C) make the property straightforward to acquire, and fast broadband plus excellent mobile signal suit home working or family connectivity.
Overall this house will suit growing families or buyers looking for good internal space, parking and outdoor areas with potential to adapt the large second-floor room or outbuilding to better match needs. Buyers seeking a turnkey luxury finish should allow for some updating and to factor the single bathroom into household routines.
4 bedroom end of terrace house for sale in Heol Y Gors, Cwmgors, AMMANFORD, Dyfed, SA18 — £190,000 • 4 bed • 2 bath • 1262 ft²
4 bedroom semi-detached house for sale in Cwmgarw Road Upper Brynamman, Ammanford, SA18 — £170,000 • 4 bed • 1 bath • 1086 ft²
4 bedroom terraced house for sale in Heol Y Gors, Cwmgors, Ammanford, SA18 — £220,000 • 4 bed • 2 bath • 1260 ft²
3 bedroom end of terrace house for sale in Heol Y Gors, Cwmgors, Ammanford, SA18 — £189,950 • 3 bed • 2 bath • 1217 ft²
4 bedroom detached house for sale in Clos Yr Afon, AMMANFORD, SA18 — £235,000 • 4 bed • 2 bath • 1238 ft²
4 bedroom detached house for sale in New Road, Gwaun Cae Gurwen, Ammanford, SA18 — £310,000 • 4 bed • 3 bath • 837 ft²






































































