BS3 2JN - 3 bedroom semidetached house for sale in Rownham Close, Bri…

View on Property Piper

3 bedroom semi-detached house for sale in Rownham Close, Bristol, BS3

Summary - Rownham Close, Bristol, BS3 BS3 2JN

3 bed 1 bath Semi-Detached

Large garden, planning permission granted — ideal for growing families wanting scope to extend..
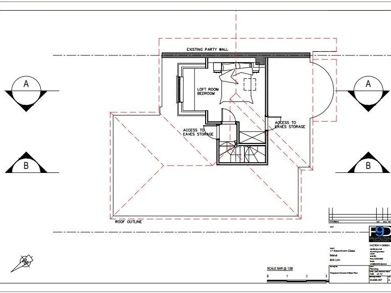
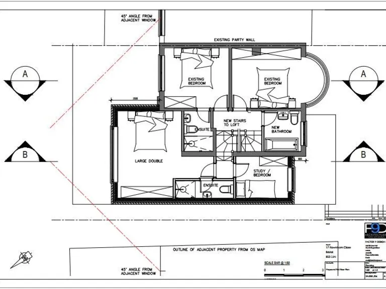
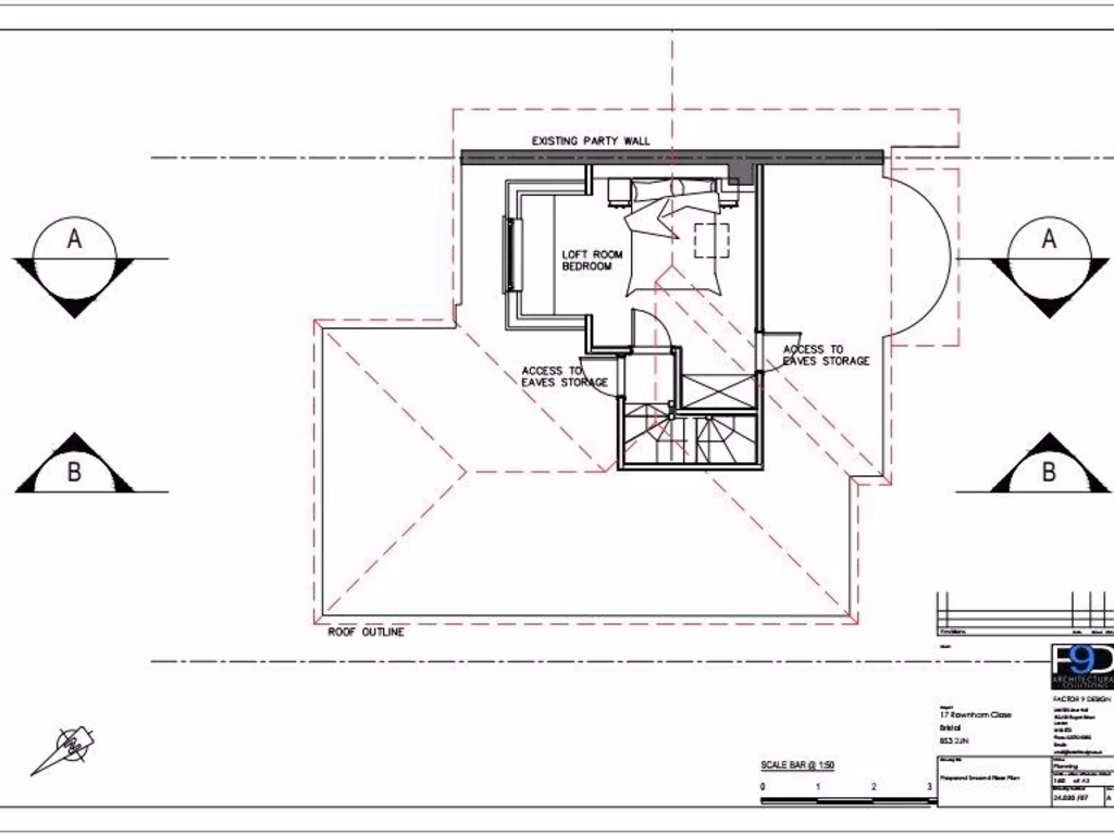
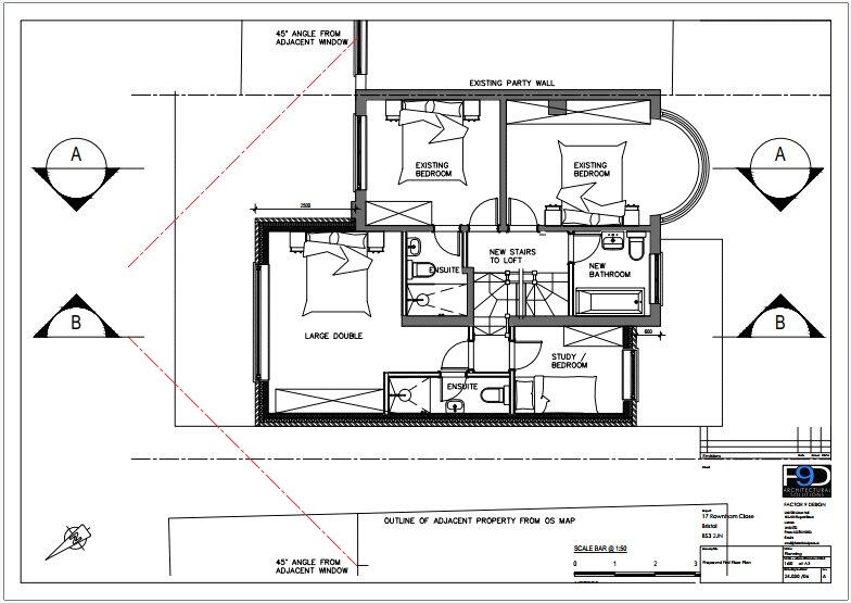
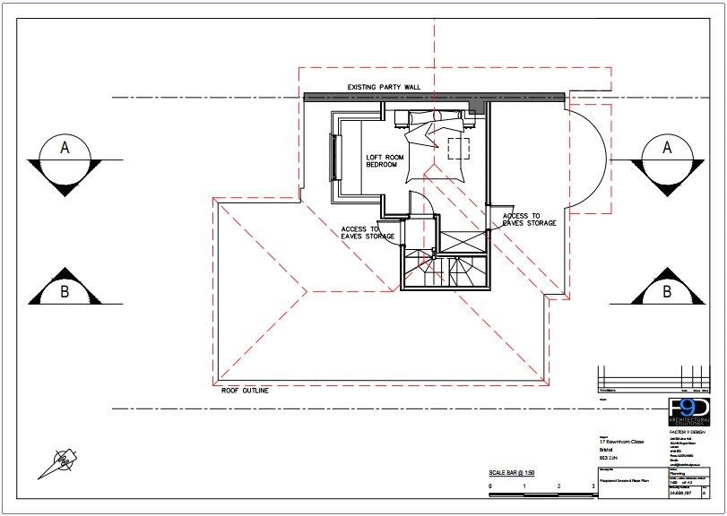
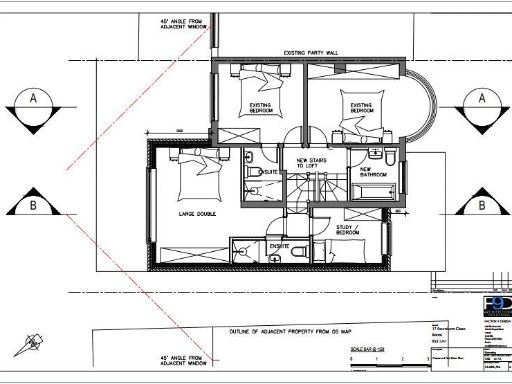
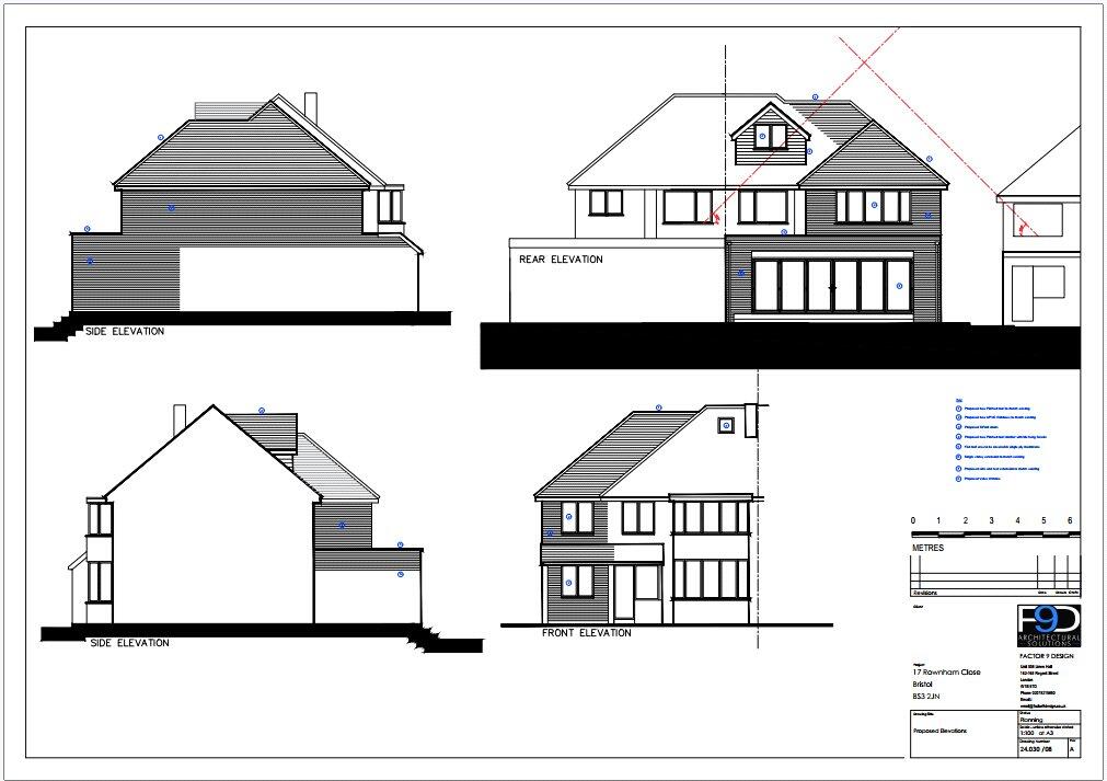
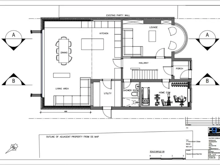
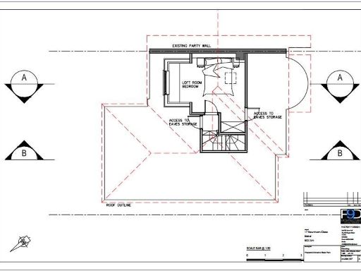
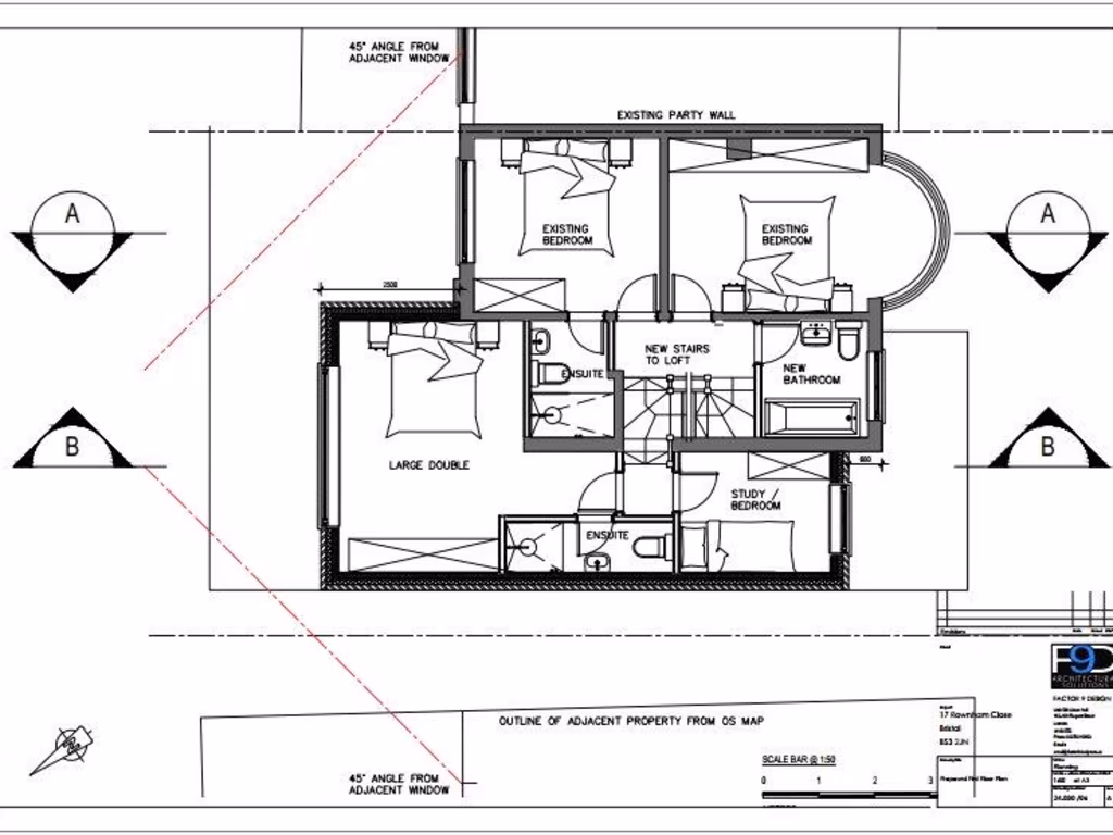
- Full planning permission granted (24/02878/H) for major extension and loft conversion
- Large rear garden with pond and landscaped, rustic features
- Three bedrooms currently; potential to create two additional bedrooms
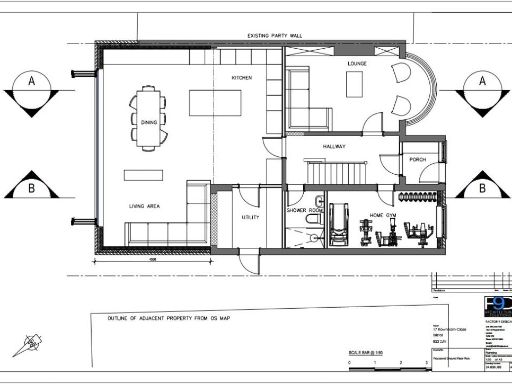
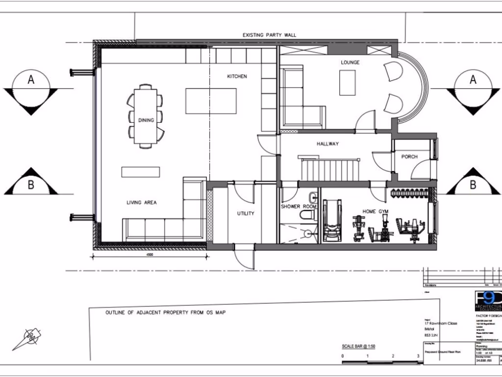
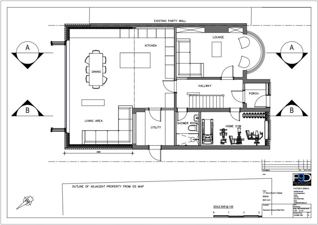
- Converted garage to utility and WC; driveway parking retained
- Single family bathroom only; separate WC on first floor
- Solid brick walls likely without cavity insulation; EPC D
- Property in a coal mining area; specialist survey recommended
- Local crime levels high; area shows pockets of deprivation
This spacious three-bedroom semi offers generous living space, large gardens and clear scope to create a much larger family home. Full planning permission (24/02878/H) is granted for a substantial wrap‑around extension and loft conversion to add two bedrooms, a home gym/office and a large open-plan kitchen/diner — a major convenience for buyers seeking immediate development potential.

Ground-floor accommodation includes a bay-fronted living room, separate reception room(s), kitchen and a large conservatory overlooking a landscaped rear garden with established planting and a fish pond. The garage has been converted to a utility and WC, adding everyday practicality; driveway parking remains available. Fibre-to-the-premises broadband and excellent mobile signal suit home working and streaming needs.

There are important practical considerations: the house has only one main bathroom and a separate WC, the walls are original solid brick (likely without cavity insulation) and energy performance is modest (EPC rating D). The local area records higher crime levels and features pockets of deprivation — factors to check for personal safety and insurance costs. The property lies within a coal mining area; specialist checks and a full survey are advised.

For a family wanting space, outdoor privacy and the option to extend, this property represents a high-potential buy. The planning permission reduces the usual uncertainty of major works, but buyers should budget for building works, insulation upgrades and possible remedial works revealed by a survey.

Property Details

Image Descriptions

Floorplan Description

Rooms

Textual Property Features

Target Audience

AI Tags

Detected Visual Features

EPC Details

Nearby Schools

Nearest Bars And Restaurants

,,,,}

Nearest General Shops

,,}

Nearest Grocery shops

,,}

Nearest Supermarkets

,,}

Nearest Religious buildings

,,}

Nearest Medical buildings

,,,}

Nearest Airports

}

Nearest Leisure Facilities

,,,,}

Nearest Tourist attractions

,,}

Nearest Train stations

,,,,}

Nearest Bus stations and stops

,,,,}

Nearest Hotels

,,}

Tags

Local Market Stats

AirBnB Data

Similar Properties

Meta

High Res Images

Compatible Images

Low res Images

Thumbnails

Raw Images

High Res Floorplan Images

Compatible Floorplan Images

Low res Floorplan Images

FloorplanImages Thumbnail

Raw Floorplan Images