Affordable, low-maintenance two-bed in a prosperous village — ideal first home or rental.
- Compact two-bedroom terraced home, approx. 418 sq ft
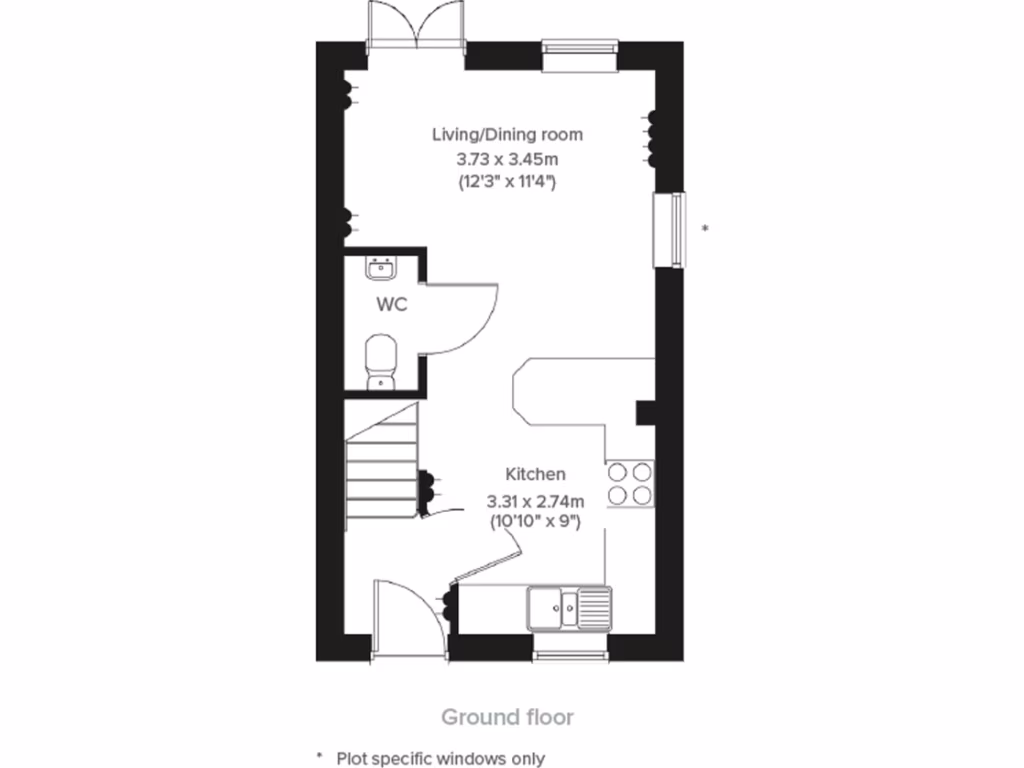
- Open-plan living/dining with French doors to garden
- Kitchen to front; useful downstairs WC indicated in layout
- Modern family bathroom and built-in storage in bedroom two
- Small plot and overall internal size; limited living space
- Very slow broadband locally; excellent mobile signal
- Off-street parking/driveway and no flood risk
- Located in very affluent village with good nearby schools
A compact, low-maintenance two-bedroom terraced home ideal for first-time buyers seeking an affordable entry into a prosperous village setting. The ground floor offers an open-plan living and dining area with French doors to a small garden, while the kitchen at the front keeps cooking and social space conveniently separated. Upstairs are two bedrooms and a modern family bathroom; bedroom two benefits from built-in storage.
The property sits in a very affluent, rural community with good local schools and excellent mobile signal. Off-street parking on a driveway and a private garden make outdoor and car access straightforward — useful extras for everyday life in a village location. Flood risk is nil and the home’s Neo-Vernacular style blends modern fixtures with traditional brick appeal.
Important practical points: the overall internal size is small (around 418 sq ft) and the plot is compact, so space-conscious living is required. Broadband speeds are very slow locally, which may affect home working; mobile signal is excellent. Tenure information is recorded as Freehold in the additional details. This home suits a buyer prioritising location, easy living and low upkeep over generous floor area — or an investor seeking a straightforward rental in a desirable rural market.
2 bedroom end of terrace house for sale in Epsom Avenue,
Towcester,
Northamptonshire,
NN12 7LD, NN12 — £279,950 • 2 bed • 1 bath • 418 ft²
2 bedroom terraced house for sale in Epsom Avenue,
Towcester,
Northamptonshire,
NN12 7LD, NN12 — £269,950 • 2 bed • 1 bath • 840 ft²
2 bedroom end of terrace house for sale in Epsom Avenue,
Towcester,
Northamptonshire,
NN12 7LD, NN12 — £284,950 • 2 bed • 1 bath • 419 ft²
2 bedroom terraced house for sale in Epsom Avenue,
Towcester,
Northamptonshire,
NN12 7LD, NN12 — £269,950 • 2 bed • 1 bath • 418 ft²
2 bedroom terraced house for sale in Epsom Avenue,
Towcester,
Northamptonshire,
NN12 7LD, NN12 — £274,950 • 2 bed • 1 bath • 435 ft²
2 bedroom terraced house for sale in Epsom Avenue,
Towcester,
Northamptonshire,
NN12 7LD, NN12 — £279,950 • 2 bed • 1 bath • 435 ft²






































































































































