Design and build a bespoke family home in a sought-after Mendip village.
Serviced freehold plot approx 440m² for detached 3–4 bed house
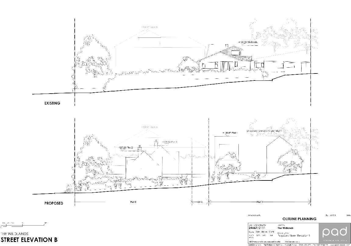
Outline planning granted only — full planning still required
Utilities connected at plot boundary for straightforward hookup
Located in Mendip Hills AONB; scenic countryside setting
Village amenities and good local schools within walking distance
Very low crime, fast broadband, no flood risk recorded
Buyer responsible for design, consenting and construction costs
Planning flexibility — no restriction on architect or builder
Plot 3 offers a serviced, freehold building plot of approximately 440m² with outline planning permission for a detached 3–4 bedroom house. Utilities are available at the plot boundary and there is no restriction on the choice of architect or builder, giving you full design freedom to create a bespoke family home in a valued village setting.
Located within the Mendip Hills AONB at East Harptree, this plot benefits from a very low-crime, very affluent area and strong local community amenities: a village shop, pub, primary school and walking routes are all nearby. Good road links place Bristol, Bath and Wells within convenient driving distance, while broadband speeds are fast and flood risk is recorded as none.
Buyers should note planning is outline only: you will need to submit and gain full reserved matters / full planning approval before construction. The plot is sizeable and well serviced, but building a bespoke home requires budget for design fees, detailed planning submissions and construction — projected completed values have been suggested in marketing material but are not guaranteed.
This plot suits a family or purchaser seeking a personalised new build in a peaceful countryside location. If you want control over design and trades, and are prepared to manage the planning and build process, this is a rare opportunity to create a contemporary home in a desirable Somerset village.
Plot for sale in Plot 2, The Wildlands, Church Lane, BS40 — £350,000 • 4 bed • 4 bath • 4273 ft²
Plot for sale in Charlton Road, Holcombe, Radstock, BA3 — £275,000 • 4 bed • 3 bath • 3229 ft²
Land for sale in Land At Old Gore Lane, Emborough, Radstock,, BA3 — £350,000 • 1 bed • 1 bath
Plot for sale in ***a Selection Of 2 Self-build Building Plots With Implemented Planning Permission In Place***, BA3 — £125,000 • 1 bed • 1 bath
Plot for sale in The Old Dairy, Chelynch, BA4 — £700,000 • 1 bed • 1 bath • 4000 ft²
Land for sale in The Depot, Bailiffs' Wall, Axbridge, Somerset, BS26 — £475,000 • 1 bed • 1 bath






















