**Standout Features:**
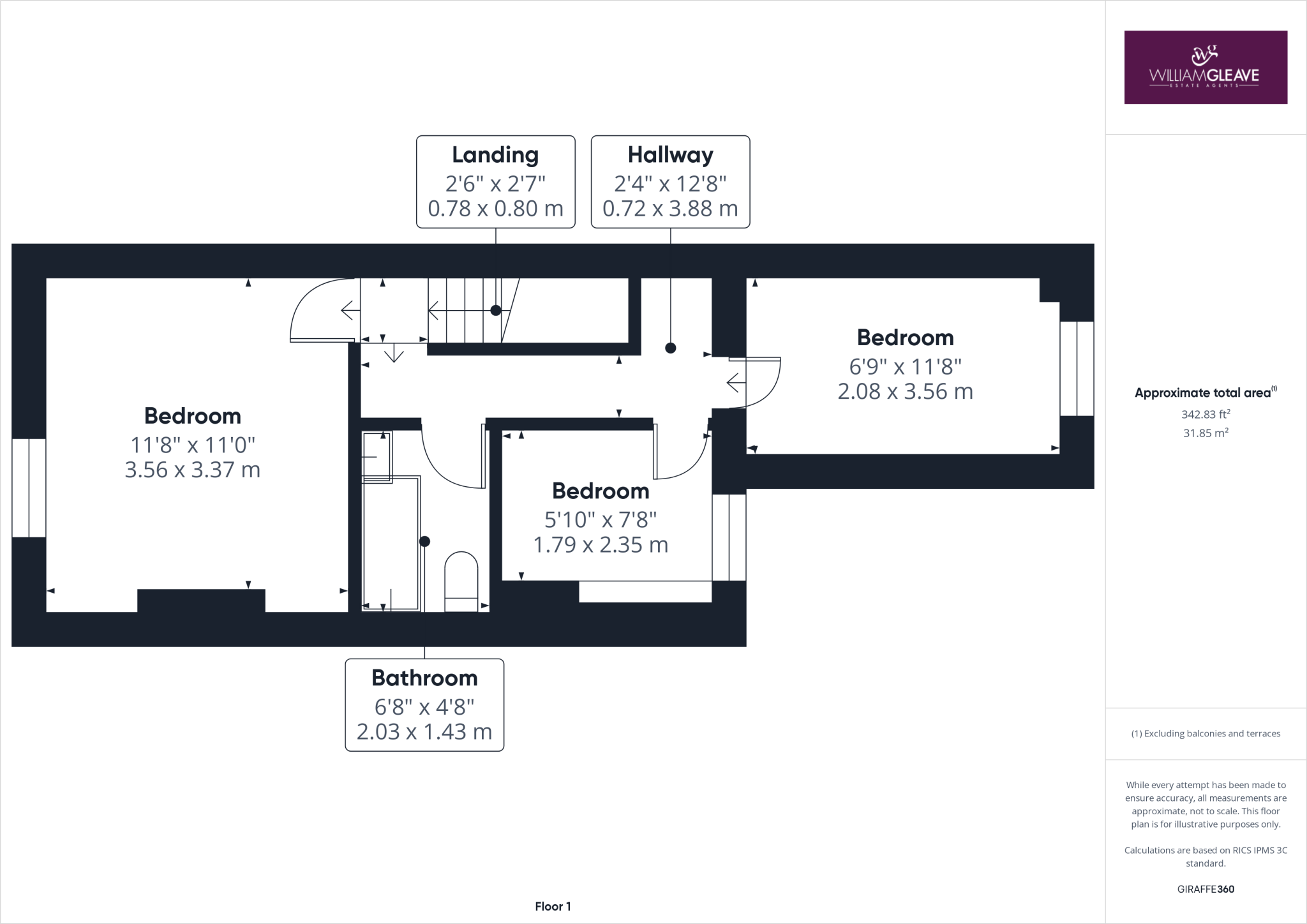
- Three well-sized bedrooms
- Chain-free sale for a smooth transition
- Two spacious reception rooms
- Large rear garden perfect for relaxation and outdoor activities
- Close to local amenities and schools
- Excellent mobile signal and fast broadband speeds
**Concerns:**
- Average-sized property may not suit all families
- Above-average crime rate in the area
- Potential for renovation, particularly regarding insulation
- No council tax band information available
This charming three-bedroom mid-terraced home on Chester Road in Flint offers an excellent opportunity for first-time buyers and savvy investors alike. With no onward chain, you can move in right away and start enjoying the generous living space, featuring a welcoming lounge, a separate dining room perfect for entertaining, and a fitted kitchen with plenty of storage. The first floor boasts three well-proportioned bedrooms and a modern family bathroom.
Step outside to discover a large rear garden, ideal for family gatherings or quiet weekends spent outdoors, along with a low-maintenance front garden enhancing the curb appeal. Located within walking distance to local primary and secondary schools, shops, public transport, and recreational amenities, this property is perfect for families and professionals alike. The North Wales Expressway and a nearby train station provide outstanding commuter options to Chester and London, making this a prime location for those seeking convenience. Don’t miss out on this rare find; properties like this don’t last long in today's market!
3 bedroom terraced house for sale in Chester Road, Oakenholt, Flint, CH6 — £140,000 • 3 bed • 1 bath • 867 ft²
3 bedroom terraced house for sale in Salisbury Street, Flint, CH6 — £130,000 • 3 bed • 1 bath • 572 ft²
3 bedroom semi-detached house for sale in Park Avenue, Flint, Flintshire, CH6 — £220,000 • 3 bed • 1 bath • 1188 ft²
3 bedroom semi-detached house for sale in Queens Avenue, Flint, CH6 — £175,000 • 3 bed • 1 bath • 852 ft²
3 bedroom end of terrace house for sale in Chester Road, Oakenholt, Flint, Flintshire, CH6 — £300,000 • 3 bed • 2 bath • 1402 ft²
3 bedroom semi-detached house for sale in Albert Avenue, Flint, CH6 — £170,000 • 3 bed • 1 bath • 872 ft²


























































































