**Standout Features:**
- Chain-free and ready for immediate possession
- Well-located near Flint town centre
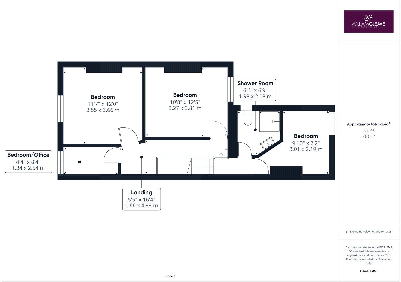
- Spacious home with three good-sized bedrooms
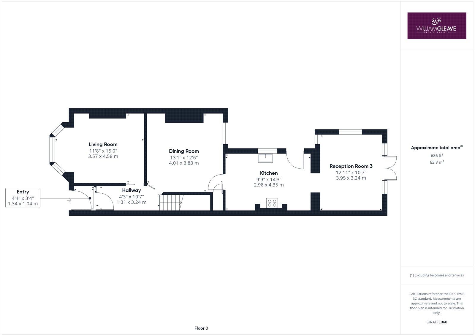
- Modern kitchen and three versatile reception rooms
- Extended rear living space with a light-filled conservatory
- Low-maintenance front and rear gardens
- Off-street parking and useful outbuildings
- Excellent mobile signal and fast broadband speeds
**Concerns:**
- Property located in an area with high crime rates and significant socio-economic deprivation
Discover your dream home in this beautifully extended three-bedroom semi-detached property, ideally situated just a stroll from Flint town centre. With spacious interiors and charming Victorian features, this home offers a perfect blend of character and modern convenience. Step inside to find an inviting entrance that leads to two generously sized reception rooms and a contemporary kitchen, seamlessly connecting to a lovely conservatory that floods the space with natural light.
Upstairs, you’ll enjoy three ample bedrooms alongside a versatile fourth room perfect for a home office or nursery. The low-maintenance garden and off-road parking add practical touches for everyday life. This property is an ideal opportunity for first-time buyers seeking comfort and convenience, located close to local schools, parks, and major road networks for commuting. With a competitive price of £220,000, this unique find won't be available for long—secure your future today!















































































































































