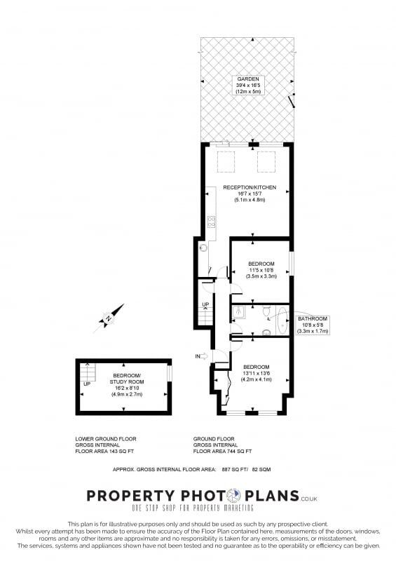
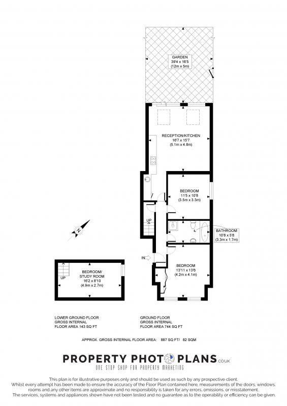
Spacious two-bedroom ground-floor home with private garden and excellent transport links.
Period Victorian ground-floor flat with high ceilings and sash windows
Private rear garden with direct street access
Bright reception room and modern fitted kitchen
Basement included—inspect for damp and ventilation
887 sq ft total; two bedrooms, one bathroom
Excellent transport links: Northern Line and National Rail nearby
Leasehold tenure—check lease length, service charges, ground rent
Local schools nearby include an outstanding primary; one primary rated Requires Improvement
This well-presented two-bedroom ground-floor flat occupies the lower level of a Victorian red-brick townhouse in central Tooting. Bright reception rooms, high ceilings and sash windows retain period character while a modern fitted kitchen and contemporary bathroom provide comfortable, move-in-ready living for first-time buyers or couples.
Outdoor space is a genuine advantage: a private rear garden with direct street access extends living potential and suits small families or those who entertain. The property also includes a basement, useful for storage or utility use but worth inspecting for ventilation and damp prior to purchase.
Transport links are excellent, with Tooting Bec (Northern Line) and Balham (National Rail) close by, plus easy access to Tooting High Street, market stalls, cafés and green space at Tooting Common. The flat is 887 sq ft (approx.) and leasehold, so prospective buyers should review the lease length, service charges and any ground rent commitments.
Local amenities and schools are nearby, including an outstanding primary (St Anselm’s) and a mixture of state and independent options; one nearby primary is currently rated “Requires improvement.” Crime and deprivation are average for the area. Overall this is a characterful, conveniently located ground-floor home with garden appeal and clear scope as a long-term starter property or central London pied-à-terre.
2 bedroom flat for sale in Longley Road, Tooting, London, SW17 — £550,000 • 2 bed • 1 bath • 664 ft²
2 bedroom flat for sale in Longley Road, Tooting, SW17 — £440,000 • 2 bed • 1 bath • 337 ft²
2 bedroom flat for sale in Sellincourt Road, Tooting, London, SW17 — £550,000 • 2 bed • 1 bath • 724 ft²
3 bedroom flat for sale in Gorringe Park Avenue, Mitcham, Surrey, CR4 — £540,000 • 3 bed • 1 bath • 892 ft²
2 bedroom apartment for sale in Khartoum Road, SW17 — £450,000 • 2 bed • 1 bath • 545 ft²
2 bedroom flat for sale in Tooting Bec Road, London, SW17 — £500,000 • 2 bed • 1 bath • 644 ft²










































































