Bright two-bedroom ground-floor home with long garden and modern open-plan living.
44ft south‑east-facing private garden, rare for a flat
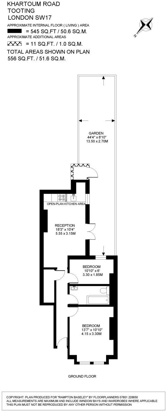
A bright ground-floor two-bedroom flat with a rare 44ft south‑east-facing garden, ideal for first-time buyers seeking outdoor space in Tooting. The open-plan kitchen reception opens directly onto the patio, creating a practical flow for everyday living and summer entertaining. Contemporary finishes and integrated appliances mean the flat is ready to move into with minimal immediate work.
The layout is compact at approximately 545 sq ft, so the accommodation suits a couple, small family, or buyers wanting a garden without the maintenance of a house. The principal bedroom benefits from a large bay window and high ceilings; the second room doubles well as a home office. Transport links are strong, with Tooting Broadway tube and Earlsfield overground within easy reach.
Practical points to note: the property is leasehold with 102 years remaining and a service charge of £335, both important for mortgage and long-term planning. The building dates from 1900–1929 and has solid brick walls with assumed no cavity insulation — this may affect heating costs despite double glazing and a gas boiler (EPC C). There is one bathroom and the overall internal space is modest, so storage and layout should be considered.
This flat offers an attractive balance of outdoor space, modern fittings and central location for buyers prioritising a garden and transport links over large internal square footage. Buyers who value easy access to amenities and schools in a lively London neighbourhood will find this a practical, move-in-ready option with some potential to enhance energy performance and personalise the interior.
2 bedroom flat for sale in Longley Road, Tooting, London, SW17 — £565,000 • 2 bed • 1 bath • 664 ft²
2 bedroom flat for sale in Vant Road, London, SW17 — £525,000 • 2 bed • 1 bath • 666 ft²
2 bedroom flat for sale in Byton Road, London, SW17 — £535,000 • 2 bed • 2 bath • 668 ft²
2 bedroom flat for sale in Brightwell Crescent, Tooting Broadway, SW17 — £460,000 • 2 bed • 1 bath • 510 ft²
2 bedroom apartment for sale in Garratt Lane, London, SW17 — £425,000 • 2 bed • 1 bath • 672 ft²
2 bedroom apartment for sale in Fountain Road, London, SW17 — £450,000 • 2 bed • 1 bath • 567 ft²














































