Modern, low-maintenance riverside apartment-alternative ideal for first-time buyers.
- New-build three-storey terraced house with energy-efficient design
- Top-floor principal bedroom with en suite shower room
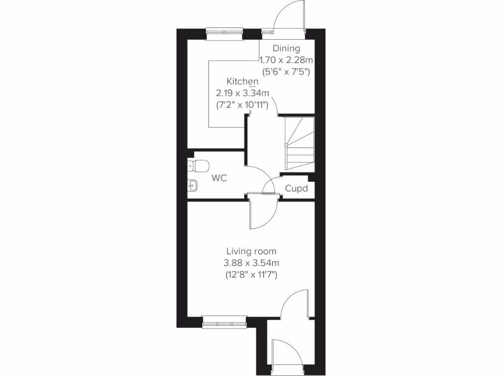
- Open-plan kitchen/dining room with direct outside access
- Front-aspect living room and enclosed porch for everyday use
- Three internal storage cupboards plus downstairs WC
- Allocated off-street parking; freehold tenure
- Small overall living area ~656 sq ft; limited internal space
- Area shows higher deprivation metrics; council tax band pending
A compact three-bedroom new-build arranged over three storeys, this Saunton house suits buyers wanting modern, low-maintenance living close to the water. The top-floor principal bedroom has an en suite, while the open-plan kitchen/dining room opens directly outside — useful for sociable cooking and quick access to allocated parking. Built with energy-efficient features, the property should keep running costs down and benefits from very low local crime, excellent mobile signal and fast broadband.
Practical storage is a highlight: an enclosed porch, three handy storage cupboards and a downstairs WC add everyday convenience. The living room faces the front and the family bathroom is fitted with contemporary fixtures and patterned tiling, reflecting the new-build specification. With allocated off-street parking and low flood risk, the home is straightforward for first-time buyers seeking a turnkey purchase.
Buyers should note the home is small overall at around 656 sq ft, so living and storage space is limited compared with larger family houses. The development’s area is classified with higher deprivation metrics despite nearby professional demographics, and council tax banding won’t be available until after occupation. The property is freehold and sits within a riverside scheme that emphasises waterfront outlooks and communal waterside amenity rather than large private gardens.
3 bedroom terraced house for sale in River Walk,
Marshall Close, Bromborough Pool,
Wirral,
Merseyside,
CH62 4AD , CH62 — £279,995 • 3 bed • 1 bath • 656 ft²
3 bedroom end of terrace house for sale in River Walk,
Marshall Close, Bromborough Pool,
Wirral,
Merseyside,
CH62 4AD , CH62 — £284,995 • 3 bed • 1 bath • 656 ft²
3 bedroom end of terrace house for sale in River Walk,
Marshall Close, Bromborough Pool,
Wirral,
Merseyside,
CH62 4AD , CH62 — £284,995 • 3 bed • 1 bath • 656 ft²
3 bedroom end of terrace house for sale in River Walk,
Marshall Close, Bromborough Pool,
Wirral,
Merseyside,
CH62 4AD , CH62 — £284,995 • 3 bed • 1 bath • 656 ft²
3 bedroom end of terrace house for sale in River Walk,
Marshall Close, Bromborough Pool,
Wirral,
Merseyside,
CH62 4AD , CH62 — £284,995 • 3 bed • 1 bath • 656 ft²
3 bedroom terraced house for sale in River Walk,
Marshall Close, Bromborough Pool,
Wirral,
Merseyside,
CH62 4AD , CH62 — £279,995 • 3 bed • 1 bath • 656 ft²


























































































































































