Compact, energy-efficient waterside house for first-time buyers and young families.
- Three-storey end-of-terrace new-build, modern finishes
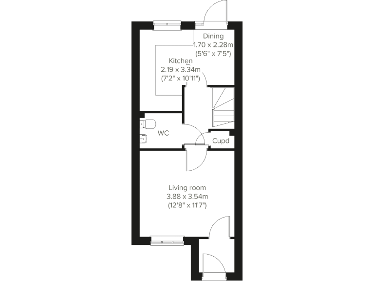
- Open-plan kitchen/dining room with outside access
- Top-floor principal bedroom with en suite
- Downstairs WC, enclosed porch and three storage cupboards
- Private garden and allocated off-street parking
- Total area ~656 sq ft — compact internal space
- Single family bathroom only; limited for larger families
- Council tax band not yet released by local authority
A modern three-storey end-of-terrace home on the River Walk development, ideal for first-time buyers or young families seeking low-maintenance living. The ground floor’s open-plan kitchen/dining room opens to the outside, while a front-aspect living room keeps entertaining and daily life separate. The top-floor principal bedroom includes an en suite for added privacy.
Practical touches include an enclosed porch, downstairs WC and three handy storage cupboards. The property is energy efficient and ready to move into, with allocated off-street parking and a private garden. Room sizes are compact — the house totals about 656 sq ft — but the layout makes the most of the footprint across three floors.
Important factors to note: this is a small home with a single family bathroom plus one en suite, so consider space needs if you have growing children or frequent guests. Council tax banding is not yet provided by the authority. The wider area is described as having some deprivation despite very low local crime and excellent connectivity and broadband.
Overall this is a contemporary new-build home offering practical, low-maintenance waterside living in Bromborough. It suits buyers prioritising modern finishes, energy efficiency and a compact, well-arranged layout rather than expansive internal space.
3 bedroom terraced house for sale in River Walk,
Marshall Close, Bromborough Pool,
Wirral,
Merseyside,
CH62 4AD , CH62 — £274,995 • 3 bed • 1 bath • 392 ft²
3 bedroom end of terrace house for sale in River Walk,
Marshall Close, Bromborough Pool,
Wirral,
Merseyside,
CH62 4AD , CH62 — £252,995 • 3 bed • 1 bath • 547 ft²
3 bedroom terraced house for sale in River Walk,
Marshall Close, Bromborough Pool,
Wirral,
Merseyside,
CH62 4AD , CH62 — £249,995 • 3 bed • 1 bath • 547 ft²
2 bedroom end of terrace house for sale in River Walk,
Marshall Close, Bromborough Pool,
Wirral,
Merseyside,
CH62 4AD , CH62 — £209,995 • 2 bed • 1 bath • 460 ft²
2 bedroom terraced house for sale in River Walk,
Marshall Close, Bromborough Pool,
Wirral,
Merseyside,
CH62 4AD , CH62 — £205,995 • 2 bed • 1 bath • 460 ft²
2 bedroom semi-detached house for sale in River Walk,
Marshall Close, Bromborough Pool,
Wirral,
Merseyside,
CH62 4AD , CH62 — £254,995 • 2 bed • 1 bath • 547 ft²






































































