Bright period apartment with conversion potential near Hyde Park.
Large bay-fronted reception with high ceilings and period mouldings
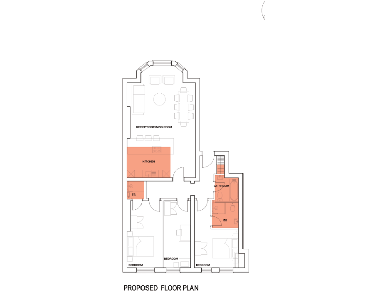
Set within a handsome Victorian terrace on Lexham Gardens, this newly renovated two-bedroom flat offers unusually generous proportions for a W8 apartment. The bay-fronted reception room with high ceilings and period mouldings creates an elegant living and dining space filled with natural light.
Practical day-to-day living is supported by a modern fitted kitchen, built-in bedroom storage and a contemporary bathroom. The flat is large for a two‑bed unit and benefits from planning permission to convert into a three‑bedroom layout, making it a strong choice for buyers seeking immediate use or future-value improvement.
Note the material facts: the property is leasehold (very long lease remaining: 955 years) and sits in a building with above-average service charges. External amenity appears limited with little or no private outdoor space. Overall the flat combines period character and modern fittings in a prime Kensington location, convenient for Hyde Park, transport and local shops.
2 bedroom flat for sale in Lexham Gardens,
South Kensington, W8 — £1,000,000 • 2 bed • 2 bath • 775 ft²
1 bedroom flat for sale in Lexham Gardens, London, W8 — £735,000 • 1 bed • 1 bath • 576 ft²
2 bedroom flat for sale in Lexham Gardens, Kensington, W8 — £1,000,000 • 2 bed • 2 bath • 631 ft²
2 bedroom apartment for sale in Imperial Court 4-10, Lexham Gardens, London, W8 — £1,000,000 • 2 bed • 1 bath • 863 ft²
3 bedroom apartment for sale in Lexham Gardens, Kensington W8 — £2,350,000 • 3 bed • 2 bath • 1856 ft²
2 bedroom apartment for sale in Lexham Gardens, Kensington, London, W8 — £1,000,000 • 2 bed • 1 bath • 1031 ft²






























































