Large private plot and versatile family space a short walk from town amenities.
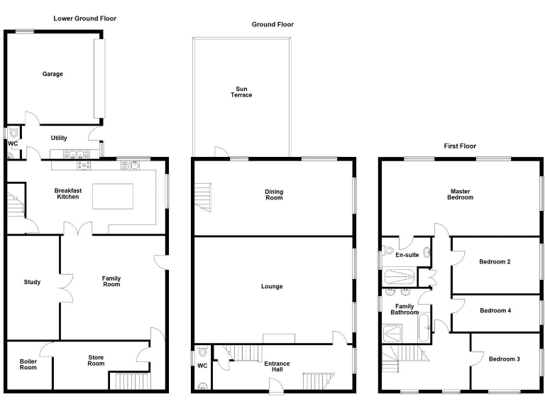
- Very large 3,407 sq ft family home with flexible multi‑level layout
- Very large, private garden with timber sun house (power & heating)
- Generous driveway plus double garage and internal access
- Gas central heating and uPVC double glazing throughout (install date unknown)
- Built 1970 with solid brick walls; insulation likely lacking (assumed)
- Large rooms and storage; excellent light and high ceilings in principal rooms
- Close to several ‘Good’ and ‘Outstanding’ schools and town centre amenities
- Council tax noted as quite expensive; potential energy upgrade costs
Set just outside Macclesfield town centre, this large Georgian‑style family home balances period presence with generous, flexible living space. The ground and lower ground floors provide formal reception rooms, a substantial breakfast kitchen and separate family/study areas — ideal for family life and home working.
The plot is a standout asset: a very large, private rear garden with mature trees, a block‑paved patio and a timber sun house with power and heating, plus a broad driveway and double garage for multiple vehicles. Well‑placed for highly regarded primary and secondary schools and local amenities, the location suits parents seeking space and convenience.
Practical positives include gas central heating, uPVC double glazing and extensive built‑in storage, but there are a few material points to note. The property’s brick walls are assumed to be uninsulated and the double glazing install date is unknown, so buyers should expect potential upgrades to improve energy efficiency. Council tax is described as quite expensive.
Overall this is a rare, spacious family residence with strong garden and parking credentials and scope for sympathetic updating to personalise interiors and reduce running costs.
4 bedroom detached bungalow for sale in Park Lane, Macclesfield, SK11 — £600,000 • 4 bed • 3 bath • 1994 ft²
3 bedroom detached house for sale in Park Mount Drive, Macclesfield, SK11 — £510,000 • 3 bed • 2 bath • 2112 ft²
6 bedroom semi-detached house for sale in Fence Avenue, Macclesfield, SK10 — £779,000 • 6 bed • 5 bath • 2694 ft²
4 bedroom detached house for sale in Vine Close, Macclesfield, Cheshire, SK11 — £500,000 • 4 bed • 2 bath • 1508 ft²
5 bedroom detached house for sale in Blakelow Road, Macclesfield, SK11 — £930,000 • 5 bed • 4 bath • 2766 ft²
4 bedroom detached house for sale in Chelford Road, Henbury, Macclesfield, SK10 — £665,000 • 4 bed • 2 bath • 1949 ft²


















































































































































































































































































