Characterful family house with large garden and garage near village amenities.
Three large double bedrooms with fitted wardrobes
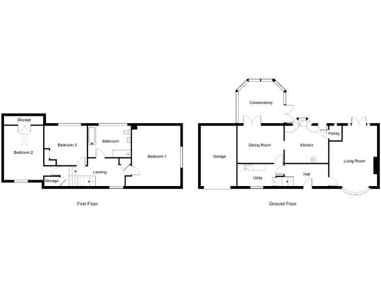
A handsome three‑bedroom detached home set on a generous plot in sought‑after Carlton‑in‑Lindrick. The stone exterior, oak flooring and exposed beams give the house a timeless, characterful feel while contemporary touches — granite worktops, integrated appliances and a stylish walk‑in shower — meet modern living needs. The conservatory and patio doors flood the ground floor with light and open onto a beautifully landscaped rear garden with planted borders, lawn, paved seating and a brick stable used for storage.
Practical day‑to‑day features include an integral garage, utility room with WC, pantry and a large landing suitable for a home office. The lounge’s gas burner and brick feature wall create a cosy focal point; bedroom sizes are generous with fitted wardrobes to two rooms. The property sits in a conservation area close to village amenities, good local schools and straightforward commuter links by road and rail.
Buyers should note a single family bathroom serves three bedrooms, and the property’s conservation area status may restrict external alterations. Services and appliances have not been tested and buyers are advised to commission their own surveys and reports. Overall this is a well‑maintained, characterful family home offering immediate comfort with scope to adapt internal spaces to modern lifestyles.
3 bedroom semi-detached house for sale in Poppy Field Way, Carlton-In-Lindrick, S81 — £240,000 • 3 bed • 1 bath • 819 ft²
4 bedroom house for sale in Long Lane, Carlton-In-Lindrick, Worksop, S81 — £370,000 • 4 bed • 3 bath • 1930 ft²
3 bedroom semi-detached house for sale in Greenway, Carlton-In-Lindrick, Worksop, S81 — £250,000 • 3 bed • 1 bath • 829 ft²
4 bedroom detached house for sale in Snowdrop Gardens, Carlton-In-Lindrick, Worksop, S81 — £300,000 • 4 bed • 3 bath • 1475 ft²
3 bedroom semi-detached house for sale in Conway Drive, Carlton-In-Lindrick, Worksop, S81 — £200,000 • 3 bed • 1 bath • 1355 ft²
4 bedroom detached house for sale in Snowdrop Gardens, Carlton-in-Lindrick, Worksop, Nottinghamshire, S81 — £300,000 • 4 bed • 3 bath • 1152 ft²


















































































































































































































