Spacious family living with farmland views and double garage.
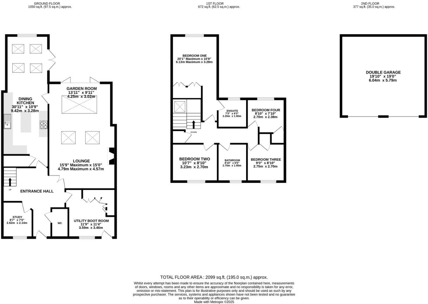
Large 4-bedroom barn conversion — circa 2,099 sq ft
Set in a tranquil hamlet, this extended four-bedroom barn offers generous, characterful living across approximately 2,099 sq ft. The house is immaculately presented with exposed beams, a long dining kitchen, garden room and three reception spaces that suit family life and home working. The double garage, driveway and well-kept, landscaped gardens provide practical everyday space and private outdoor enjoyment.
Positioned within a small development with communal tennis court and paddock, the property enjoys wide open views over farmland and easy access to Bunbury, Tarporley and Nantwich. Mobile signal and broadband are excellent, and there is convenient road and rail access for longer commutes. Flood risk is low.
Practical points to note: the development carries an annual management/service charge (approx. £1,800) for communal maintenance. Services are stated as mains water, electricity, LPG central heating and private drainage but have not been tested; buyers should verify appliance and heating condition prior to exchange. Council Tax is Band F, reflecting higher running costs.
This is a rare countryside home for families who value space, village amenities nearby and attractive rural views, yet are prepared for the modest communal fees and to confirm utility/service details before purchase.
4 bedroom barn conversion for sale in Ridley, Nr Tarporley, CW6 — £625,000 • 4 bed • 4 bath • 2046 ft²
4 bedroom barn conversion for sale in Wrexham Road, Ridley, Tarporley, CW6 9SA, CW6 — £550,000 • 4 bed • 3 bath • 2200 ft²
4 bedroom barn conversion for sale in Brownhills Barn, Spurstow, CW6 — £825,000 • 4 bed • 2 bath • 3209 ft²
3 bedroom barn conversion for sale in Burton Hall Barns, Tarporley, CW6 — £550,000 • 3 bed • 2 bath • 1689 ft²
3 bedroom barn conversion for sale in Wrexham Road, Bulkeley, SY14 — £645,000 • 3 bed • 2 bath • 2055 ft²
3 bedroom semi-detached house for sale in 8 Bulkeley Grange Barns - stunning views and double garage, SY14 — £725,000 • 3 bed • 2 bath • 1895 ft²


































































































































































































































































































