PE13 1RP - 1 bed small infill plot in Summerfield Close, PE13 1RP

View on Property Piper

Land for sale in Land At Rear Of Summerfield Close, Wisbech, PE13

Summary - 59 Summerfield Close, WISBECH PE13 1RP

1 bed 1 bath Land

Freehold rear plot with one‑bed development potential, offered subject to planning consent.
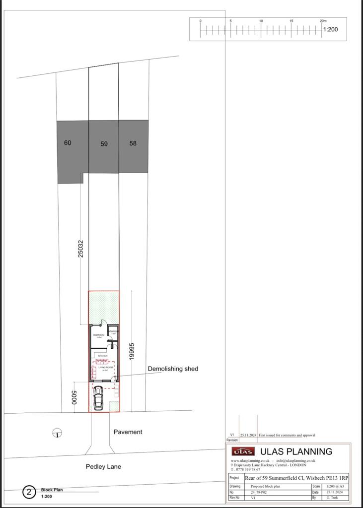
- Freehold parcel to rear of Summerfield Close
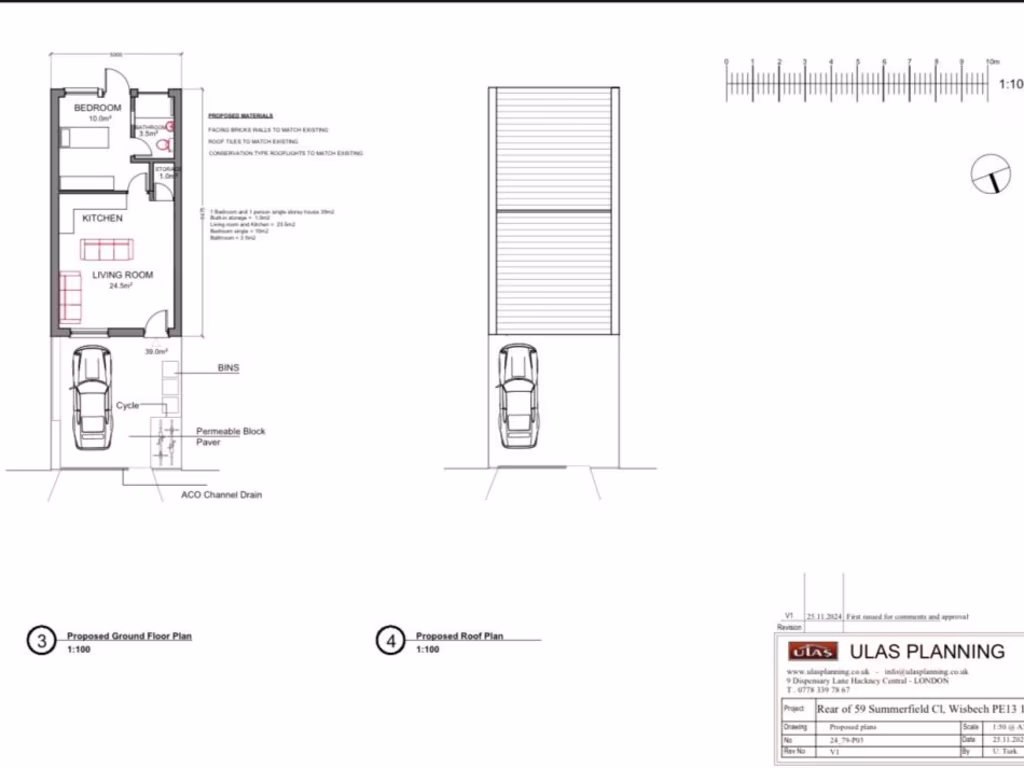
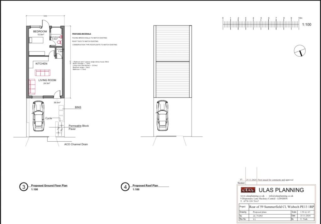
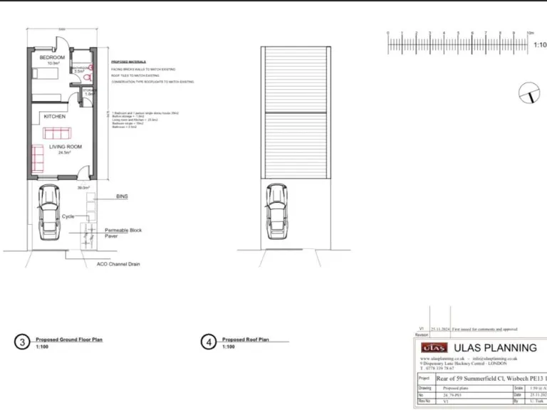
- Previously explored design for single-storey 1-bed dwelling (~39m²)
- Garage parking on site
- Small plot suitable for modest infill or self-build
- Subject to planning consent (contact Fenland District Council)
- Medium flood risk; may affect insurance and design
- Located in a deprived area with high recorded crime
- Fast broadband; average mobile signal
A compact freehold parcel tucked to the rear of Summerfield Close, offering a straightforward plot for small-scale residential development (subject to planning). The site currently contains an outbuilding and has previously been explored for a single-storey one-bedroom dwelling of approximately 39m², giving a ready starting point for design or a self-build scheme.

This location sits within easy reach of Wisbech town centre, local schools and everyday amenities, and benefits from fast broadband. The plot includes garage parking and is suited to a buyer seeking a modest new-build or an investment infill opportunity — planning permission will be required and prospective purchasers should contact Fenland District Council to confirm possibilities.

Buyers should note material drawbacks: the plot is small, sits in a deprived area with a recorded high crime level, and has a medium flood risk. These factors will influence insurance, financing and planning prospects. The site is offered as land only; any redevelopment will need full statutory consents and likely site works to remove the existing outbuilding.

Property Details

Image Descriptions

Textual Property Features

Target Audience

AI Tags

Detected Visual Features

Nearby Schools

Nearest Bars And Restaurants

,,,,}

Nearest General Shops

,,}

Nearest Grocery shops

,,}

Nearest Supermarkets

,,}

Nearest Religious buildings

,,}

Nearest Medical buildings

,,,}

Nearest Leisure Facilities

,,,,}

Nearest Tourist attractions

,,}

Nearest Train stations

,,,,}

Nearest Bus stations and stops

,,,,}

Nearest Hotels

,,}

Tags

Local Market Stats

Similar Properties

Meta

High Res Images

Compatible Images

Low res Images

Thumbnails

Raw Images