Yield-led freehold with vacancy upside near major transport links.
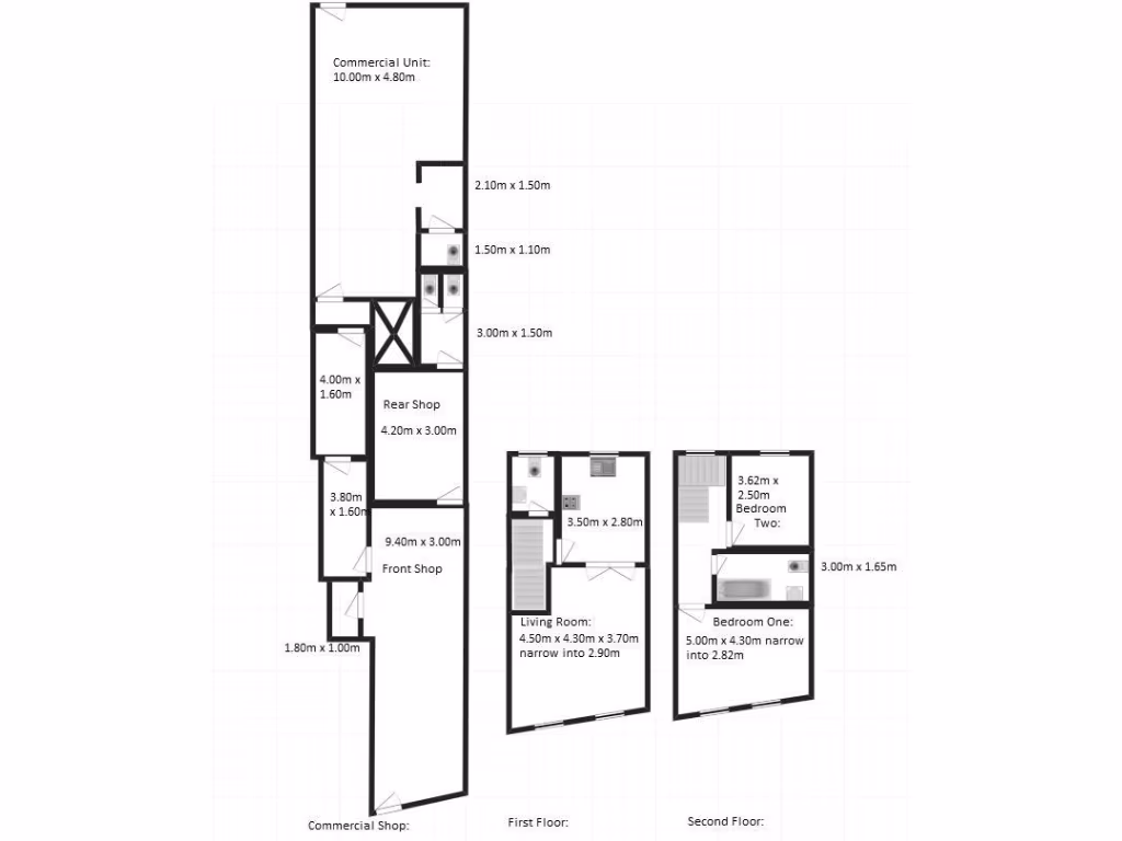
Freehold mixed-use building delivering £48,000 pa current income
A substantial freehold mixed-use building on Barking Road offering immediate rental income and short-term upside. The ground-floor lock-up shop and first-floor two-bedroom flat are currently let, producing a combined income of £48,000pa; a rear commercial unit is vacant with a realistic rental target of £12,000pa. The property is in a convenient high-traffic location close to Plaistow and Custom House/ Canning Town transport links, local shops and multiple bus routes.
This is a clear play for investors seeking yield plus rental growth. The shop lease runs until 2036 with a rent review due in 2025; the flat and rear unit provide re-letting and rent-rise potential. The premises are large internally (circa 1,001 sq ft total) and include substantial display/store space and a separate rear commercial unit.
Buyers should note material cautions: only 13 years remain on a lease noted in the papers — mortgage lenders may refuse finance on that basis. The area records very high crime and significant deprivation, which can affect tenant profiles, void risk and insurance costs. Energy ratings are E (shop) and D (flat). All dimensions and tenancy details should be independently verified.
Commercial property for sale in 656 - 666 Romford Road, Manor Park, London E12 5AQ, E12 — £3,650,000 • 1 bed • 1 bath • 4000 ft²
House for sale in Barking Road, East Ham, E6 — £1,100,000 • 1 bed • 1 bath • 776 ft²
High street retail property for sale in 245 Cann Hall Road, Leytonstone, E11 3NL, E11 — £500,000 • 1 bed • 1 bath • 1346 ft²
8 bedroom apartment for sale in 1-3 Pollard Row, London, E2 — £2,300,000 • 8 bed • 7 bath • 1205 ft²
2 bedroom property for sale in Chingford Road, Walthamstow, London, E17 — £600,000 • 2 bed • 1 bath • 1642 ft²
2 bedroom flat for sale in Hallywell Crescent, London, E6 — £260,000 • 2 bed • 1 bath






















































































