Newly renovated detached home with garden, garage and good transport links.
Newly renovated three-bedroom detached villa
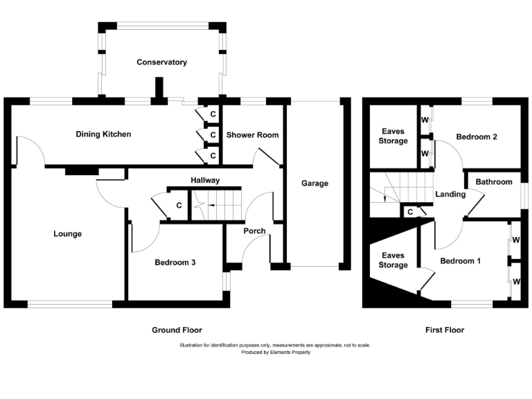
A newly renovated three-bedroom detached villa offering practical family living in a quiet cul-de-sac. The ground floor features a generous lounge with fireplace, an open-plan kitchen/dining area that flows to a conservatory, and a newly fitted shower room. Upstairs there are two double bedrooms with built-in wardrobes plus a new bathroom with over-bath shower.
Outside, the property benefits from a paved front approach, driveway parking leading to a walkthrough garage, and an enclosed, well-kept rear garden with patio, lawn, greenhouse and shed — ready for outdoor family use and low-maintenance enjoyment. Modern comforts include gas central heating, double glazing, excellent mobile signal and fast broadband.
Practical considerations are clear: the property sits in an area classified as very deprived and within an outer-city hardship wider area. Council tax is above average for the locality. These factors may influence running costs and resale expectations compared with more affluent neighbourhoods.
This home will suit buyers seeking a move-in-ready detached house with outdoor space and convenient transport links to Glasgow and nearby towns. It also has scope for cosmetic personalisation inside for those wanting to add individual style.
4 bedroom detached villa for sale in Gulliland Place, Irvine, KA12 — £290,000 • 4 bed • 2 bath • 1983 ft²
4 bedroom detached house for sale in Rosebank Gardens, Irvine , KA11 — £205,000 • 4 bed • 3 bath • 569 ft²
4 bedroom semi-detached villa for sale in Duncan Drive, Irvine, KA12 — £195,000 • 4 bed • 3 bath • 1408 ft²
3 bedroom detached house for sale in Beith Road, Glengarnock, KA14 3BP, KA14 — £259,000 • 3 bed • 3 bath
3 bedroom detached bungalow for sale in 3 Northacre Grove, Kilwinning, KA13 7ER, KA13 — £275,000 • 3 bed • 2 bath
4 bedroom detached villa for sale in Muirfield Drive, Kilmarnock, KA1 — £265,000 • 4 bed • 3 bath • 1384 ft²














































































































